Upplýsingar
Verðsaga
Byggt 1946
51,7 m²
3 herb.
1 baðherb.
2 svefnh.
Sérinngangur
Lýsing
Fasteignasalan Hvammur 466 1600
Þórunnarstræti 124 íbúð 001 - 2-3ja herbergja íbúð á jarðhæð og með sér inngangi miðsvæðis á Akureyri - stærð 51,7 m²
Íbúðin er samkvæmt samþykktum teikningum „ósamþykkt íbúð" en hefur verið notuð sem slík frá því húsið var byggt.
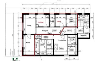
Eignin skiptist í forstofu, gang, eldhús, baðherbergi, stofu og tvö svefnherbergi.
Forstofa er með teppi á gólfi. Nýleg yfirbyggð timbur verönd er fyrir framan forstofuhurðina.
Eldhús var endurnýjað árið 2024. Ljóst plast parket á gólfi og svört innrétting með dökkri bekkplötu og svartum vask. Uppþvottavél er innfelld í innréttingu og fylgir með við sölu.
Stofa og gangur eru með ljósu plast parketi á gólfi. Á ganginum eru hvítir skápa.
Svefnherbergin eru tvö, bæði með ljósu plast parketi á gólfi og í stærra herberginu er fjórfaldur fataskápur.
Baðherbergi var endurnýjað árið 2024. Flísar á gólfum og þiljur á veggjum, handlaug, wc, handklæðaofn, walk-in sturta og opnanlegur gluggi. Tengi er fyrir þvottavél.
Annað
- Lóðin er skipt.
- Grunnteikning í auglýsingu er miða við núverandi skipulag eignar.
- Fyrirhugað fasteignamat eignar fyrir árið 2026 er kr. 29.250.000.-
- Eignin getur verið laus til afhendingar mjög fljótlega.
Um skoðunar- og aðgæsluskyldu:
Í lögum um fasteignakaup nr. 40/2002 er kveðið á um ríka skoðunarskyldu kaupenda á fasteignum. Fasteignasalan Hvammur skorar því á væntanlega kaupendur að kynna sér vel ástand fasteigna fyrir kauptilboðsgerð og leita til þar til bærra sérfræðinga um nánari skoðun ef með þarf.
Forsendur söluyfirlits:
Söluyfirlit er samið af fasteignasala í samræmi við ákvæði laga nr. 70/2015. Þær upplýsingar sem fram koma í söluyfirliti þessu eru sóttar í opinberar skrár, til seljanda sjálfs og eftir atvikum til húsfélags. Seljandi veitir upplýsingar um eign í samræmi við upplýsingaskyldu laga um fasteignakaup nr. 40/2002. Fasteignasali sannreynir að þær upplýsingar séu réttar með sjónskoðun á eigninni.
Fasteignasali getur ekki fullyrt um ástand og eiginleika þeirra hluta fasteigna sem ekki eru aðgengilegir og sjást ekki berum augum, t.d. lagnir, dren, skólp og þak.
Þórunnarstræti 124 íbúð 001 - 2-3ja herbergja íbúð á jarðhæð og með sér inngangi miðsvæðis á Akureyri - stærð 51,7 m²
Íbúðin er samkvæmt samþykktum teikningum „ósamþykkt íbúð" en hefur verið notuð sem slík frá því húsið var byggt.
Eignin skiptist í forstofu, gang, eldhús, baðherbergi, stofu og tvö svefnherbergi.
Forstofa er með teppi á gólfi. Nýleg yfirbyggð timbur verönd er fyrir framan forstofuhurðina.
Eldhús var endurnýjað árið 2024. Ljóst plast parket á gólfi og svört innrétting með dökkri bekkplötu og svartum vask. Uppþvottavél er innfelld í innréttingu og fylgir með við sölu.
Stofa og gangur eru með ljósu plast parketi á gólfi. Á ganginum eru hvítir skápa.
Svefnherbergin eru tvö, bæði með ljósu plast parketi á gólfi og í stærra herberginu er fjórfaldur fataskápur.
Baðherbergi var endurnýjað árið 2024. Flísar á gólfum og þiljur á veggjum, handlaug, wc, handklæðaofn, walk-in sturta og opnanlegur gluggi. Tengi er fyrir þvottavél.
Annað
- Lóðin er skipt.
- Grunnteikning í auglýsingu er miða við núverandi skipulag eignar.
- Fyrirhugað fasteignamat eignar fyrir árið 2026 er kr. 29.250.000.-
- Eignin getur verið laus til afhendingar mjög fljótlega.
Um skoðunar- og aðgæsluskyldu:
Í lögum um fasteignakaup nr. 40/2002 er kveðið á um ríka skoðunarskyldu kaupenda á fasteignum. Fasteignasalan Hvammur skorar því á væntanlega kaupendur að kynna sér vel ástand fasteigna fyrir kauptilboðsgerð og leita til þar til bærra sérfræðinga um nánari skoðun ef með þarf.
Forsendur söluyfirlits:
Söluyfirlit er samið af fasteignasala í samræmi við ákvæði laga nr. 70/2015. Þær upplýsingar sem fram koma í söluyfirliti þessu eru sóttar í opinberar skrár, til seljanda sjálfs og eftir atvikum til húsfélags. Seljandi veitir upplýsingar um eign í samræmi við upplýsingaskyldu laga um fasteignakaup nr. 40/2002. Fasteignasali sannreynir að þær upplýsingar séu réttar með sjónskoðun á eigninni.
Fasteignasali getur ekki fullyrt um ástand og eiginleika þeirra hluta fasteigna sem ekki eru aðgengilegir og sjást ekki berum augum, t.d. lagnir, dren, skólp og þak.
Ár
Fasteignamat
Kaupverð
Stærð
Fermetraverð
31. okt. 2023
20.150.000 kr.
20.000.000 kr.
51.7 m²
386.847 kr.
26. sep. 2018
12.450.000 kr.
15.000.000 kr.
51.7 m²
290.135 kr.
11. ágú. 2016
9.950.000 kr.
12.500.000 kr.
51.7 m²
241.779 kr.
Byggt á upplýsingum úr Þjóðskrá Íslands frá 2006-2025