Upplýsingar
Byggt 2023
56,8 m²
2 herb.
1 baðherb.
1 svefnh.
Bílastæði
Lyfta
Laus strax
Lýsing
Björt og falleg 2ja herbergja íbúð á 3. hæð í glæsilegri og vandaðri nýbyggingu í rólegu hverfi á Akranesi.
EIGNIN ER TILBÚIN TIL AFHENDINGAR
** Bókið skoðun **
Sjöfn Hilmarsdóttir, sími 691-4591 / netfang sjofn@kjolfestaeignir.is
Heimir Bergmann. sími 630-9000 / netfang heimir@hb.is
Kjölfesta fasteignamiðlun ehf. hefur til sölu 2ja - 5 herbergja íbúðir við Asparskóga 18 á Akranesi. Þriðji og síðasti hluti byggingar er nú kominn í sölu og eru tilbúnar til afhendingar 16 glæsilegar eignir, stærðir frá 56,8 - 130,1 fm.
Asparskógar 18 er virkilega vandað og vel skipulagt 40 íbúða fjöleignarhús á 2-5 hæðum. Húsið er byggt upp með forsteyptum einingum, einangrað og klætt að utan með ál- og timburklæðningu. Þak er steinsteypt með ásoðnum tjörupappa, einangrað og með PVC dúk. Lyftur eru í tveimur opnum stigahúsum, bílastæði og sérgeymslur er í kjallara hússins sem fylgir völdum eignum hússins. Innan lóðar eru 32 bílastæði og þar af eru 14 hleðslustæði. Íbúðir skilast fullbúnar að innan með vönduðum innréttingum ásamt gólfefnum. Ljós eru innbyggð að hluta.
Ýtið hér til að skoða og sjá nánar um eignir: Heimasíða - Asparskogar.is
Ýtið hér til að skoða skilalýsingu eigna: Skilalýsing - Asparskógar 18
Húsbyggjandi: Ferrum fasteignafélag
Aðalhönnuður: Al-Hönnun ehf.
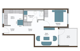
Íbúð 302 er 56.8 fm., að meðtaldri geymslu. Sérinngangur er inn í eignina og bílastæði í bílakjallara. Innan eignar er anddyri, stofa, eldhús, eitt svefnherbergi og baðherbergi þar sem einnig er þvottarými. Svalir eru 8,5 fm. og snúa í norð-austurátt.
* 2ja herbergja íbúð á 3. hæð með sérinngang
* Stærð 56,8 fm., þar af 3,6 fm. geymsla
* 8,5 fm. svalir í norð-austurátt
* Sameiginleg hjóla-og vagnageymsla
* Bílastæði B-12 í bílakjallara
Nánari lýsing:
Forstofa: Flísar á gólfi.
Eldhús: Vandaðar brúnar Nobilia innréttingar með hvítum efri skápum frá GKS innréttingum. Raftæki frá AEG, veggofn, spanhelluborð, innbyggð uppþvottavél og innbyggður kæliskápur með frysti. Vifta er frá Elica. Eldhúsvaskur og blöndunartæki er svart að lit og er frá Tengi. Harðparket á gólfi.
Stofa: Útgengt út á 8,5 fm. svalir. Harðparket á gólfi.
Svefnherbergi: Tvöfaldur fataskápur frá GKS. Harðparket á gólfi.
Baðherbergi: Hvít innrétting með brúnni borðplötu og hvítri handlaug. Speglaskápur yfir handlaug. Upphengt salerni með hæglokandi setu, WALK IN sturta og handklæðaofn. Hitastýrð blöndunartækin frá Tengi. Aðstaða fyrir þvottavél og þurrkara. Veggflísar og gegnheilar flísar á gólfi.
Svalir: 8,5 fm í norð-austurátt.
Geymsla: Sérgeymsla eignar er í kjallara, stærð 3,6 fm. Stúkuð af með möskaveggjum frá Rými Ofnasmiðjunni ehf. Gólf er lakkað.
Bílageymsla: er í kjallara hússins. Aðkoma bifreiða um akstursramp og aðkoma gangandi frá sitthvorum enda stigahúss og um gönguhurð við ramp. Upphituð með lágu hitastigi/frostlaus. Vélræn loftræstingu og sjálfvirkt springler kerfi. Sjálfvirkur hurðaropnari er á hurð. Ein fjarstýring fylgir hverju bílastæði. LED lýsing í lofti
Sameign: Á 1. hæð er sameiginleg hjóla- og vagnageymsla. Rafmagnstöflur og rafmagnsmælar íbúða er staðsett í sameigninni.
Lóð/bílastæði: Lóðin er 3325,0 fm. Innan lóðar eru 32 bílastæði, þar af eru 14 sérmerkt f. rafmagnsbíla og 3 fyrir hreyfihamlaða. Lóðin verður afhent fullbúin í lok byggingartímans. Bílastæði við götu eru malbikuð. Tengibúnaður (ídráttarrör) vegna hleðslu rafbíla er aðgengilegt við bílastæði. Milli húss og bílastæða við götu eru hellulagðar stéttar.
Annað: Ljósleiðari er tengdur inn í húsið og endar í tengikassa hverrar íbúðar. Netdreifikerfi er í íbúðinni. Ljósbreytir við tengikassa kemur frá símafélagi íbúans. Sorpgeymslur eru niðurfelldar á lóð (djúpgámar)
EIGNIN ER TILBÚIN TIL AFHENDINGAR
Nánari upplýsingar veita:
Heimir Bergmann
Löggiltur fasteignasali & löggiltur leigumiðlari
Sími 630-9000 / heimir@hb.is
Sjöfn Hilmarsdóttir
Lögfræðingur & löggiltur fasteignasali
Sími 691-4591 / sjofn@kjolfestaeignir.is
EIGNIN ER TILBÚIN TIL AFHENDINGAR
** Bókið skoðun **
Sjöfn Hilmarsdóttir, sími 691-4591 / netfang sjofn@kjolfestaeignir.is
Heimir Bergmann. sími 630-9000 / netfang heimir@hb.is
Kjölfesta fasteignamiðlun ehf. hefur til sölu 2ja - 5 herbergja íbúðir við Asparskóga 18 á Akranesi. Þriðji og síðasti hluti byggingar er nú kominn í sölu og eru tilbúnar til afhendingar 16 glæsilegar eignir, stærðir frá 56,8 - 130,1 fm.
Asparskógar 18 er virkilega vandað og vel skipulagt 40 íbúða fjöleignarhús á 2-5 hæðum. Húsið er byggt upp með forsteyptum einingum, einangrað og klætt að utan með ál- og timburklæðningu. Þak er steinsteypt með ásoðnum tjörupappa, einangrað og með PVC dúk. Lyftur eru í tveimur opnum stigahúsum, bílastæði og sérgeymslur er í kjallara hússins sem fylgir völdum eignum hússins. Innan lóðar eru 32 bílastæði og þar af eru 14 hleðslustæði. Íbúðir skilast fullbúnar að innan með vönduðum innréttingum ásamt gólfefnum. Ljós eru innbyggð að hluta.
Ýtið hér til að skoða og sjá nánar um eignir: Heimasíða - Asparskogar.is
Ýtið hér til að skoða skilalýsingu eigna: Skilalýsing - Asparskógar 18
Húsbyggjandi: Ferrum fasteignafélag
Aðalhönnuður: Al-Hönnun ehf.
Íbúð 302 er 56.8 fm., að meðtaldri geymslu. Sérinngangur er inn í eignina og bílastæði í bílakjallara. Innan eignar er anddyri, stofa, eldhús, eitt svefnherbergi og baðherbergi þar sem einnig er þvottarými. Svalir eru 8,5 fm. og snúa í norð-austurátt.
* 2ja herbergja íbúð á 3. hæð með sérinngang
* Stærð 56,8 fm., þar af 3,6 fm. geymsla
* 8,5 fm. svalir í norð-austurátt
* Sameiginleg hjóla-og vagnageymsla
* Bílastæði B-12 í bílakjallara
Nánari lýsing:
Forstofa: Flísar á gólfi.
Eldhús: Vandaðar brúnar Nobilia innréttingar með hvítum efri skápum frá GKS innréttingum. Raftæki frá AEG, veggofn, spanhelluborð, innbyggð uppþvottavél og innbyggður kæliskápur með frysti. Vifta er frá Elica. Eldhúsvaskur og blöndunartæki er svart að lit og er frá Tengi. Harðparket á gólfi.
Stofa: Útgengt út á 8,5 fm. svalir. Harðparket á gólfi.
Svefnherbergi: Tvöfaldur fataskápur frá GKS. Harðparket á gólfi.
Baðherbergi: Hvít innrétting með brúnni borðplötu og hvítri handlaug. Speglaskápur yfir handlaug. Upphengt salerni með hæglokandi setu, WALK IN sturta og handklæðaofn. Hitastýrð blöndunartækin frá Tengi. Aðstaða fyrir þvottavél og þurrkara. Veggflísar og gegnheilar flísar á gólfi.
Svalir: 8,5 fm í norð-austurátt.
Geymsla: Sérgeymsla eignar er í kjallara, stærð 3,6 fm. Stúkuð af með möskaveggjum frá Rými Ofnasmiðjunni ehf. Gólf er lakkað.
Bílageymsla: er í kjallara hússins. Aðkoma bifreiða um akstursramp og aðkoma gangandi frá sitthvorum enda stigahúss og um gönguhurð við ramp. Upphituð með lágu hitastigi/frostlaus. Vélræn loftræstingu og sjálfvirkt springler kerfi. Sjálfvirkur hurðaropnari er á hurð. Ein fjarstýring fylgir hverju bílastæði. LED lýsing í lofti
Sameign: Á 1. hæð er sameiginleg hjóla- og vagnageymsla. Rafmagnstöflur og rafmagnsmælar íbúða er staðsett í sameigninni.
Lóð/bílastæði: Lóðin er 3325,0 fm. Innan lóðar eru 32 bílastæði, þar af eru 14 sérmerkt f. rafmagnsbíla og 3 fyrir hreyfihamlaða. Lóðin verður afhent fullbúin í lok byggingartímans. Bílastæði við götu eru malbikuð. Tengibúnaður (ídráttarrör) vegna hleðslu rafbíla er aðgengilegt við bílastæði. Milli húss og bílastæða við götu eru hellulagðar stéttar.
Annað: Ljósleiðari er tengdur inn í húsið og endar í tengikassa hverrar íbúðar. Netdreifikerfi er í íbúðinni. Ljósbreytir við tengikassa kemur frá símafélagi íbúans. Sorpgeymslur eru niðurfelldar á lóð (djúpgámar)
EIGNIN ER TILBÚIN TIL AFHENDINGAR
Nánari upplýsingar veita:
Heimir Bergmann
Löggiltur fasteignasali & löggiltur leigumiðlari
Sími 630-9000 / heimir@hb.is
Sjöfn Hilmarsdóttir
Lögfræðingur & löggiltur fasteignasali
Sími 691-4591 / sjofn@kjolfestaeignir.is