Löggiltir fasteignasalar innan Félags fasteignasala:
Hannes Steindórsson
Bogi Molby Pétursson
Guðrún Antonsdóttir
Heimir Hallgrímsson
Hrafnkell P. H. Pálmason
Viðar Marinósson
Elías Haraldsson
Kristján Þórir Hauksson
Albert Bjarni Úlfarsson
Ragnar Þorsteinsson
Þórey Ólafsdóttir
Andri Freyr Halldórsson
Upplýsingar
Verðsaga
Byggt 2006
114,6 m²
4 herb.
1 baðherb.
3 svefnh.
Þvottahús
Útsýni
Sameiginl. inngangur
Bílastæði
Lyfta
Lýsing
LIND fasteignasala kynnir einstaklega fallega fjögurra herbergja 114,6 fm íbúð á 2. hæð í snyrtilegu lyftuhúsi við Baugakór 11 í Kópavogi ásamt stæði í bílakjallara. Fjölskylduvænt hverfi og er eignin vel staðsett, en m.a. er Krónan, leikskóli og skóli í göngufæri.
Eignin er laus til afhendingar við kaupsamning.
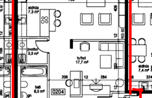
Íbúðin er skráð 114,6 fm skv. HMS, þar af 7,4 fm geymsla í kjallara. Glæsilegt eldhús sem nýlega var endurnýjað að mestu með marmara steini á borði og á eyju. Opið og bjart alrými með útsýni, þvottahús innan íbúðar og rúmgóðar svalir sem snúa til suðvesturs. Rafhleðslustöð í bílageymslu og næg stæði eru fyrir framan húsið. Þriðja svefnherberginu var nýlega bætt við úr hluta af stofurými, en auðvelt er að fjarlægja vegginn og opna rýmið aftur.
Fyrirhugað fasteignamat 2026 er 82.950.000 kr.
Eignin skiptist í: Forstofu, eldhús, samliggjandi borðstofu/stofu, þrjú svefnherbergi (eitt þeirra úr hluta af stofu), baðherbergi og þvottahús.
Nánari lýsing:
Forstofa: Flísar á gólfi, rúmgóður skápur.
Stofa/borðstofa: Rúmgóð og björt með stórum gluggum, parket á gólfi, útgengt á svalir.
Eldhús: Flísar á gólfi, hvít innrétting með góðu skápaplássi og marmara borðplötu, eyja úr marmara með span helluborði, tveir ofnar, innbyggður ísskápur og uppþvottavél.
Baðherbergi: Rúmgott, flísar á gólfi og veggjum, hvít nýleg innrétting, baðkar, sturtuklefi, upphengt salerni.
Svefnherbergi I: Parket á gólfi, rúmgóður skápur.
Svefnherbergi II: Parket á gólfi, skápur.
Svefnherbergi III: Nýlega bætt við, en auðvelt er að fjarlægja vegginn og opna rýmið aftur.
Þvottahús: Flísar á gólfi, tengi fyrir þvottavél og þurrkara, þvottasnúrur og hillur.
Geymsla: 7,4 fm í kjallara, auk vagna- og hjólageymsla í sameign.
Allir kaupendur okkar fá Vildarkort Lindar. Með því að framvísa kortinu færð þú 30% afslátt hjá samstarfsaðilum: Húsgagnahöllin, S. Helgason, Flugger litir, Húsasmiðjan, Z brautir og gluggatjöld, Vídd, Parki, Betra bak, Dorma og Sýn.
Allar upplýsingar um eignina veitir Tara Sif Birgisdóttir í síma 847 8584 / tara@fastlind.is
Gjöld sem kaupandi þarf að standa straum af vegna kaupanna:
1. Stimpilgjald af kaupsamningi - 0.8% af heildarfasteignamati / 1.6% fyrir lögaðila
Fyrstu kaup - 0,4% af heildarfasteignamati
2. Þinglýsingagjald af kaupsamningi, veðskuldabréfi, veðleyfi o.fl.- kr. 2.500 af hverju skjali.
3. Lántökugjald lánastofnunar
4. Umsýsluþóknun til fasteignasölu, sbr.kauptilboð.
Eignin er laus til afhendingar við kaupsamning.
Íbúðin er skráð 114,6 fm skv. HMS, þar af 7,4 fm geymsla í kjallara. Glæsilegt eldhús sem nýlega var endurnýjað að mestu með marmara steini á borði og á eyju. Opið og bjart alrými með útsýni, þvottahús innan íbúðar og rúmgóðar svalir sem snúa til suðvesturs. Rafhleðslustöð í bílageymslu og næg stæði eru fyrir framan húsið. Þriðja svefnherberginu var nýlega bætt við úr hluta af stofurými, en auðvelt er að fjarlægja vegginn og opna rýmið aftur.
Fyrirhugað fasteignamat 2026 er 82.950.000 kr.
Eignin skiptist í: Forstofu, eldhús, samliggjandi borðstofu/stofu, þrjú svefnherbergi (eitt þeirra úr hluta af stofu), baðherbergi og þvottahús.
Nánari lýsing:
Forstofa: Flísar á gólfi, rúmgóður skápur.
Stofa/borðstofa: Rúmgóð og björt með stórum gluggum, parket á gólfi, útgengt á svalir.
Eldhús: Flísar á gólfi, hvít innrétting með góðu skápaplássi og marmara borðplötu, eyja úr marmara með span helluborði, tveir ofnar, innbyggður ísskápur og uppþvottavél.
Baðherbergi: Rúmgott, flísar á gólfi og veggjum, hvít nýleg innrétting, baðkar, sturtuklefi, upphengt salerni.
Svefnherbergi I: Parket á gólfi, rúmgóður skápur.
Svefnherbergi II: Parket á gólfi, skápur.
Svefnherbergi III: Nýlega bætt við, en auðvelt er að fjarlægja vegginn og opna rýmið aftur.
Þvottahús: Flísar á gólfi, tengi fyrir þvottavél og þurrkara, þvottasnúrur og hillur.
Geymsla: 7,4 fm í kjallara, auk vagna- og hjólageymsla í sameign.
Allir kaupendur okkar fá Vildarkort Lindar. Með því að framvísa kortinu færð þú 30% afslátt hjá samstarfsaðilum: Húsgagnahöllin, S. Helgason, Flugger litir, Húsasmiðjan, Z brautir og gluggatjöld, Vídd, Parki, Betra bak, Dorma og Sýn.
Allar upplýsingar um eignina veitir Tara Sif Birgisdóttir í síma 847 8584 / tara@fastlind.is
Gjöld sem kaupandi þarf að standa straum af vegna kaupanna:
1. Stimpilgjald af kaupsamningi - 0.8% af heildarfasteignamati / 1.6% fyrir lögaðila
Fyrstu kaup - 0,4% af heildarfasteignamati
2. Þinglýsingagjald af kaupsamningi, veðskuldabréfi, veðleyfi o.fl.- kr. 2.500 af hverju skjali.
3. Lántökugjald lánastofnunar
4. Umsýsluþóknun til fasteignasölu, sbr.kauptilboð.
Ár
Fasteignamat
Kaupverð
Stærð
Fermetraverð
29. maí. 2024
77.250.000 kr.
80.200.000 kr.
10204 m²
7.860 kr.
10. nóv. 2017
35.550.000 kr.
44.900.000 kr.
114.6 m²
391.798 kr.
25. jan. 2008
28.075.000 kr.
27.900.000 kr.
114.6 m²
243.455 kr.
Byggt á upplýsingum úr Þjóðskrá Íslands frá 2006-2025