Upplýsingar
Verðsaga
Byggt 1964
152,4 m²
5 herb.
1 baðherb.
4 svefnh.
Þvottahús
Bílskúr
Sameiginl. inngangur
Lýsing
3-4 svefnherbergi. Laust til afhendingar í nóvember 2025. Fasteignamat næsta árs er 100.550.000. Skipti skoðuð.
Guðrún Hulda Ólafsdóttir lögmaður og löggiltur fasteignasali sími 8457445 og netfang gudrun@logheimili.is og Lögheimili eignamiðlun kynna í einkasölu: Rúmgóða og bjarta og nokkuð endurnýjaða 5 herbergja íbúð á fyrstu hæð í góðu fjölbýlishúsi við Meistaravelli 5, Reykjavík. Bílskúr með gryfju fylgir eigninni.
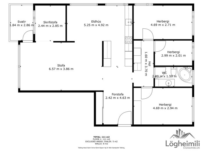
Eignin er skráð skv. Þjóðskrá Íslands alls 152,4fm. Birt stærð íbúðar á hæð er 124 fm. Geymsla í kjallara er 6,4 fm og bílskúrinn er 22 fm.
Bókið skoðun á netfanginu gudrun@logheimili eða í síma 8457445
Nánari lýsing eignarinnar:
Hol/gangur með flísum á gólfi.
Alrými eldhús/stofa/borðstofa mjög rúmgott með nýlegu harðparketi á gólfum. Útgengt út á svalir frá stofu.
Eldhús með góðri ljósri innréttingu sem hefur verið endurnýjað auk þess sem tækin eru nýleg. Spanhelluborð, bakarofn og örbylgjuofn fylgja auk þess sem ísskápur og uppþvottavél eru innbyggð. Flísalagðir veggir að hluta.
Stofa/borðstofa/herbergi inn af stofu mjög rúmgóð með nýlegu harðparketi á gólfi. Í dag hefur verið stúkað herbergi frá stofu við svalaútgang.
Svefnherbergisgangur: 3 svefnherbergi, baðherbergi og þvottaaðstaða íbúðarinnar.
Hjónaherbergi er rúmgott með fataskáp. Harðparket á gólfi.
Barnaherbergin I með harðparketi á gólfi
Barnaherbergi II með harðparketi á gólfi
Baðherbergið: Eldra baðherbergi flísalagt með hornbaðkari, salerni og vaskaskáp. Opnanlegur gluggi á baðherbergi.
Geymsla íbúðarinnar er í kjallara hússins
Sameign: Sameiginleg hjóla-vagnageymsla. Stigagangur teppalagður. Stór garður og gott bílaplan fyrir utan húsið
Bílskúr: 22 fm skúr sem stendur fyrstur í röðinni frá inngangi. Gryfja er í skúrnum og er lofthæðin ca 1,50 í gryju. Rafmagn og heitt vatn í skúr.
Allar nánari upplýsingar veitir: Guðrún Hulda Ólafsdóttir lögmaður og löggiltur fasteignasali í síma 8457445 eða á netfanginu gudrun@logheimili.is
Viðhald utanhúss og á lagnakerfi hússins:
2025: Nýjar lagnir fyrir baðherbergi 1.-4. hæð. Skólp, heitt- og kalt vatn.
2023: Skólplagnir fóðraðar frá stamma og út í götu
2020-2021: Múrviðgerðir, málun og gluggaskipti að hluta/ eftir þörfum þess tíma
2014: Þak klæðning endurnýjuð.
Viðhald á íbúðinni sjálfri:
2025: Gólfefni á svefnherbergisgangi 12 mm harðparket endurnýjað.
2020 endurnýuð að hluta. Forstofa flísalögð. Endurnýjaðar lagnir fyrir þvottavél og þurrkara. Rafmagn fyrir eldhústæki endurnýjað og tengt í sér töflu. Gólfefnin eru 12 mm harðparket endurnýjað á stofu, eldhúsi, borðstofu og herbergi við stofu. +
Hurðir á svefnherbergjum eru endurnýjaðar (yfirfelldar)
Forsendur söluyfirlits:
Söluyfirlit er samið af fasteignasala í samræmi við ákvæði laga nr. 70/2015. Þær upplýsingar sem fram koma í söluyfirliti þessu eru sóttar í opinberar skrár, til seljanda sjálfs og eftir atvikum til húsfélags. Seljandi veitir upplýsingar um eign í samræmi við upplýsingaskyldu laga um fasteignakaup nr. 40/2002. Fasteignasali sannreynir að þær upplýsingar séu réttar með sjónskoðun á eigninni. Fasteignasali getur ekki fullyrt um ástand og eiginleika þeirra hluta fasteigna sem ekki eru aðgengilegir og sjást ekki berum augum, t.d. lagnir, dren, skólp og þak.
Skoðunarskylda:
Í lögum um fasteignakaup nr. 40/2002 er kveðið á um ríka skoðunarskyldu kaupenda á fasteignum. Viljum við því benda væntanlegum kaupendum á að kynna sér vel ástand fasteigna fyrir kauptilboðsgerð og leita til þar til bærra sérfræðinga um nánari skoðun, telji þeir ástæðu til að skoða ástandið betur en fasteignasali hefur upplýsingar um.
Gjöld sem kaupandi þarf að standa straum af vegna kaupanna:
1. Stimpilgjald af kaupsamningi, fyrstu kaup (0,4%), almenn kaup (0,8%), lögaðilar (1,6%) af heildarfasteignamati.
2. Þinglýsingargjald af kaupsamningi, veðskuldabréfi, mögulegu veðleyfi o.fl. - kr. 2.700 af hverju skjali.
3. Lántökugjald lánastofnunar er skv. verðskrá viðkomandi lánastofnunar. Nánari upplýsingar á t.d. heimasíðu lánastofnana.
4. Umsýslugjald til fasteignasölu skv. kauptilboði.
Viðhald utanhúss og á lagnakerfi hússins:
2025: Nýjar lagnir fyrir baðherbergi 1.-4. hæð. Skólp, heitt- og kalt vatn.
2023: Skólplagnir fóðraðar frá stamma og út í götu
2020-2021: Múrviðgerðir, málun og gluggaskipti að hluta/ eftir þörfum þess tíma
2014: Þak klæðning endurnýjuð.
Viðhald á íbúðinni sjálfri:
2025: Gólfefni á svefnherbergisgangi 12 mm harðparket endurnýjað.
2020 endurnýuð að hluta. Forstofa flísalögð. Endurnýjaðar lagnir fyrir þvottavél og þurrkara. Rafmagn fyrir eldhústæki endurnýjað og tengt í sér töflu. Gólfefnin eru 12 mm harðparket endurnýjað á stofu, eldhúsi, borðstofu og herbergi við stofu. +
Hurðir á svefnherbergjum eru endurnýjaðar (yfirfelldar)
Guðrún Hulda Ólafsdóttir lögmaður og löggiltur fasteignasali sími 8457445 og netfang gudrun@logheimili.is og Lögheimili eignamiðlun kynna í einkasölu: Rúmgóða og bjarta og nokkuð endurnýjaða 5 herbergja íbúð á fyrstu hæð í góðu fjölbýlishúsi við Meistaravelli 5, Reykjavík. Bílskúr með gryfju fylgir eigninni.
Eignin er skráð skv. Þjóðskrá Íslands alls 152,4fm. Birt stærð íbúðar á hæð er 124 fm. Geymsla í kjallara er 6,4 fm og bílskúrinn er 22 fm.
Bókið skoðun á netfanginu gudrun@logheimili eða í síma 8457445
Nánari lýsing eignarinnar:
Hol/gangur með flísum á gólfi.
Alrými eldhús/stofa/borðstofa mjög rúmgott með nýlegu harðparketi á gólfum. Útgengt út á svalir frá stofu.
Eldhús með góðri ljósri innréttingu sem hefur verið endurnýjað auk þess sem tækin eru nýleg. Spanhelluborð, bakarofn og örbylgjuofn fylgja auk þess sem ísskápur og uppþvottavél eru innbyggð. Flísalagðir veggir að hluta.
Stofa/borðstofa/herbergi inn af stofu mjög rúmgóð með nýlegu harðparketi á gólfi. Í dag hefur verið stúkað herbergi frá stofu við svalaútgang.
Svefnherbergisgangur: 3 svefnherbergi, baðherbergi og þvottaaðstaða íbúðarinnar.
Hjónaherbergi er rúmgott með fataskáp. Harðparket á gólfi.
Barnaherbergin I með harðparketi á gólfi
Barnaherbergi II með harðparketi á gólfi
Baðherbergið: Eldra baðherbergi flísalagt með hornbaðkari, salerni og vaskaskáp. Opnanlegur gluggi á baðherbergi.
Geymsla íbúðarinnar er í kjallara hússins
Sameign: Sameiginleg hjóla-vagnageymsla. Stigagangur teppalagður. Stór garður og gott bílaplan fyrir utan húsið
Bílskúr: 22 fm skúr sem stendur fyrstur í röðinni frá inngangi. Gryfja er í skúrnum og er lofthæðin ca 1,50 í gryju. Rafmagn og heitt vatn í skúr.
Allar nánari upplýsingar veitir: Guðrún Hulda Ólafsdóttir lögmaður og löggiltur fasteignasali í síma 8457445 eða á netfanginu gudrun@logheimili.is
Viðhald utanhúss og á lagnakerfi hússins:
2025: Nýjar lagnir fyrir baðherbergi 1.-4. hæð. Skólp, heitt- og kalt vatn.
2023: Skólplagnir fóðraðar frá stamma og út í götu
2020-2021: Múrviðgerðir, málun og gluggaskipti að hluta/ eftir þörfum þess tíma
2014: Þak klæðning endurnýjuð.
Viðhald á íbúðinni sjálfri:
2025: Gólfefni á svefnherbergisgangi 12 mm harðparket endurnýjað.
2020 endurnýuð að hluta. Forstofa flísalögð. Endurnýjaðar lagnir fyrir þvottavél og þurrkara. Rafmagn fyrir eldhústæki endurnýjað og tengt í sér töflu. Gólfefnin eru 12 mm harðparket endurnýjað á stofu, eldhúsi, borðstofu og herbergi við stofu. +
Hurðir á svefnherbergjum eru endurnýjaðar (yfirfelldar)
Forsendur söluyfirlits:
Söluyfirlit er samið af fasteignasala í samræmi við ákvæði laga nr. 70/2015. Þær upplýsingar sem fram koma í söluyfirliti þessu eru sóttar í opinberar skrár, til seljanda sjálfs og eftir atvikum til húsfélags. Seljandi veitir upplýsingar um eign í samræmi við upplýsingaskyldu laga um fasteignakaup nr. 40/2002. Fasteignasali sannreynir að þær upplýsingar séu réttar með sjónskoðun á eigninni. Fasteignasali getur ekki fullyrt um ástand og eiginleika þeirra hluta fasteigna sem ekki eru aðgengilegir og sjást ekki berum augum, t.d. lagnir, dren, skólp og þak.
Skoðunarskylda:
Í lögum um fasteignakaup nr. 40/2002 er kveðið á um ríka skoðunarskyldu kaupenda á fasteignum. Viljum við því benda væntanlegum kaupendum á að kynna sér vel ástand fasteigna fyrir kauptilboðsgerð og leita til þar til bærra sérfræðinga um nánari skoðun, telji þeir ástæðu til að skoða ástandið betur en fasteignasali hefur upplýsingar um.
Gjöld sem kaupandi þarf að standa straum af vegna kaupanna:
1. Stimpilgjald af kaupsamningi, fyrstu kaup (0,4%), almenn kaup (0,8%), lögaðilar (1,6%) af heildarfasteignamati.
2. Þinglýsingargjald af kaupsamningi, veðskuldabréfi, mögulegu veðleyfi o.fl. - kr. 2.700 af hverju skjali.
3. Lántökugjald lánastofnunar er skv. verðskrá viðkomandi lánastofnunar. Nánari upplýsingar á t.d. heimasíðu lánastofnana.
4. Umsýslugjald til fasteignasölu skv. kauptilboði.
Viðhald utanhúss og á lagnakerfi hússins:
2025: Nýjar lagnir fyrir baðherbergi 1.-4. hæð. Skólp, heitt- og kalt vatn.
2023: Skólplagnir fóðraðar frá stamma og út í götu
2020-2021: Múrviðgerðir, málun og gluggaskipti að hluta/ eftir þörfum þess tíma
2014: Þak klæðning endurnýjuð.
Viðhald á íbúðinni sjálfri:
2025: Gólfefni á svefnherbergisgangi 12 mm harðparket endurnýjað.
2020 endurnýuð að hluta. Forstofa flísalögð. Endurnýjaðar lagnir fyrir þvottavél og þurrkara. Rafmagn fyrir eldhústæki endurnýjað og tengt í sér töflu. Gólfefnin eru 12 mm harðparket endurnýjað á stofu, eldhúsi, borðstofu og herbergi við stofu. +
Hurðir á svefnherbergjum eru endurnýjaðar (yfirfelldar)
Ár
Fasteignamat
Kaupverð
Stærð
Fermetraverð
15. des. 2020
58.800.000 kr.
59.500.000 kr.
152.4 m²
390.420 kr.
Byggt á upplýsingum úr Þjóðskrá Íslands frá 2006-2025