Upplýsingar
Byggt 2024
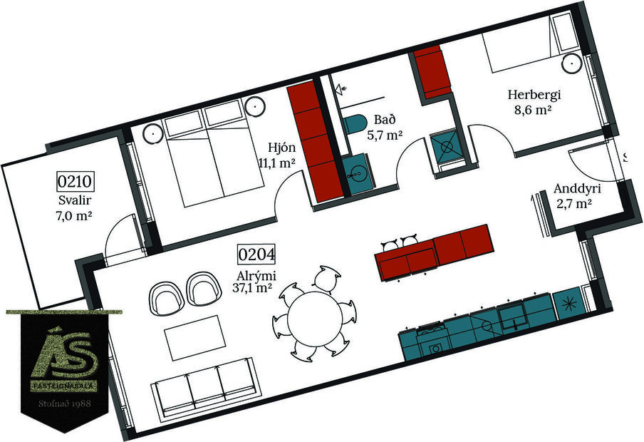
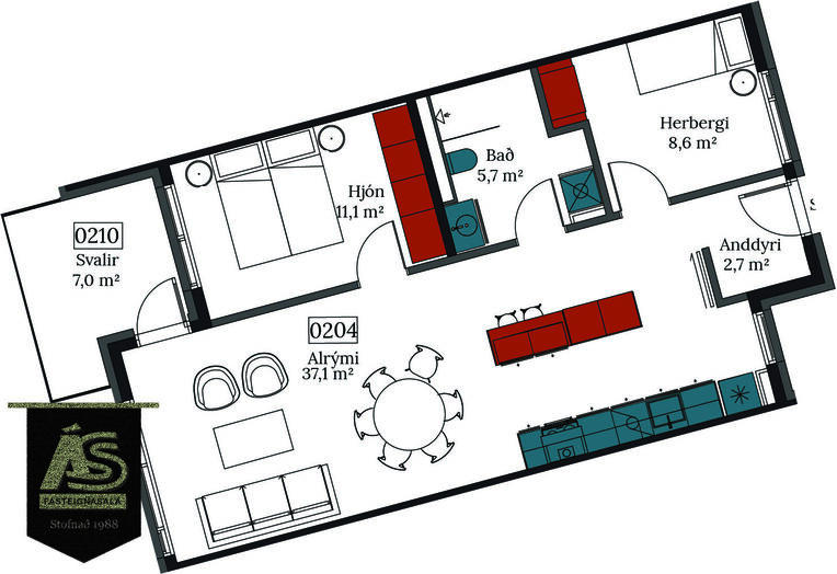
81,3 m²
3 herb.
1 baðherb.
2 svefnh.
Bílastæði
Lyfta
Opið hús: 4. desember 2025
kl. 16:30
til 17:00
OPIÐ HÚS fimmtudaginn 4. desember frá kl. 16.30 - 17.00 við Áshamar 12-26 í Hamranesinu í Hafnarfirði, allir velkomnir.
Lýsing
Glæsilegar 2ja, 3ja og 4ra herbergja íbúðir með sér stæði í lokaðri bílageymslu í nýju lyftufjölbýli við Áshamar 20 og 22 í Hamranesinu, Hafnarfirði.
Íbúðirnar skilast fullbúnar með megingólfefnum.
SMELLTU HÉR TIL AÐ SKOÐA LAUSAR ÍBÚÐIR
Allur frágangur, uppbygging og orkunotkun hússins tekur mið af leiðbeinandi stigakröfum Svansins.
Sjá nánari upplýsingar um Svansvottun með því að smella hér.
Stærðir: 66,7 - 110,5 fm
Herbergi: 2ja, 3ja og 4ra herbergja
Verð: 60,5 - 86,9 mkr.-
Afhending: mars/apríl 2025
- Innréttingar frá HTH, annars vegar spónlagðar og hinsvegar með hvítu yfirborði lögðu Melamini.
- Eldhústæki: Spanhelluborð með 4 hellum, blástursofn með stáláferð, gufugleypir/eyjuháfur eftir því sem við á.
- Geymslur fylgja öllum íbúðum.
- Sér stæði í bílageymslu fylgir öllum íbúðum.
- Lagnaleið fyrir mögulega rafhleðslutengingu er við hvert bílastæði.
- Sjá nánar um skil í skilalýsingu seljanda.
Byggingaraðili er traustur verktaki til fjölda ára: Eykt ehf. (www.eykt.is)
Bókið skoðun og fáið nánari upplýsingar hjá sölumönnum Ás fasteignasölu:
Aron Freyr Eiríksson löggiltur fasteignasali s. 772-7376 / aron@as.is
Stefán Rafn Sigurmannsson löggiltur fasteignasali s. 655-7000 / stefan@as.is
Svala Haraldsdóttir löggiltur fasteignasali s. 820-9699 / svala@as.is
Eiríkur Svanur Sigfússon löggiltur fasteignasali í s. 862-3377 / aron@as.is
Frábær staðsetning þar sem stutt er í helstu þjónustu og falleg útivistarsvæði.
Ás fasteignasala er rótgróið fyrirtæki sem hefur veitt alla almenna þjónustu í fasteignaviðskiptum frá árinu 1988.
www.facebook.com/asfasteignasala
www.instagram.com/as_fasteignasala
www.as.is
Íbúðirnar skilast fullbúnar með megingólfefnum.
SMELLTU HÉR TIL AÐ SKOÐA LAUSAR ÍBÚÐIR
Allur frágangur, uppbygging og orkunotkun hússins tekur mið af leiðbeinandi stigakröfum Svansins.
Sjá nánari upplýsingar um Svansvottun með því að smella hér.
Stærðir: 66,7 - 110,5 fm
Herbergi: 2ja, 3ja og 4ra herbergja
Verð: 60,5 - 86,9 mkr.-
Afhending: mars/apríl 2025
- Innréttingar frá HTH, annars vegar spónlagðar og hinsvegar með hvítu yfirborði lögðu Melamini.
- Eldhústæki: Spanhelluborð með 4 hellum, blástursofn með stáláferð, gufugleypir/eyjuháfur eftir því sem við á.
- Geymslur fylgja öllum íbúðum.
- Sér stæði í bílageymslu fylgir öllum íbúðum.
- Lagnaleið fyrir mögulega rafhleðslutengingu er við hvert bílastæði.
- Sjá nánar um skil í skilalýsingu seljanda.
Byggingaraðili er traustur verktaki til fjölda ára: Eykt ehf. (www.eykt.is)
Bókið skoðun og fáið nánari upplýsingar hjá sölumönnum Ás fasteignasölu:
Aron Freyr Eiríksson löggiltur fasteignasali s. 772-7376 / aron@as.is
Stefán Rafn Sigurmannsson löggiltur fasteignasali s. 655-7000 / stefan@as.is
Svala Haraldsdóttir löggiltur fasteignasali s. 820-9699 / svala@as.is
Eiríkur Svanur Sigfússon löggiltur fasteignasali í s. 862-3377 / aron@as.is
Frábær staðsetning þar sem stutt er í helstu þjónustu og falleg útivistarsvæði.
Ás fasteignasala er rótgróið fyrirtæki sem hefur veitt alla almenna þjónustu í fasteignaviðskiptum frá árinu 1988.
www.facebook.com/asfasteignasala
www.instagram.com/as_fasteignasala
www.as.is