Upplýsingar
Verðsaga
Byggt 2019
78,9 m²
2 herb.
1 baðherb.
1 svefnh.
Þvottahús
Útsýni
Sameiginl. inngangur
Hjólastólaaðgengi
Lyfta
Lýsing
*** Eignin er seld með fyrirvara ***
Borg fasteignasala kynnir vandaða 2ja herbergja útsýnisíbúð 78,9 fm - á 5 hæð í 6. hæða lyftuhúsi fyrir 60 ára og eldri. Íbúð með miklu útsýni frá yfirbyggðum svölum.
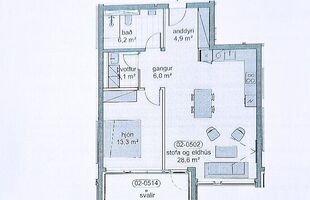
Íbúðin skiptist í svefnherbergi, alrými, baðherbergi, þvottaherbergi og forstofu. Sérgeymsla í kjallara. Gólfhiti, parket og innréttingar eru frá Axis. Þvottahús innan íbúðar. LAUS VIÐ KAUPSAMNING.
Eignin er skráð samkvæmt eignaskiptasamningi 78,9 m2, þar af íbúð 71,9 m2 og geymsla 7 m2.
Nánari lýsing:
Forstofa með fataskáp.
Eldhús með fallegri innréttingu frá Axis, steinn á borðum og stílhrein innrétting, vönduð heimilistæki.
Stofa/borðstofa og eldhúsið eru í opnu rými með útgengi á rúmgóðar svalir með svalalokun.
Hjónaherbergi með stórum fataskápum.
Baðherbergi er flísalagt, falleg innrétting og flísalögð sturta með glerskilrúmi, upphengt salerni og handklæðaofn.
Þvottahús með hvítri innréttingu og skolvaski.
Geymsla er í sameign
Húsið er nýlegt, byggt 2019. Örstutt er í félagsmiðstöðina Árskóga þar sem er skipulagt félagsstarf á vegum Reykjavíkurborgar og hægt er að fá keyptan mat og síðdegiskaffi virka daga. Stutt er í helstu þjónustu í Mjóddinni, s.s. heilsugæslu, apótek, verslanir og fl. Fjöldi bílastæða er á lóð, ásamt hleðslustæðum fyrir íbúa.
Góð eign á frábærum stað, miðsvæðis á höfuðborgarsvæðinu.
Kvöð er á eigninni um að kaupendur skulu vera 60 ára eða eldri og félagar í Félagi eldri borgara í Reykjavík - félagsgjald árið 2025 er kr
5.800.
Nánari upplýsingar veita Reynir Erlingsson Lögg. fasteignasali & leigumiðlari, í síma 820-2145, tölvupóstur reynir@fastborg.is
og Marly Gomes aðstoðarmaður fasteignasala, í síma 772-2272, tölvupóstur marly@fastborg.is
Borg fasteignasala kynnir vandaða 2ja herbergja útsýnisíbúð 78,9 fm - á 5 hæð í 6. hæða lyftuhúsi fyrir 60 ára og eldri. Íbúð með miklu útsýni frá yfirbyggðum svölum.
Íbúðin skiptist í svefnherbergi, alrými, baðherbergi, þvottaherbergi og forstofu. Sérgeymsla í kjallara. Gólfhiti, parket og innréttingar eru frá Axis. Þvottahús innan íbúðar. LAUS VIÐ KAUPSAMNING.
Eignin er skráð samkvæmt eignaskiptasamningi 78,9 m2, þar af íbúð 71,9 m2 og geymsla 7 m2.
Nánari lýsing:
Forstofa með fataskáp.
Eldhús með fallegri innréttingu frá Axis, steinn á borðum og stílhrein innrétting, vönduð heimilistæki.
Stofa/borðstofa og eldhúsið eru í opnu rými með útgengi á rúmgóðar svalir með svalalokun.
Hjónaherbergi með stórum fataskápum.
Baðherbergi er flísalagt, falleg innrétting og flísalögð sturta með glerskilrúmi, upphengt salerni og handklæðaofn.
Þvottahús með hvítri innréttingu og skolvaski.
Geymsla er í sameign
Húsið er nýlegt, byggt 2019. Örstutt er í félagsmiðstöðina Árskóga þar sem er skipulagt félagsstarf á vegum Reykjavíkurborgar og hægt er að fá keyptan mat og síðdegiskaffi virka daga. Stutt er í helstu þjónustu í Mjóddinni, s.s. heilsugæslu, apótek, verslanir og fl. Fjöldi bílastæða er á lóð, ásamt hleðslustæðum fyrir íbúa.
Góð eign á frábærum stað, miðsvæðis á höfuðborgarsvæðinu.
Kvöð er á eigninni um að kaupendur skulu vera 60 ára eða eldri og félagar í Félagi eldri borgara í Reykjavík - félagsgjald árið 2025 er kr
5.800.
Nánari upplýsingar veita Reynir Erlingsson Lögg. fasteignasali & leigumiðlari, í síma 820-2145, tölvupóstur reynir@fastborg.is
og Marly Gomes aðstoðarmaður fasteignasala, í síma 772-2272, tölvupóstur marly@fastborg.is
Ár
Fasteignamat
Kaupverð
Stærð
Fermetraverð
20. mar. 2019
20.850.000 kr.
37.500.000 kr.
78.9 m²
475.285 kr.
Byggt á upplýsingum úr Þjóðskrá Íslands frá 2006-2025