Upplýsingar
Verðsaga
Byggt 1983
214,4 m²
5 herb.
2 baðherb.
3 svefnh.
Þvottahús
Bílskúr
Sérinngangur
Lýsing
Garðatorg eignamiðlun kynnir: Virkilega fallegt 214.4 m2 einbýlishús við Sævang 31 í Hafnarfirði. Húsið skiptist í 174,6 m2 íbúð með 3 svefnherbergjum, forstofu, gestasalerni, baðherbergi, þvottahúsi, eldhúsi, stofu og garðskála. Stór 39,8fm tvöfaldur bílskúr með hellulögðu bílaplani. Einstök staðsetning með friðað hraun í bakgarðinum. Stór 1024m2 lóð sem býður uppá að stækka húsið.
***Fasteignamat 2026 159.750.000kr***
Húsið verður aðeins sýnt áhugasömum í einkaskoðun, ekki verður haldið opið hús.
Nánari upplýsingar veitir Haraldur Björnsson löggiltur fasteignasali í síma 7878727 eða á haraldur@gardatorg.is.
Nánari lýsing:
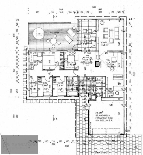
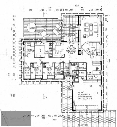
Forstofa er með parketi, fataskáp og hita í gólfi. Innaf forstofu er nýuppgerð gestasnyrting, en þar er vegghengt salerni og lítil innrétting með skolvask ásamt sturtu. Blöndunartæki frá Lusso.
1 rúmgott svefnherbergi er innaf forstofu sem hentar vel fyrir unglinginn með aðgengi að baðherbergi.
Eldhús er ný tekið í gegn en það er með fallegri hvítri innréttingu og eyju með bráðabirgða borðplötu sem gefur væntanlegum kaupendum möguleika á að skipta og velja sýna eigin. Í innréttingu er vínkælir, helluborð, 2 ofnar, innbyggður ísskápur, frystir og uppþvottavél. Úr eldhúsi er gengið inní notalega garðstofu með útgengi út á hellulagða verönd í suðurátt með friðað hraunið í bakgarðinum.
Stofa/borðstofa er í opnu og björtu rými með harðparketi á gólfi. Í stofu er fallegur arin.
Stærra baðherbergi er upprunalegt. Á baði er baðkar með sturtu, salerni og viðarinnrétting.
Á svefnherbergisgangi eru 2 rúmgóð svefnherbergi, hjónaherbergi og 2 barnaherbergi á teikningu sem voru sameinuð í 1.
Þvottahús og geymsla er innst innaf svefnherbergis gangi, tengi er fyrir þvottavél og þurrkara. Möguleiki á að útbúa lítið barnaherbergi í geymslu en þar eru 2 litlir gluggar sem hægt væri að stækka.
Stór bílskúr með tveimur hurðum og upphituðu hellulögðu bílaplani fyrir 2 bíla.
Endurbætur skv. seljanda:
Árið 2021 var farið í töluverða endurnýjun en innveggir voru gipsaði, sparslaðir og málaðir. Gestasalerni endurnýjað alveg, með nýjum lögnum.
Eldhús endurnýjað ásamt öllum tækjum.
Rafmagnstafla endurnýjuð og skipt um flest alla rofa og tengla.
Gólfhiti lagður í forstofu, eldhús og stofu. Vandað harðparket lagt á allt húsið.
Árið 2024 var byrjað að pússa nagla á þaki sem á eftir að klára, ásamt því að setja þarf álhatt á skorstein.
Nánari upplýsingar veitir Haraldur Björnsson löggiltur fasteignasali í síma 7878727 eða á haraldur@gardatorg.is.
Um skoðunar- og aðgæsluskyldu:
Í lögum um fasteignakaup nr. 40/2002 er kveðið á um ríka skoðunarskyldu kaupenda á fasteignum. Garðatorg eignamiðlun ehf skorar því á væntanlega kaupendur að kynna sér vel ástand fasteigna fyrir kauptilboðsgerð og leita til þar til bærra sérfræðinga um nánari skoðun ef með þarf.
Forsendur söluyfirlits:
Söluyfirlit er samið af fasteignasala í samræmi við ákvæði laga nr. 70/2015. Þær upplýsingar sem fram koma í söluyfirliti þessu eru sóttar í opinberar skrár, til seljanda sjálfs og eftir atvikum til húsfélags. Seljandi veitir upplýsingar um eign í samræmi við upplýsingaskyldu laga um fasteignakaup nr. 40/2002. Fasteignasali sannreynir að þær upplýsingar séu réttar með sjónskoðun á eigninni.
Fasteignasali getur ekki fullyrt um ástand og eiginleika þeirra hluta fasteigna sem ekki eru aðgengilegir og sjást ekki berum augum, t.d. lagnir, dren, skólp og þak.
Gjöld sem kaupandi þarf að greiða vegna kaupa:
1. Stimpilgjald af kaupsamningi sem er hlutfall af fasteignamati. Stimpilgjald er 0,8% fyrir einstaklinga (0,4% við fyrstu kaup) og 1,6% fyrir lögaðila.
2. Þinglýsingargjald af kaupsamningi, veðskuldabréfum, veðleyfum o.fl. Þinglýsingargjald er kr. 2.700,- fyrir hvert skjal.
3. Lántökugjald lánastofnunar - er skv. gjaldskrá viðkomandi lánastofnunar.
4. Umsýslugjald til fasteignasölu skv. kauptilboði.
5. Þegar um nýbyggingu er að ræða greiðir kaupandi skipulagsgjald, 0,3% af endanlegu brunabótamáti, þegar það er lagt á af viðkomandi sveitarfélagi.
***Fasteignamat 2026 159.750.000kr***
Húsið verður aðeins sýnt áhugasömum í einkaskoðun, ekki verður haldið opið hús.
Nánari upplýsingar veitir Haraldur Björnsson löggiltur fasteignasali í síma 7878727 eða á haraldur@gardatorg.is.
Nánari lýsing:
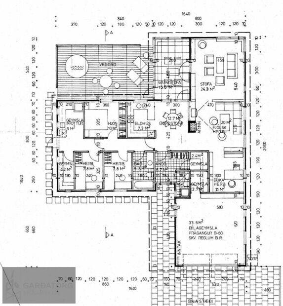
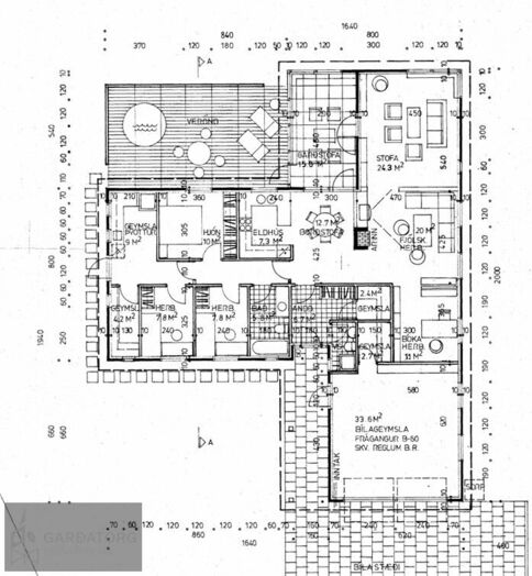
Forstofa er með parketi, fataskáp og hita í gólfi. Innaf forstofu er nýuppgerð gestasnyrting, en þar er vegghengt salerni og lítil innrétting með skolvask ásamt sturtu. Blöndunartæki frá Lusso.
1 rúmgott svefnherbergi er innaf forstofu sem hentar vel fyrir unglinginn með aðgengi að baðherbergi.
Eldhús er ný tekið í gegn en það er með fallegri hvítri innréttingu og eyju með bráðabirgða borðplötu sem gefur væntanlegum kaupendum möguleika á að skipta og velja sýna eigin. Í innréttingu er vínkælir, helluborð, 2 ofnar, innbyggður ísskápur, frystir og uppþvottavél. Úr eldhúsi er gengið inní notalega garðstofu með útgengi út á hellulagða verönd í suðurátt með friðað hraunið í bakgarðinum.
Stofa/borðstofa er í opnu og björtu rými með harðparketi á gólfi. Í stofu er fallegur arin.
Stærra baðherbergi er upprunalegt. Á baði er baðkar með sturtu, salerni og viðarinnrétting.
Á svefnherbergisgangi eru 2 rúmgóð svefnherbergi, hjónaherbergi og 2 barnaherbergi á teikningu sem voru sameinuð í 1.
Þvottahús og geymsla er innst innaf svefnherbergis gangi, tengi er fyrir þvottavél og þurrkara. Möguleiki á að útbúa lítið barnaherbergi í geymslu en þar eru 2 litlir gluggar sem hægt væri að stækka.
Stór bílskúr með tveimur hurðum og upphituðu hellulögðu bílaplani fyrir 2 bíla.
Endurbætur skv. seljanda:
Árið 2021 var farið í töluverða endurnýjun en innveggir voru gipsaði, sparslaðir og málaðir. Gestasalerni endurnýjað alveg, með nýjum lögnum.
Eldhús endurnýjað ásamt öllum tækjum.
Rafmagnstafla endurnýjuð og skipt um flest alla rofa og tengla.
Gólfhiti lagður í forstofu, eldhús og stofu. Vandað harðparket lagt á allt húsið.
Árið 2024 var byrjað að pússa nagla á þaki sem á eftir að klára, ásamt því að setja þarf álhatt á skorstein.
Nánari upplýsingar veitir Haraldur Björnsson löggiltur fasteignasali í síma 7878727 eða á haraldur@gardatorg.is.
Um skoðunar- og aðgæsluskyldu:
Í lögum um fasteignakaup nr. 40/2002 er kveðið á um ríka skoðunarskyldu kaupenda á fasteignum. Garðatorg eignamiðlun ehf skorar því á væntanlega kaupendur að kynna sér vel ástand fasteigna fyrir kauptilboðsgerð og leita til þar til bærra sérfræðinga um nánari skoðun ef með þarf.
Forsendur söluyfirlits:
Söluyfirlit er samið af fasteignasala í samræmi við ákvæði laga nr. 70/2015. Þær upplýsingar sem fram koma í söluyfirliti þessu eru sóttar í opinberar skrár, til seljanda sjálfs og eftir atvikum til húsfélags. Seljandi veitir upplýsingar um eign í samræmi við upplýsingaskyldu laga um fasteignakaup nr. 40/2002. Fasteignasali sannreynir að þær upplýsingar séu réttar með sjónskoðun á eigninni.
Fasteignasali getur ekki fullyrt um ástand og eiginleika þeirra hluta fasteigna sem ekki eru aðgengilegir og sjást ekki berum augum, t.d. lagnir, dren, skólp og þak.
Gjöld sem kaupandi þarf að greiða vegna kaupa:
1. Stimpilgjald af kaupsamningi sem er hlutfall af fasteignamati. Stimpilgjald er 0,8% fyrir einstaklinga (0,4% við fyrstu kaup) og 1,6% fyrir lögaðila.
2. Þinglýsingargjald af kaupsamningi, veðskuldabréfum, veðleyfum o.fl. Þinglýsingargjald er kr. 2.700,- fyrir hvert skjal.
3. Lántökugjald lánastofnunar - er skv. gjaldskrá viðkomandi lánastofnunar.
4. Umsýslugjald til fasteignasölu skv. kauptilboði.
5. Þegar um nýbyggingu er að ræða greiðir kaupandi skipulagsgjald, 0,3% af endanlegu brunabótamáti, þegar það er lagt á af viðkomandi sveitarfélagi.
Í lögum um fasteignakaup nr. 40/2002 er kveðið á um ríka skoðunarskyldu kaupenda á fasteignum. Vill því Garðatorg eignamiðlun skora á væntanlega kaupendur að kynna sér vel ástand fasteigna fyrir kauptilboðsgerð og leita til þar til bærra sérfræðinga um nánari skoðun ef með þarf.
Gjöld sem kaupandi þarf að standa straum af vegna kaupanna:
1. Stimpilgjald af kaupsamningi - 0.8% af heildarfasteignamati / 1.6% fyrir lögaðila. (0.4% við fyrstu kaup einstaklinga).
2. Þinglýsingagjald af kaupsamningi, veðskuldabréfi, veðleyfi o.fl.- kr. 2.700 af hverju skjali.
3. Lántökugjald lánastofnunar
4. Umsýsluþóknun til fasteignasölu, sbr.kauptilboð
Ár
Fasteignamat
Kaupverð
Stærð
Fermetraverð
10. mar. 2021
84.600.000 kr.
85.000.000 kr.
214.4 m²
396.455 kr.
Byggt á upplýsingum úr Þjóðskrá Íslands frá 2006-2025