Löggiltir fasteignasalar innan Félags fasteignasala:
Ástþór Reynir Guðmundsson
Vigdís R. S. Helgadóttir
Guðbjörg Helga Jóhannesdóttir
Gylfi Jens Gylfason
Sigrún Matthea Sigvaldadóttir
Sveinn Gíslason
Páll Guðmundsson
Þórarinn Arnar Sævarsson
Berglind Hólm Birgisdóttir
Þorsteinn Gíslason
Guðrún Lilja Tryggvadóttir
Brynjar Ingólfsson
Guðný Þorsteinsdóttir
Bjarni Blöndal
Þorsteinn Ólafs
Þórdís Björk Davíðsdóttir
Jóhann Kristinn Jóhannesson
Bjarný Björg Arnórsdóttir
Salvör Þóra Davíðsdóttir
Magga Sigríður Gísladóttir
Upplýsingar
Verðsaga
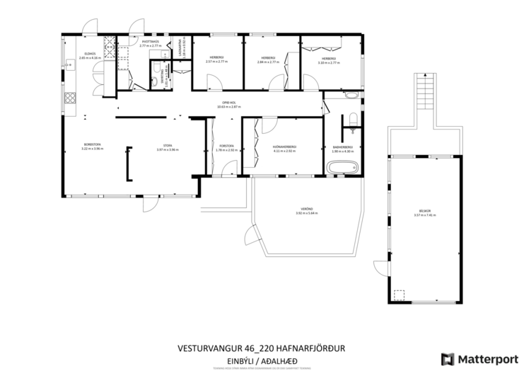
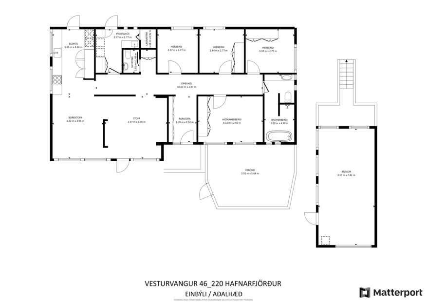
Byggt 1978
197 m²
7 herb.
2 baðherb.
5 svefnh.
Þvottahús
Bílskúr
Sérinngangur
Lýsing
RE/MAX og Guðrún Lilja löggiltur fasteignasali kynna í einkasölu: Einstaklega glæsilegt og fallega hannað 197,0 fm. einbýlishús með bílskúr á eftirsóttum stað við Vesturvang 46, Hafnarfirði. Húsið var töluvert endurnýjað 2021 og var hannað af Rut Káradóttur. Eignin telur m.a. fjögur rúmgóð svefnherbergi, baðherbergi og gestasalerni, eldhús sem er opið inn í rúmgóða og bjarta borðstofu og stofu. Garður er stór og gróinn með skjólgóðri verönd fyrir framan hús til suðurs. Undir bílskúr er rými með sérinngangi og því möguleikar að útbúa t.d. auka íbúð. Vandaðar sérsmíðaðar innréttingar og gólfefni með gólfhitakerfi. Efnisval er tímalaus og stílhrein hönnun.
Vel staðsett og gott fjölskylduhús á rólegum og fallegum stað í Norðurbæ Hafnarfjarðar. Stutt er í alla helstu þjónustu, leik- og grunnskóla, falleg útivistarsvæði allt um kring. Eign sem vert er að skoða.
Nánari upplýsingar veitir Guðrún Lilja Tryggvadóttir, löggiltur fasteignasali í síma 867-1231, gudrunlilja@remax.is ** Velkomið að bóka einkaskoðun **
KÍKTU Í HEIMSÓKN OG SJÁÐU EIGN Í 3D MEÐ ÞVÍ AÐ SMELLA HÉR
FÁÐU SÖLUYFIRLIT MILLILIÐALAUST MEÐ ÞVÍ AÐ SMELLA HÉR
Nánari lýsing: Eignin er sérlega vel skipulögð og falleg aðkoma er að húsinu. Íbúðarými er skráð 129,8 fm. Forstofa er með sérsmíðuðum fataskápum og stórum spegli. Flísar eru á gólfum.
Eldhús er bjart og vel hannað með góðu skipulagi. Innréttingar eru sérsmíðaðar með góðu skápaplássi. Tæki í eldhúsi eru vönduð frá Smith og Norland, m.a. tveir bakaraofnar, innbyggður ísskápur, vínkælir og uppþvottavél.
Vandaður kvartssteinn er á borðum með undirlímdum vaski. Nýlega var settur stór gólfsíður gluggi í eldhús sem gefur fallega birtu í rýmið.
Stofa og borðstofa eru í björtu opnu rými með sérsmíðuðum hillum. Möguleiki er að stækka húsið skv. deiliskipulagi, þá fyrir framan stofu sunnanmegin. Hugsað var fyrir því í fyrri framkvæmdum mtt. gólfhita og rafmagns.
Svefnherbergin eru fjögur, öll rúmgóð og björt með parketi á gólfum. Í tveimur svefnherbergjum eru sérsmíðaðir fataskápar með vinnuaðstöðu. Hjónaherbergi er einnig með sérsmíðuðum fataskápum.
Baðherbergi er með fallegri innréttingu og sérsmíðuðum vaski, stórum speglum og gott skápapláss, salerni er upphengt. Niðurtekin loft að hluta með innbyggðri lýsingu. Sturta og baðkar með innbyggðum blöndunartækjum. Flísar eru á gólfum og vegg að hluta. Góðir opnanlegir gluggar. Gestasalerni er einnig með vönduðum tækjum og upphengdu salerni. Flísalagt í hólf og gólf.
Þvottahús er með mjög góðu skápaplássi og innréttingu fyrir þvottavél og þurrkara. Skolvaskur, handklæðaofn og auka geymslurými er fyrir innan. Flísar eru á gólfum. Nýleg útidyrahurð er úr þvottahúsi með útgengt út í garð norðanmegin með þvottasnúrum.
Garður er stór og gróinn með skjólgóðri verönd til suðurs. Lóðin er skráð 1029,7 fm. að stærð.
Bílskúr er skráður 33,6 fm. að stærð með nýlegri bílskúrshurð og rafdrifnum hurðaopnara. Vatn og rafmagn til staðar.
Rými undir bílskúr er með sérinngangi bakatil og skráð 33,6 fm. að stærð. Notað í dag sem vinnuaðstaða og geymslurými en ýmsir möguleikar eru fyrir hendi m.a. að útbúa auka íbúð.
Framkvæmdir og viðhald síðustu ára:
Árið 2021 var farið í töluverðar endurbætur og innra skipulagi hússins breytt. Öll gólfefni endurnýjuð, parket og flísar frá Ebson og sett gólfhitakerfi. Innréttingar og hurðar eru sérsmíðaðar frá Beyki, hurðahúnar frá Ebson. Á baðherbergjum eru vönduð blöndunartæki frá Vola/Tengi. Kvartsstein frá Granítsmiðjunni (Noble Ivory White) á eldhúsbekk, tækjaskáp og baðherbergi, sérsmíðaður vaskur. Allar loftaplötur endurnýjaðar og settar innfelldar ljósabrautir með kösturum frá Lumex, sem sá jafnframt um ljósahönnun. Sett var ný rafmagnstafla auk þess sem stór hluti raflagna var endurnýjað og bætt við internetlögnum. Allir tenglar og rofar voru endurnýjaðir. Jafnframt tengt 3fasa rafmagn og leitt út í rými undir bílskúr. Neysluvatnslagnir endurnýjaðar og settur forhitari. Skólplagnir endurnýjaðar innanhúss. Þak á bílskúr var endurnýjað 2025, settur nýr pappi og niðurfall lagað.
Gjöld sem kaupandi þarf að standa straum af vegna kaupanna: 1. Stimpilgjald af kaupsamningi - 0,8%(einstaklingar) 1.6% (lögaðilar) af heildarfasteignamati. 2. Þinglýsingargjald af kaupsamningi, veðskuldabréfi, mögulegu veðleyfi o.fl. - kr. 2.700 af hverju skjali. 3. Lántökugjald lánastofnunar - almennt 45-75 þús.kr. Nánari upplýsingar á heimasíðu lánastofnana. 4. Umsýslugjald til fasteignasölu kr. 69.900 mvsk.
Vel staðsett og gott fjölskylduhús á rólegum og fallegum stað í Norðurbæ Hafnarfjarðar. Stutt er í alla helstu þjónustu, leik- og grunnskóla, falleg útivistarsvæði allt um kring. Eign sem vert er að skoða.
Nánari upplýsingar veitir Guðrún Lilja Tryggvadóttir, löggiltur fasteignasali í síma 867-1231, gudrunlilja@remax.is ** Velkomið að bóka einkaskoðun **
KÍKTU Í HEIMSÓKN OG SJÁÐU EIGN Í 3D MEÐ ÞVÍ AÐ SMELLA HÉR
FÁÐU SÖLUYFIRLIT MILLILIÐALAUST MEÐ ÞVÍ AÐ SMELLA HÉR
Nánari lýsing: Eignin er sérlega vel skipulögð og falleg aðkoma er að húsinu. Íbúðarými er skráð 129,8 fm. Forstofa er með sérsmíðuðum fataskápum og stórum spegli. Flísar eru á gólfum.
Eldhús er bjart og vel hannað með góðu skipulagi. Innréttingar eru sérsmíðaðar með góðu skápaplássi. Tæki í eldhúsi eru vönduð frá Smith og Norland, m.a. tveir bakaraofnar, innbyggður ísskápur, vínkælir og uppþvottavél.
Vandaður kvartssteinn er á borðum með undirlímdum vaski. Nýlega var settur stór gólfsíður gluggi í eldhús sem gefur fallega birtu í rýmið.
Stofa og borðstofa eru í björtu opnu rými með sérsmíðuðum hillum. Möguleiki er að stækka húsið skv. deiliskipulagi, þá fyrir framan stofu sunnanmegin. Hugsað var fyrir því í fyrri framkvæmdum mtt. gólfhita og rafmagns.
Svefnherbergin eru fjögur, öll rúmgóð og björt með parketi á gólfum. Í tveimur svefnherbergjum eru sérsmíðaðir fataskápar með vinnuaðstöðu. Hjónaherbergi er einnig með sérsmíðuðum fataskápum.
Baðherbergi er með fallegri innréttingu og sérsmíðuðum vaski, stórum speglum og gott skápapláss, salerni er upphengt. Niðurtekin loft að hluta með innbyggðri lýsingu. Sturta og baðkar með innbyggðum blöndunartækjum. Flísar eru á gólfum og vegg að hluta. Góðir opnanlegir gluggar. Gestasalerni er einnig með vönduðum tækjum og upphengdu salerni. Flísalagt í hólf og gólf.
Þvottahús er með mjög góðu skápaplássi og innréttingu fyrir þvottavél og þurrkara. Skolvaskur, handklæðaofn og auka geymslurými er fyrir innan. Flísar eru á gólfum. Nýleg útidyrahurð er úr þvottahúsi með útgengt út í garð norðanmegin með þvottasnúrum.
Garður er stór og gróinn með skjólgóðri verönd til suðurs. Lóðin er skráð 1029,7 fm. að stærð.
Bílskúr er skráður 33,6 fm. að stærð með nýlegri bílskúrshurð og rafdrifnum hurðaopnara. Vatn og rafmagn til staðar.
Rými undir bílskúr er með sérinngangi bakatil og skráð 33,6 fm. að stærð. Notað í dag sem vinnuaðstaða og geymslurými en ýmsir möguleikar eru fyrir hendi m.a. að útbúa auka íbúð.
Framkvæmdir og viðhald síðustu ára:
Árið 2021 var farið í töluverðar endurbætur og innra skipulagi hússins breytt. Öll gólfefni endurnýjuð, parket og flísar frá Ebson og sett gólfhitakerfi. Innréttingar og hurðar eru sérsmíðaðar frá Beyki, hurðahúnar frá Ebson. Á baðherbergjum eru vönduð blöndunartæki frá Vola/Tengi. Kvartsstein frá Granítsmiðjunni (Noble Ivory White) á eldhúsbekk, tækjaskáp og baðherbergi, sérsmíðaður vaskur. Allar loftaplötur endurnýjaðar og settar innfelldar ljósabrautir með kösturum frá Lumex, sem sá jafnframt um ljósahönnun. Sett var ný rafmagnstafla auk þess sem stór hluti raflagna var endurnýjað og bætt við internetlögnum. Allir tenglar og rofar voru endurnýjaðir. Jafnframt tengt 3fasa rafmagn og leitt út í rými undir bílskúr. Neysluvatnslagnir endurnýjaðar og settur forhitari. Skólplagnir endurnýjaðar innanhúss. Þak á bílskúr var endurnýjað 2025, settur nýr pappi og niðurfall lagað.
Gjöld sem kaupandi þarf að standa straum af vegna kaupanna: 1. Stimpilgjald af kaupsamningi - 0,8%(einstaklingar) 1.6% (lögaðilar) af heildarfasteignamati. 2. Þinglýsingargjald af kaupsamningi, veðskuldabréfi, mögulegu veðleyfi o.fl. - kr. 2.700 af hverju skjali. 3. Lántökugjald lánastofnunar - almennt 45-75 þús.kr. Nánari upplýsingar á heimasíðu lánastofnana. 4. Umsýslugjald til fasteignasölu kr. 69.900 mvsk.
Ár
Fasteignamat
Kaupverð
Stærð
Fermetraverð
10. júl. 2014
43.850.000 kr.
48.000.000 kr.
197 m²
243.655 kr.
22. des. 2011
38.150.000 kr.
40.000.000 kr.
197 m²
203.046 kr.
Byggt á upplýsingum úr Þjóðskrá Íslands frá 2006-2025