Upplýsingar
Verðsaga
Byggt 1930
90 m²
5 herb.
1 baðherb.
3 svefnh.
Lýsing
KOMIÐ ER SAMÞYKKT KAUPTILBOÐ Í EIGNINA SEM NÚ ER Í FJÁRMÖGNUNARFERLI
Fasteignasalan Valhöll og Elín Viðarsdóttir lgfs, elin@valholl.is, gsm. 695-8905, kynna í einkasölu, Norðurbraut 11, 220 Hafnarfirði;
Einstaka eign; Fallegt, mjög vel skipulagt og töluvert mikið endurnýjað einbýlishús á einni hæð á þessum vinsæla stað í Hafnarfirði.
Frábært tækifæri til þess að eignast einbýlishús á geggjuðum stað í þessu gróna hverfi Hafnarfjarðar og hafa samþykktar teikningar til stækkunar.
Laus til afhendingar !
- Eignin er skráð samkvæmt FMR 90 fm (en er 106 fm samkvæmt upplýsingum frá fyrri seljanda).
- 4ra herbergja - auk stofu/borðstofu
- Endurnýjað eldhús
- Endurnýjað baðherbergi
- Falleg hellulögð afgirt suður-verönd framan við hús og afgirt verönd með heitum potti austan við hús.
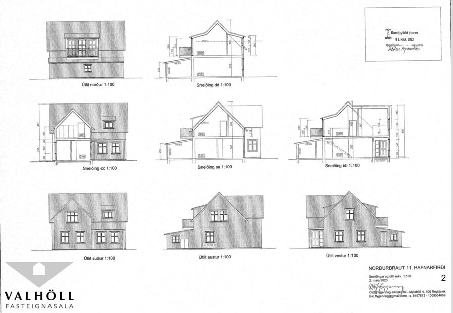
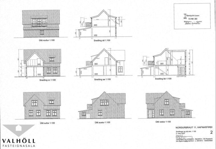
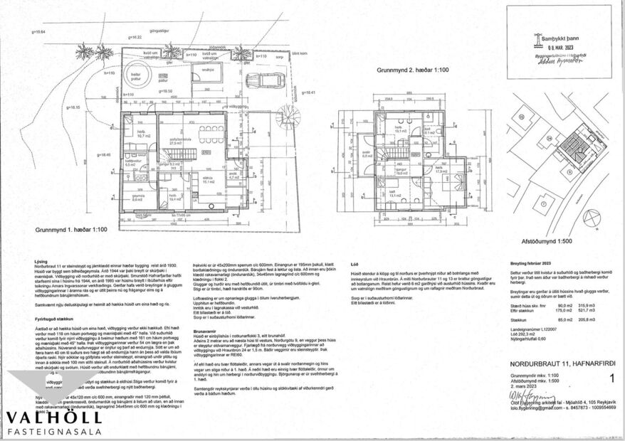
- Fyrir liggja samþykktar teikningar hjá Hafnarfjarðarbæ um stækkun á húseign uppí 175 fm á tveim hæðum
Eignin skiptist í: Forstofu, hol/gang, stofu/borðstofu, þrjú svefnherbergi, eldhús, baðherbergi með þvottaaðstöðu, geysmluloft yfir húseign og geymsluskúr.
Nánari lýsing á eign: Gengið er inn í húsið á framhlið þess.
Forstofa: Fataskápar í forstofu.
Eldhús: Er af forstofu og er með fallegri u-laga hvítri HTH innréttingu með efri og neðri skápum, vönduð tæki og steinn í borðplötum í eldhúsi, gert er ráð fyrir tvöföldum ísskáp og uppþvottavél í eldhúsinnréttingu.
Gangur/hol: Af því er gengið inn aðrar vistarverur eignarinnar og er innbyggður skápur á gangi. Af ganginum er hleri með fellistiga uppá loft hússins.
Stofa/borðstofa: Opið og bjart rými með gluggum á tvo vegu til suðurs og austurs.
Þrjú góð svefnherbergi: Öll með fataskápum og af einu þeirra er útgengi út á pall.
Baðherbergi: Flísalagt á gólfi og veggjum, baðkar, vaskinnrétting og upphengt salerni, gert er ráð fyrir þvottavél og þurrkara á baðherbergi. Gluggi.
Geymsluloft : Rúmgott yfir húsinu, innangengt af gangi.
Einangraður geymsluskúr er á verönd til austurs og á pallinum er einnig hitaveitupottur.
Gólfefni: Harðparket og flísar á gólfum eignar.
Þær endurbætur sem hafa átt sér stað á húseign s.l. ár skv. seljendum:
- 2023 Nýtt þakjárn og þaklæðning á húsi. Húseign máluð að utan.
- 2020 Sólpallur smíðaður.Hellulögn lögð.
- 2018 Hitalagnir, kalt/heitt neysluvatn og skolplagnir endurnýjað.-Ný hitagrind sem að er í kassa utan á húsi.-Viðbygging endurnýjuð. Geymslukúr smíðaður.
- 2013-14 Grindverk meðfram húsi smíðað.
Samantekt: Einstök eign, einbýli á einni hæð með fallegu útisvæði og miklum stækkunarmöguleikum á einstökum stað í 220 Hafnarfirði.
Staðsetning eignarinnar er afar góð á rólegum stað miðsvæðis í Hafnarfirði, rétt við Víðistaðatúnið.
Allar nánari upplýsingar veitir Elín Viðarsdóttir löggiltur fasteignasali gsm 695-8905 eða elin@valholl.is
Fasteignasalan Valhöll og Elín Viðarsdóttir lgfs, elin@valholl.is, gsm. 695-8905, kynna í einkasölu, Norðurbraut 11, 220 Hafnarfirði;
Einstaka eign; Fallegt, mjög vel skipulagt og töluvert mikið endurnýjað einbýlishús á einni hæð á þessum vinsæla stað í Hafnarfirði.
Frábært tækifæri til þess að eignast einbýlishús á geggjuðum stað í þessu gróna hverfi Hafnarfjarðar og hafa samþykktar teikningar til stækkunar.
Laus til afhendingar !
- Eignin er skráð samkvæmt FMR 90 fm (en er 106 fm samkvæmt upplýsingum frá fyrri seljanda).
- 4ra herbergja - auk stofu/borðstofu
- Endurnýjað eldhús
- Endurnýjað baðherbergi
- Falleg hellulögð afgirt suður-verönd framan við hús og afgirt verönd með heitum potti austan við hús.
- Fyrir liggja samþykktar teikningar hjá Hafnarfjarðarbæ um stækkun á húseign uppí 175 fm á tveim hæðum
Eignin skiptist í: Forstofu, hol/gang, stofu/borðstofu, þrjú svefnherbergi, eldhús, baðherbergi með þvottaaðstöðu, geysmluloft yfir húseign og geymsluskúr.
Nánari lýsing á eign: Gengið er inn í húsið á framhlið þess.
Forstofa: Fataskápar í forstofu.
Eldhús: Er af forstofu og er með fallegri u-laga hvítri HTH innréttingu með efri og neðri skápum, vönduð tæki og steinn í borðplötum í eldhúsi, gert er ráð fyrir tvöföldum ísskáp og uppþvottavél í eldhúsinnréttingu.
Gangur/hol: Af því er gengið inn aðrar vistarverur eignarinnar og er innbyggður skápur á gangi. Af ganginum er hleri með fellistiga uppá loft hússins.
Stofa/borðstofa: Opið og bjart rými með gluggum á tvo vegu til suðurs og austurs.
Þrjú góð svefnherbergi: Öll með fataskápum og af einu þeirra er útgengi út á pall.
Baðherbergi: Flísalagt á gólfi og veggjum, baðkar, vaskinnrétting og upphengt salerni, gert er ráð fyrir þvottavél og þurrkara á baðherbergi. Gluggi.
Geymsluloft : Rúmgott yfir húsinu, innangengt af gangi.
Einangraður geymsluskúr er á verönd til austurs og á pallinum er einnig hitaveitupottur.
Gólfefni: Harðparket og flísar á gólfum eignar.
Þær endurbætur sem hafa átt sér stað á húseign s.l. ár skv. seljendum:
- 2023 Nýtt þakjárn og þaklæðning á húsi. Húseign máluð að utan.
- 2020 Sólpallur smíðaður.Hellulögn lögð.
- 2018 Hitalagnir, kalt/heitt neysluvatn og skolplagnir endurnýjað.-Ný hitagrind sem að er í kassa utan á húsi.-Viðbygging endurnýjuð. Geymslukúr smíðaður.
- 2013-14 Grindverk meðfram húsi smíðað.
Samantekt: Einstök eign, einbýli á einni hæð með fallegu útisvæði og miklum stækkunarmöguleikum á einstökum stað í 220 Hafnarfirði.
Staðsetning eignarinnar er afar góð á rólegum stað miðsvæðis í Hafnarfirði, rétt við Víðistaðatúnið.
Allar nánari upplýsingar veitir Elín Viðarsdóttir löggiltur fasteignasali gsm 695-8905 eða elin@valholl.is
Ár
Fasteignamat
Kaupverð
Stærð
Fermetraverð
21. júl. 2023
68.350.000 kr.
83.500.000 kr.
90 m²
927.778 kr.
3. mar. 2014
23.800.000 kr.
25.600.000 kr.
90 m²
284.444 kr.
Byggt á upplýsingum úr Þjóðskrá Íslands frá 2006-2025