Löggiltir fasteignasalar innan Félags fasteignasala:
Hannes Steindórsson
Bogi Molby Pétursson
Guðrún Antonsdóttir
Heimir Hallgrímsson
Hrafnkell P. H. Pálmason
Viðar Marinósson
Elías Haraldsson
Kristján Þórir Hauksson
Albert Bjarni Úlfarsson
Ragnar Þorsteinsson
Þórey Ólafsdóttir
Andri Freyr Halldórsson
Upplýsingar
Byggt 2025
109,1 m²
4 herb.
1 baðherb.
3 svefnh.
Útsýni
Sameiginl. inngangur
Lyfta
Lýsing
LIND Fasteignasala kynnir með stolti nýjar íbúðir við Reynidal 2 í nýju fjölskylduvænu íbúðarhverfi í Reykjanesbæ.
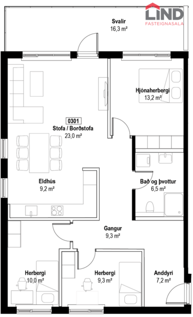
Íbúð 301 er 109,1 fm 4ra herbergja ENDAÍBÚÐ á efstu hæð og 16,3 fm svölum til suðurs með góðu útsýni.
Íbúðin skiptist í: forsstofu, eldhús, baðherbergi með tengi fyrir þvottavél og þurkara, hjónaherbergi, herbergi, herbergi, borðstofa/stofa og 6,8 fm geymslu í sameign.
***AFHENDING VIÐ KAUPSAMNING***
Einnig má sjá heimasíðu verkefnisins. Skoðaðu með að smella hérna
- ENDAÍBÚÐ
- Fullbúnar íbúðir að innan sem utan að undanskyldum gólfefnum. Flísar í votrýmum.
- Rúmgóðar 16,6 fm svalir til suðurs með góðu útsýni.
Nánari upplýsingar veita:
Páll Konráð, Löggiltur fasteignasali, S:820-9322, pall@fastlind.is
Hafþór Örn, löggiltur fasteignasali, S: 699-4040, hafthor@fastlind.is
Allir kaupendur okkar fá Vildarkort Lindar. Með því að framvísa kortinu færð þú 30% afslátt hjá 10 samstarfsaðilum: Húsgagnahöllin, S. Helgason, Flugger litir, Húsasmiðjan, Z brautir og gluggatjöld, Vídd, Parki, Betra bak, Dorma og Vodafone.
Úrdráttur úr skilalýsingu. Hafðu samband fyrir nánari upplýsingar.
Frágangur innanhúss:
Innréttingar: Verða sérsmíðaðar frá 3 AM.
Eldhús: Sérsmíðuð og vönduð innrétting, þar sem lögð er áhersla á að haga skipulagi eldhúsa á sem bestan hátt með nútíma hönnun og þarfir í huga, með miklu skápaplássi, möguleiki á innbyggðri uppþvottavél, bakaraofn í vinnuhæð, helluborð. Borðplata verður úr ljósum Acryl stein með vaski. Innfeld lýsing í loftum. Heimilistæki af gerðinni Electrolux.
Baðherbergi: Sérsmíðuð og vönduð innrétting frá 3 AM. Salerni er upphengt, handklæðaofn og sturta með glerskilrúmi. Gert er ráð fyrir þvottavél og þurrkara á baðherberginu með sérsmíðaðri innrétingu frá 3 AM.
Baðherbergi eru flísalögð á gólfum og veggjum. Sturta er flíslögð og með innfeldu niðurfalli. Innfeld lýsing í loftum.
Hreinlætistæki: Öll blöndunartæki eru af vandaðri gerð, Grohe.
Gólfefni: Allar íbúðir verða tilbúnar til lagningar gólfefna, fyrir utan baðherbergi og þvottarými sem verða flíslögð með 60x60 gráum flísum á gólfi og 60x60 á veggjum ljósgrá að lit.
Flísar frá Álfaborg.
Hurðir: Innihurðar eru frá 3 AM og eru með innfeldum lömum og segullæsingum og verða í sama lit og innréttingar.
Byggingaraðili: Sóltún ehf.
Aðalhönnuður hússins: KRark.
Raflagnahönnuður: Þelamörk ehf.
Reynidalur 2 er 19 íbúða fjölbýli á 3 hæðum með lyftu. Húsið er í Dalshverfi á Reykjanesinu sem er einstakt og nýstárlegt hverfi. Hverfið er umkringt óspilltri náttúru en um leið í nálægð við góðar samgönguæðar og sérlega vel staðsett innan Reykjanesbæjar.
31 bílastæði á lóð.
Verið er að leggja lokahönd á framkvæmdir við nýjan leikskóla innan hverfisins og stórglæsilegur Stapaskóli er í göngufjarlægð. Stutt er út á Reykjanesbrautina og um 15 mínútna akstur að Hafnarfirði.
Eignum verður skilað fullfrágengnum að innan sem utan.
ATH. Myndir í auglýsingu sem sýna innbú voru búnar til með hjálp gervigreindar, það er gert einungis til að gefa hugmyndir að fullbúnu rými, hlutföll og fleiri hlutir geta hliðrast til og ber því að taka þessum myndum með fyrirvara, upprunalegu myndirnar eru einnig til staðar.
Nánari upplýsingar veita:
Páll Konráð, Löggiltur fasteignasali, S:820-9322, pall@fastlind.is
Hafþór Örn, löggiltur fasteignasali, S: 699-4040, hafthor@fastlind.is
Kaupandi greiðir 0,3% af væntanlegu brunabótamáti þegar það verður lagt á íbúðina.
Gjöld sem kaupandi þarf að standa straum af vegna kaupanna:
1. Stimpilgjald af kaupsamningi - 0,8% af heildarfasteignamati, lögaðili greiðir 1,6%
2. Þinglýsingargjald af kaupsamningi, veðskuldabréfi, mögulegu veðleyfi o.fl. - kr. 2.700 af hverju skjali.
3. Lántökugjald lánastofnunar. Nánari upplýsingar á t.d. heimasíðu lánastofnana.
4. Umsýslugjald til fasteignasölu skv. gjaldskrá.
Íbúð 301 er 109,1 fm 4ra herbergja ENDAÍBÚÐ á efstu hæð og 16,3 fm svölum til suðurs með góðu útsýni.
Íbúðin skiptist í: forsstofu, eldhús, baðherbergi með tengi fyrir þvottavél og þurkara, hjónaherbergi, herbergi, herbergi, borðstofa/stofa og 6,8 fm geymslu í sameign.
***AFHENDING VIÐ KAUPSAMNING***
Einnig má sjá heimasíðu verkefnisins. Skoðaðu með að smella hérna
- ENDAÍBÚÐ
- Fullbúnar íbúðir að innan sem utan að undanskyldum gólfefnum. Flísar í votrýmum.
- Rúmgóðar 16,6 fm svalir til suðurs með góðu útsýni.
Nánari upplýsingar veita:
Páll Konráð, Löggiltur fasteignasali, S:820-9322, pall@fastlind.is
Hafþór Örn, löggiltur fasteignasali, S: 699-4040, hafthor@fastlind.is
Allir kaupendur okkar fá Vildarkort Lindar. Með því að framvísa kortinu færð þú 30% afslátt hjá 10 samstarfsaðilum: Húsgagnahöllin, S. Helgason, Flugger litir, Húsasmiðjan, Z brautir og gluggatjöld, Vídd, Parki, Betra bak, Dorma og Vodafone.
Úrdráttur úr skilalýsingu. Hafðu samband fyrir nánari upplýsingar.
Frágangur innanhúss:
Innréttingar: Verða sérsmíðaðar frá 3 AM.
Eldhús: Sérsmíðuð og vönduð innrétting, þar sem lögð er áhersla á að haga skipulagi eldhúsa á sem bestan hátt með nútíma hönnun og þarfir í huga, með miklu skápaplássi, möguleiki á innbyggðri uppþvottavél, bakaraofn í vinnuhæð, helluborð. Borðplata verður úr ljósum Acryl stein með vaski. Innfeld lýsing í loftum. Heimilistæki af gerðinni Electrolux.
Baðherbergi: Sérsmíðuð og vönduð innrétting frá 3 AM. Salerni er upphengt, handklæðaofn og sturta með glerskilrúmi. Gert er ráð fyrir þvottavél og þurrkara á baðherberginu með sérsmíðaðri innrétingu frá 3 AM.
Baðherbergi eru flísalögð á gólfum og veggjum. Sturta er flíslögð og með innfeldu niðurfalli. Innfeld lýsing í loftum.
Hreinlætistæki: Öll blöndunartæki eru af vandaðri gerð, Grohe.
Gólfefni: Allar íbúðir verða tilbúnar til lagningar gólfefna, fyrir utan baðherbergi og þvottarými sem verða flíslögð með 60x60 gráum flísum á gólfi og 60x60 á veggjum ljósgrá að lit.
Flísar frá Álfaborg.
Hurðir: Innihurðar eru frá 3 AM og eru með innfeldum lömum og segullæsingum og verða í sama lit og innréttingar.
Byggingaraðili: Sóltún ehf.
Aðalhönnuður hússins: KRark.
Raflagnahönnuður: Þelamörk ehf.
Reynidalur 2 er 19 íbúða fjölbýli á 3 hæðum með lyftu. Húsið er í Dalshverfi á Reykjanesinu sem er einstakt og nýstárlegt hverfi. Hverfið er umkringt óspilltri náttúru en um leið í nálægð við góðar samgönguæðar og sérlega vel staðsett innan Reykjanesbæjar.
31 bílastæði á lóð.
Verið er að leggja lokahönd á framkvæmdir við nýjan leikskóla innan hverfisins og stórglæsilegur Stapaskóli er í göngufjarlægð. Stutt er út á Reykjanesbrautina og um 15 mínútna akstur að Hafnarfirði.
Eignum verður skilað fullfrágengnum að innan sem utan.
ATH. Myndir í auglýsingu sem sýna innbú voru búnar til með hjálp gervigreindar, það er gert einungis til að gefa hugmyndir að fullbúnu rými, hlutföll og fleiri hlutir geta hliðrast til og ber því að taka þessum myndum með fyrirvara, upprunalegu myndirnar eru einnig til staðar.
Nánari upplýsingar veita:
Páll Konráð, Löggiltur fasteignasali, S:820-9322, pall@fastlind.is
Hafþór Örn, löggiltur fasteignasali, S: 699-4040, hafthor@fastlind.is
Kaupandi greiðir 0,3% af væntanlegu brunabótamáti þegar það verður lagt á íbúðina.
Gjöld sem kaupandi þarf að standa straum af vegna kaupanna:
1. Stimpilgjald af kaupsamningi - 0,8% af heildarfasteignamati, lögaðili greiðir 1,6%
2. Þinglýsingargjald af kaupsamningi, veðskuldabréfi, mögulegu veðleyfi o.fl. - kr. 2.700 af hverju skjali.
3. Lántökugjald lánastofnunar. Nánari upplýsingar á t.d. heimasíðu lánastofnana.
4. Umsýslugjald til fasteignasölu skv. gjaldskrá.