Löggiltir fasteignasalar innan Félags fasteignasala:
Ástþór Reynir Guðmundsson
Vigdís R. S. Helgadóttir
Guðbjörg Helga Jóhannesdóttir
Gylfi Jens Gylfason
Sigrún Matthea Sigvaldadóttir
Sveinn Gíslason
Páll Guðmundsson
Þórarinn Arnar Sævarsson
Berglind Hólm Birgisdóttir
Þorsteinn Gíslason
Guðrún Lilja Tryggvadóttir
Brynjar Ingólfsson
Guðný Þorsteinsdóttir
Bjarni Blöndal
Þorsteinn Ólafs
Þórdís Björk Davíðsdóttir
Jóhann Kristinn Jóhannesson
Bjarný Björg Arnórsdóttir
Salvör Þóra Davíðsdóttir
Magga Sigríður Gísladóttir
Upplýsingar
Verðsaga
Byggt 1978
68,3 m²
3 herb.
1 baðherb.
2 svefnh.
Sameiginl. inngangur
Lýsing
RE/MAX og Dagbjartur Willardsson löggiltur fasteignasali kynna, Skógarbraut 918A, Ásbrú-Reykjanesbæ íbúð 0301 fnr. 230-9242.
Íbúðin er skráð hjá þjóðskrá 68,3 fm og íbúðarhlutinn skráður 67fm og lítil geymsla á jarðhæð skráð 1,3fm. Húsið er byggt árið 1978 en var allt tekið í gegn fyrir nokkrum árum. Eignin hefur mikið verið endurnýjuð. Harðparket á gólfum er frá Parka sem og hurðar. Baðherbergi hefur verið endurnýjað, þar eru flísar frá Byko og innrétting frá Parka. Ný heimilistæki eru í eldhúsi og sérsmíðuð innrétting frá Parka. Rafmagn hefur verið endurnýjað og eru rofar og tenglar nýir. Einnig er búið að endurnýja rafmagnstöflur. Búið er að endurnýja skolp út fyri sökkul, skipta um neysluvatns lagnir, ofnalagnir og ofna. Íbúðin er nýmáluð. Gluggar hafa verið endurnýjaðir sem og svalahurðar, svalir eru einnig nýjar. Húsið var málað árið 2023.
FÁÐU SENT SÖLUYIRLIT YFIR EIGNINA HÉR.
Nánari lýsing:
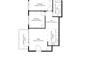
Aðkoma: Malbikur stæði fyrir framan húsið. Snyrtileg sameign upp að íbúðinni á 3. og efstu hæð hússins.
Forstofa: Parket á gólfi og góður hvítur fataskápur.
Stofa/borðstofa: Parket á gólfi. Útgengt á svalir
Eldhús: Parket á gólfi. Falleg hvít innrétting og dökk innrétting. Helluborð með viftu yfir. Bakstursofn í vinnuhæð.
Svefnherbergi: Eru tvö og er parket á gólfum þeirra beggja sem og hvítir fataskápar.
Baðherbergi: Mjög rúmgott með flísum á gólfi með sturtu. Fallegar hvítar innréttingar og tengi fyrir þvottavél.
Íbúðirnar voru byggðar árið 1978 og farið var eftir þágildandi reglugerð. Á meðan á endurbótum stóð voru sendar inn breytingar á aðaluppdráttum og lagnateikningum og þær samþykktar af byggingarfulltrúa. Íbúðum er skilað fullbúnum með gólfefnum. Harðparket á gólfum frá Húsasmiðjunni, flísar á baðherbergi eru frá Álfaborg. Innihurðar eru frá Húsasmiðjunni. Fataskápar í herbergjum eru frá Ikea. Ofnakerfi hússins er tengt sameiginlegu forhitarakerfi tengt í tækniherbergi 1.hæð, ofnar eru voryl ofnar, nýir frá Ofnasmiðju Suðurnesja (Byko). Led ljóskúplar á baðherbergi eru frá Rönning. Greinatafla er í alrými hverrar íbúðar en aðaltafla hússins og mælatafla fyrir hverja íbúð er í tækniherbergi 1.hæð. Veggir eru ýmist byggðir upp á eftirfarandi máta. Á milli íbúða eru þeir ýmist steyptir eða hlaðnir og uppfylla núgildandi brunakröfur. Veggir inni í íbúðinni hefðbundnir gifsveggir. Langir hafa verið endurnýjaðir,neysluvatn ofnalagnir og frárennsli út fyrir sökkul. Dregið hefur verið nýtt raflagnaefni í þær lagnaleiðir sem voru til staðar og nýjum leiðum bætt við að hluta.
Eldhúsinnréttingar eru sérsmíðaðar og eru frá Parka, innbyggð uppþvottavél og innbyggður ísskápur valkostur en eru ekki innifalin í verði en tækin eru Electrolux frá Húsasmiðjunni. Blástursofn og keramik helluborð eru einnig Electrolux frá Húsasmiðjunni. Innbyggð vifta er fyrir ofan helluborð og kemur frá Parka. Hreinlætistæki eru frá Byko. Baðherbergi Innréttingar, vaskaskápur með skúffu og speglaskápur með led lýsingu að neðan eru frá Parka. Öll hreinlætistæki eru frá Byko. Flísar eru á gólfum og hluta af veggjum. Vélrænt útsog með stýringu í tækniherbergi 1 hæð.
Allar nánari upplýsingar veitir:
Dagbjartur Willardsson lgf hjá RE/MAX í s: 861-7507 eða á daddi@remax.is
- Ég býð upp á frítt söluverðmat á þinni eign og veiti góða og lipra þjónustu. -
Gjöld sem kaupandi þarf að greiða vegna kaupanna:
1. Stimpilgjald af kaupsamningi - 0,8% af heildarfasteignamati hjá einstaklingum. Sé um fyrstu kaup að ræða er stimpilgjald af kaupsamningi 0,4% af heildarfasteignamati.
2. Stimpilgjald af kaupsamningi - 1,6% af heildarfasteignamati hjá lögaðilum.
3. Þinglýsingargjald af kaupsamningi, veðskuldabréfi, veðleyfi og fl. 2.700 kr. af hverju skjali.
4. Lántökugjald lánastofnunar - breytilegt, sjá gjaldskrá á heimasíðum lánastofnana.
5. Umsýslugjald til fasteignasölu 69.900 kr. m.vsk.
Í lögum um fasteignakaup nr. 40/2002 er kveðið á um ríka skoðunarskyldu kaupenda á fasteignum. Vill RE/MAX því skora á væntanlega kaupendur að kynna sér vel ástand fasteigna fyrir kauptilboðsgerð og leita til þar til bærra sérfræðinga um nánari skoðun.
Íbúðin er skráð hjá þjóðskrá 68,3 fm og íbúðarhlutinn skráður 67fm og lítil geymsla á jarðhæð skráð 1,3fm. Húsið er byggt árið 1978 en var allt tekið í gegn fyrir nokkrum árum. Eignin hefur mikið verið endurnýjuð. Harðparket á gólfum er frá Parka sem og hurðar. Baðherbergi hefur verið endurnýjað, þar eru flísar frá Byko og innrétting frá Parka. Ný heimilistæki eru í eldhúsi og sérsmíðuð innrétting frá Parka. Rafmagn hefur verið endurnýjað og eru rofar og tenglar nýir. Einnig er búið að endurnýja rafmagnstöflur. Búið er að endurnýja skolp út fyri sökkul, skipta um neysluvatns lagnir, ofnalagnir og ofna. Íbúðin er nýmáluð. Gluggar hafa verið endurnýjaðir sem og svalahurðar, svalir eru einnig nýjar. Húsið var málað árið 2023.
FÁÐU SENT SÖLUYIRLIT YFIR EIGNINA HÉR.
Nánari lýsing:
Aðkoma: Malbikur stæði fyrir framan húsið. Snyrtileg sameign upp að íbúðinni á 3. og efstu hæð hússins.
Forstofa: Parket á gólfi og góður hvítur fataskápur.
Stofa/borðstofa: Parket á gólfi. Útgengt á svalir
Eldhús: Parket á gólfi. Falleg hvít innrétting og dökk innrétting. Helluborð með viftu yfir. Bakstursofn í vinnuhæð.
Svefnherbergi: Eru tvö og er parket á gólfum þeirra beggja sem og hvítir fataskápar.
Baðherbergi: Mjög rúmgott með flísum á gólfi með sturtu. Fallegar hvítar innréttingar og tengi fyrir þvottavél.
Íbúðirnar voru byggðar árið 1978 og farið var eftir þágildandi reglugerð. Á meðan á endurbótum stóð voru sendar inn breytingar á aðaluppdráttum og lagnateikningum og þær samþykktar af byggingarfulltrúa. Íbúðum er skilað fullbúnum með gólfefnum. Harðparket á gólfum frá Húsasmiðjunni, flísar á baðherbergi eru frá Álfaborg. Innihurðar eru frá Húsasmiðjunni. Fataskápar í herbergjum eru frá Ikea. Ofnakerfi hússins er tengt sameiginlegu forhitarakerfi tengt í tækniherbergi 1.hæð, ofnar eru voryl ofnar, nýir frá Ofnasmiðju Suðurnesja (Byko). Led ljóskúplar á baðherbergi eru frá Rönning. Greinatafla er í alrými hverrar íbúðar en aðaltafla hússins og mælatafla fyrir hverja íbúð er í tækniherbergi 1.hæð. Veggir eru ýmist byggðir upp á eftirfarandi máta. Á milli íbúða eru þeir ýmist steyptir eða hlaðnir og uppfylla núgildandi brunakröfur. Veggir inni í íbúðinni hefðbundnir gifsveggir. Langir hafa verið endurnýjaðir,neysluvatn ofnalagnir og frárennsli út fyrir sökkul. Dregið hefur verið nýtt raflagnaefni í þær lagnaleiðir sem voru til staðar og nýjum leiðum bætt við að hluta.
Eldhúsinnréttingar eru sérsmíðaðar og eru frá Parka, innbyggð uppþvottavél og innbyggður ísskápur valkostur en eru ekki innifalin í verði en tækin eru Electrolux frá Húsasmiðjunni. Blástursofn og keramik helluborð eru einnig Electrolux frá Húsasmiðjunni. Innbyggð vifta er fyrir ofan helluborð og kemur frá Parka. Hreinlætistæki eru frá Byko. Baðherbergi Innréttingar, vaskaskápur með skúffu og speglaskápur með led lýsingu að neðan eru frá Parka. Öll hreinlætistæki eru frá Byko. Flísar eru á gólfum og hluta af veggjum. Vélrænt útsog með stýringu í tækniherbergi 1 hæð.
Allar nánari upplýsingar veitir:
Dagbjartur Willardsson lgf hjá RE/MAX í s: 861-7507 eða á daddi@remax.is
- Ég býð upp á frítt söluverðmat á þinni eign og veiti góða og lipra þjónustu. -
Gjöld sem kaupandi þarf að greiða vegna kaupanna:
1. Stimpilgjald af kaupsamningi - 0,8% af heildarfasteignamati hjá einstaklingum. Sé um fyrstu kaup að ræða er stimpilgjald af kaupsamningi 0,4% af heildarfasteignamati.
2. Stimpilgjald af kaupsamningi - 1,6% af heildarfasteignamati hjá lögaðilum.
3. Þinglýsingargjald af kaupsamningi, veðskuldabréfi, veðleyfi og fl. 2.700 kr. af hverju skjali.
4. Lántökugjald lánastofnunar - breytilegt, sjá gjaldskrá á heimasíðum lánastofnana.
5. Umsýslugjald til fasteignasölu 69.900 kr. m.vsk.
Í lögum um fasteignakaup nr. 40/2002 er kveðið á um ríka skoðunarskyldu kaupenda á fasteignum. Vill RE/MAX því skora á væntanlega kaupendur að kynna sér vel ástand fasteigna fyrir kauptilboðsgerð og leita til þar til bærra sérfræðinga um nánari skoðun.
Ár
Fasteignamat
Kaupverð
Stærð
Fermetraverð
1. feb. 2023
25.300.000 kr.
38.500.000 kr.
68.3 m²
563.690 kr.
Byggt á upplýsingum úr Þjóðskrá Íslands frá 2006-2025