Upplýsingar
Byggt 1979
224,2 m²
6 herb.
1 baðherb.
4 svefnh.
Þvottahús
Bílskúr
Sérinngangur
Lýsing
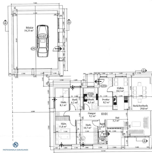
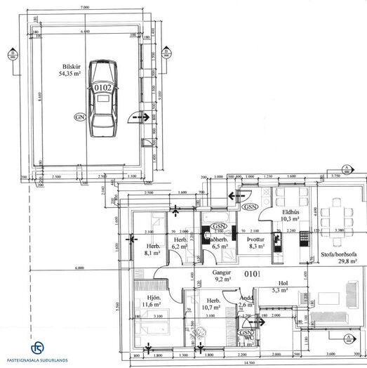
Fasteignasala Suðurlands (s 483 3424) kynnir í einkasölu: Heinaberg 23, Þorlákshöfn. Einstaklega fallegt 128m2 einbýlishús með 4 svefnherbergjum ásamt 62m2, tvöföldum bílskúr auk 33m2 geymslu með glugga, undir bílskúrnum, sem hægt er að nýta á fjölmargan hátt.
Mjög auðvelt er að bæta við 5. svefnherberginu.
Húsið er einstaklega vel staðsett í grónu hverfi, örstutt frá leik- og grunnskóla og íþróttasvæði.
Stór sólpallur með góðum skjólveggjum er á suður- og vesturhlið þar sem sólar nýtur frá morgni til kvölds!
**Hægt er að bóka skoðun og fá allar nánari upplýsingar í síma 483 3424 og á fastsud@gmail.com **
Eignin skiptist svo:
* Rúmgóð flísalögð forstofa með skáp. Forstofuhurðin er með gleri.
* Einstaklega glæsilega stofu, borðstofu og sjónvarpsstofu með upp teknu lofti. Parket á gólfi.
* Úr stofunni er utangengt á stóran suður/vestur sólpall með góðum skjólveggjum.
* 4 góð, parketlögð, svefnherbergi, öll með fataskápum.
* Á tiltölulega einfaldan hátt er hægt að breyta sjónvarpsstofunni í 5. svefnherbergið.
* Stórglæsilegt eldhús með sérsmíðaðri innréttingu úr kirsuberjavið, parketi á gólfi og flísum á veggjum.
* Fallegt baðherbergi með innréttingu úr kirsuberjavið, baðkari og sturtu. Flísar eru á gólfi og veggjum.
* Rúmgott þvottahús með innréttingu, skápum og vinnuborði. Flísar á gólfi. Utangengt er úr þvottahúsinu í bakgarðinn.
** Bílskúrinn er sérlega stór, fullbúinn og með 2 aksturshurðum.
** Undir bílskúrnum er 33m2 geymsla (steypt gólf og veggir) með hita og rafmagni. Utangengt er í geymsluna um steyptan stiga.
** Garðurinn er uppgróinn. og með stórum sólpall. Bílaplan er með möl.
** Um er að ræða einstaklega fallega eign sem hefur fengið gott viðhald - sjón er sögu ríkari !
FASTEIGNASALA SUÐURLANDS HEFUR VEITT VANDAÐA OG GÓÐA ÞJÓNUSTU SÍÐAN 2003 !
Fasteignasala Suðurlands, Unubakka 3b, Þorlákshöfn.
Heimasíða fasteignasölunnar: https://www.eignin.is/
Í Þorlákshöfn er þjónustustig mjög gott - hagnýtar upplýsingar:
Verslun og þjónusta: Hér má m.a. finna:
KRÓNU VERSLUN
Apótekarann.
Hárgreiðslustofuna Kompuna (facebook: kompan klippistofa)
Rakarstofu Kjartans (facebook: kjartan rakari)
Vínbúðina.
Veitingastaðina: Thai Sakhon Restaurant (facebook: thai sakhon restaurant)
Svarta Sauðinn (facebook: svarti sauðurinn)
Skálann, sem jafnframt er sölustaður Orkunnar. Einnig er hér ÓB-stöð.
Caffe Bristól.
Hér er mjög góð heilsugæsla.
Hér er tannlæknir.
Í Ráðhúsi bæjarins eru, auk skrifstofu sveitarfélagsins:
Mjög gott bókasafn (facebook: Bæjarbókasafn Ölfuss) Landsbankinn
Tómstundir og afþreying:
Íþróttaiðkun í Þorlákshöfn er gríðarlega öflug og þá helst meðal barna og unglinga og er aðstaða til íþróttaiðkunar öll til mikillar fyrirmyndar.
Frá fjögurra ára aldri er í boði að iðka fótbolta (aegirfc.is), fimleika (facebook: fimleikadeild Þórs), körfubolta (facebook: Þór Þorlákshöfn) og frjálsar, ásamt því að iðkaður er badminton. Hér er svo einnig Litli íþróttaskólinn á vegum fimleikadeildarinnar fyrir börn frá eins árs aldri.
Motorcrossá braut rétt utan við bæinn.
Hestamennska (facebook: hestamannafélagið háfeti) með fallegum reiðleiðum allt um kring
Golf (facebook: golfklúbbur Þorlákshafnar) á rómuðum golfvelli sem staðsettur er í jaðri byggðarinnar, rétt við sjávarsíðuna.
Í íþróttamiðstöðinni er mjög góð líkamsræktar-aðstaða þar sem hægt er að komast í einka- þjálfun, spinning, hóptíma, líkamsrækt fyrir eldri borgara o.m.fl. Þar er að finna góða sundaðstöðumeð útilaug, heitum pottum, vaðlaug og skemmtilegri innilaug fyrir fjölskyldufólk. Jógastúdíó (Jógahornið). Öflug sjúkraþjálfun.
Afþreying er hér af ýmsum toga:
hér má meðal annars finna: Fallegt útivistarsvæði við vitann með útsýnispalli og göngustíg meðfram bjarginu í einstakri náttúrufegurð. Heilsustíg má finna í bænum þar sem líkamsræktartæki eru við göngu/hlaupastíga.
Hér er æðisleg strönd sem mikið er mikið notuð til útivistar og þar má oft sjá menn á brimbrettum, en slíkt er gott að stunda hér. Í sjónum við útsýnispallinn er einn vinsælasta staður til brimbrettaiðkunar á Íslandi.
Blackbeach tours (www.blackbeachtours.is) er afþreyingar fyrirtæki sem býður upp á fjórhjólaferðir bæði í fjöruna og um hraunið, RIB bátaferðir meðfram bjarginu og adrenalínferðir, snekkjuleigu og sjóstöng og jógaferðir úti í náttúrunni.
Einnig er hér: Öflugt leikfélag (facebook: leikfélag ölfuss).
Hinir ýmsu kórar (facebook: Tónar og Trix, Kyrjukórinn, ofl.) Einn stærsti Kiwanisklúbbur landsins (facebook: Kiwanisklúbburinn Ölver) O.sfr. o.s.frv.
** Allar helstu fréttir úr sveita
Mjög auðvelt er að bæta við 5. svefnherberginu.
Húsið er einstaklega vel staðsett í grónu hverfi, örstutt frá leik- og grunnskóla og íþróttasvæði.
Stór sólpallur með góðum skjólveggjum er á suður- og vesturhlið þar sem sólar nýtur frá morgni til kvölds!
**Hægt er að bóka skoðun og fá allar nánari upplýsingar í síma 483 3424 og á fastsud@gmail.com **
Eignin skiptist svo:
* Rúmgóð flísalögð forstofa með skáp. Forstofuhurðin er með gleri.
* Einstaklega glæsilega stofu, borðstofu og sjónvarpsstofu með upp teknu lofti. Parket á gólfi.
* Úr stofunni er utangengt á stóran suður/vestur sólpall með góðum skjólveggjum.
* 4 góð, parketlögð, svefnherbergi, öll með fataskápum.
* Á tiltölulega einfaldan hátt er hægt að breyta sjónvarpsstofunni í 5. svefnherbergið.
* Stórglæsilegt eldhús með sérsmíðaðri innréttingu úr kirsuberjavið, parketi á gólfi og flísum á veggjum.
* Fallegt baðherbergi með innréttingu úr kirsuberjavið, baðkari og sturtu. Flísar eru á gólfi og veggjum.
* Rúmgott þvottahús með innréttingu, skápum og vinnuborði. Flísar á gólfi. Utangengt er úr þvottahúsinu í bakgarðinn.
** Bílskúrinn er sérlega stór, fullbúinn og með 2 aksturshurðum.
** Undir bílskúrnum er 33m2 geymsla (steypt gólf og veggir) með hita og rafmagni. Utangengt er í geymsluna um steyptan stiga.
** Garðurinn er uppgróinn. og með stórum sólpall. Bílaplan er með möl.
** Um er að ræða einstaklega fallega eign sem hefur fengið gott viðhald - sjón er sögu ríkari !
FASTEIGNASALA SUÐURLANDS HEFUR VEITT VANDAÐA OG GÓÐA ÞJÓNUSTU SÍÐAN 2003 !
Fasteignasala Suðurlands, Unubakka 3b, Þorlákshöfn.
Heimasíða fasteignasölunnar: https://www.eignin.is/
Í Þorlákshöfn er þjónustustig mjög gott - hagnýtar upplýsingar:
Verslun og þjónusta: Hér má m.a. finna:
KRÓNU VERSLUN
Apótekarann.
Hárgreiðslustofuna Kompuna (facebook: kompan klippistofa)
Rakarstofu Kjartans (facebook: kjartan rakari)
Vínbúðina.
Veitingastaðina: Thai Sakhon Restaurant (facebook: thai sakhon restaurant)
Svarta Sauðinn (facebook: svarti sauðurinn)
Skálann, sem jafnframt er sölustaður Orkunnar. Einnig er hér ÓB-stöð.
Caffe Bristól.
Hér er mjög góð heilsugæsla.
Hér er tannlæknir.
Í Ráðhúsi bæjarins eru, auk skrifstofu sveitarfélagsins:
Mjög gott bókasafn (facebook: Bæjarbókasafn Ölfuss) Landsbankinn
Tómstundir og afþreying:
Íþróttaiðkun í Þorlákshöfn er gríðarlega öflug og þá helst meðal barna og unglinga og er aðstaða til íþróttaiðkunar öll til mikillar fyrirmyndar.
Frá fjögurra ára aldri er í boði að iðka fótbolta (aegirfc.is), fimleika (facebook: fimleikadeild Þórs), körfubolta (facebook: Þór Þorlákshöfn) og frjálsar, ásamt því að iðkaður er badminton. Hér er svo einnig Litli íþróttaskólinn á vegum fimleikadeildarinnar fyrir börn frá eins árs aldri.
Motorcrossá braut rétt utan við bæinn.
Hestamennska (facebook: hestamannafélagið háfeti) með fallegum reiðleiðum allt um kring
Golf (facebook: golfklúbbur Þorlákshafnar) á rómuðum golfvelli sem staðsettur er í jaðri byggðarinnar, rétt við sjávarsíðuna.
Í íþróttamiðstöðinni er mjög góð líkamsræktar-aðstaða þar sem hægt er að komast í einka- þjálfun, spinning, hóptíma, líkamsrækt fyrir eldri borgara o.m.fl. Þar er að finna góða sundaðstöðumeð útilaug, heitum pottum, vaðlaug og skemmtilegri innilaug fyrir fjölskyldufólk. Jógastúdíó (Jógahornið). Öflug sjúkraþjálfun.
Afþreying er hér af ýmsum toga:
hér má meðal annars finna: Fallegt útivistarsvæði við vitann með útsýnispalli og göngustíg meðfram bjarginu í einstakri náttúrufegurð. Heilsustíg má finna í bænum þar sem líkamsræktartæki eru við göngu/hlaupastíga.
Hér er æðisleg strönd sem mikið er mikið notuð til útivistar og þar má oft sjá menn á brimbrettum, en slíkt er gott að stunda hér. Í sjónum við útsýnispallinn er einn vinsælasta staður til brimbrettaiðkunar á Íslandi.
Blackbeach tours (www.blackbeachtours.is) er afþreyingar fyrirtæki sem býður upp á fjórhjólaferðir bæði í fjöruna og um hraunið, RIB bátaferðir meðfram bjarginu og adrenalínferðir, snekkjuleigu og sjóstöng og jógaferðir úti í náttúrunni.
Einnig er hér: Öflugt leikfélag (facebook: leikfélag ölfuss).
Hinir ýmsu kórar (facebook: Tónar og Trix, Kyrjukórinn, ofl.) Einn stærsti Kiwanisklúbbur landsins (facebook: Kiwanisklúbburinn Ölver) O.sfr. o.s.frv.
** Allar helstu fréttir úr sveita