Löggiltir fasteignasalar innan Félags fasteignasala:
Sigurður Maack Gunnarsson
Svanþór Einarsson
Theodór Emil Karlsson
Steingrímur Benediktsson
Vista
fjölbýlishús

Þórðarsveigur 4

113 Reykjavík

81.500.000 kr.

790.495 þ.kr./m2
Fasteignanúmer

F2260588

Fasteignamat

66.300.000 kr.

Brunabótamat

55.590.000 kr.

Áhvílandi

0 kr.

Arion banki – Reikna lán
Upplýsingar
Verðsaga
svg
Byggt 2003
svg
103,1 m²
svg
4 herb.
svg
1 baðherb.
svg
3 svefnh.
svg
Þvottahús
svg
Sameiginl. inngangur
svg
Bílastæði
svg
Lyfta

Lýsing

** Hafðu samband og bókaðu tíma fyrir skoðun - Svanþór Einarsson, löggiltur fasteignasali - svanthor@fastmos.is eða 698-8555 - Steingrímur Benediktsson, löggiltur fasteignasali - steingrimur@fastmos.is eða 862-9416 - Theodór Emil Karlsson, löggiltur fasteignasali - teddi@fastmos.is eða 690-8040 ** 

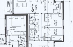
Fasteignasala Mosfellsbæjar kynnir: Falleg og vel skipulögð 103,1 m2 4ra herbergja íbúð á 2. hæð ásamt bílastæði í bílakjallara í lyftuhúsnæði við Þórðarsveig 4 í Reykjavík. Eignin er skráð 103,1 þar af íbúð 94,3 m2 og geymsla 8,8 m2. Eignin skiptist í forstofu, stofu/forstofu, eldhús, 3 svefnherbergi, baðherbergi og þvottahús. Sérgeymsla er í sameign í kjallara. Góðar svalir í suðurátt. Sérinngangur af opnum stigagangi. Staðsetning hússins er frábær í rólegri barnvænni götu. Stutt í alla helstu þjónustu. Sundlaug, golfvöllur, grunnskóli og leikskóli í næsta nágrenni. Stutt í íþróttasvæði Fram. Miklir útivistamöguleikar, t.d. við Úlfarsá, Reynisvatn og Hólmsheiði.

Smellt hér til að fá söluyfirlit sent strax

Nánari lýsing:
Forstofa er með flísum á gólfi og fataskáp.
Eldhús er með nýlegri hvítri eldhúsinnréttingu og harðparketi á gólfi. Í innréttingu er ofn, helluborð, vifta, ísskápur og uppþvottavél.
Svefnherbergi 1 (hjónaherbergi) er með harðparketi á gólfi og fataskápum.
Svefnherbergi 2 er með harðparketi á gólfi og fataskáp.
Svefnherbergi 3 er með harðparketi á gólfi og fataskáp.
Stofa/borðstofa er rúmgóð og með harðparketi á gólfi. Úr stofu er gengið út á skjólgóðar svalir í suðurátt.
Baðherbergi er með flísum á gólfi og veggjum. Baðkar með sturtutækjum. Falleg innrétting með skolvask. Handklæðaofn, skápur og upphengt salerni.
Þvottaherbergi er innan íbúðar. Flísar á gólfi, góð innrétting og tengi fyrir þvottavél, þurrkara og skolvask.
Sérgeymsla er í sameign, skráð 8,8 m2.
Bílastæði í lokuðum og upphituðum bílakjallara fylgir eigninni, merkt B13.

Annað: Íbúðinni fylgir hlutdeild að sameiginlegri vagna- og hjólageymslu. Hellulögð stétt er fyrir framan hús og baklóð tyrft. Sameiginleg malbikuð stæði á framlóð hússins. Rafhleðslustaurar er á lóð í eigu húsfélagsins. Húsið og sameign hafa fengið gott viðhald á undanförnum árum. Meðal annars hefur nýlega verið farið í múrviðgerðir og húsið steinað og málað. Þá er nýlega búið að byggja svalalokun yfir svalagang efstu hæða til þess að vernda húsið fyrir veðri. Nýlega búið að skipta um myndavéladyrasíma í húsinu og mála og skipta um teppi í stigagangi. Samþykkt var að leggja rafmagn fyrir hleðslu i bilakjallarann, þannig að það fólk þarf þá bara að leigja eða greiða fyrir hleðslustöðina.

Fyrirhugað fasteignamat 2026 er 73.650.000 kr.

Verð kr. 81.500.000,-



Um skoðunar- og aðgæsluskyldu:
Í lögum um fasteignakaup nr. 40/2002 er kveðið á um ríka skoðunarskyldu kaupenda á fasteignum. Fasteignasala Mosfellsbæjar skorar því á væntanlega kaupendur að kynna sér vel ástand fasteigna fyrir kauptilboðsgerð og leita til þar til bærra sérfræðinga um nánari skoðun ef með þarf.

Forsendur söluyfirlits:
Söluyfirlit er samið af fasteignasala í samræmi við ákvæði laga nr. 70/2015. Þær upplýsingar sem fram koma í söluyfirliti þessu eru sóttar í opinberar skrár, til seljanda sjálfs og eftir atvikum til húsfélags. Seljandi veitir upplýsingar um eign í samræmi við upplýsingaskyldu laga um fasteignakaup nr. 40/2002. Fasteignasali sannreynir að þær upplýsingar séu réttar með sjónskoðun á eigninni.
Fasteignasali getur ekki fullyrt um ástand og eiginleika þeirra hluta fasteigna sem ekki eru aðgengilegir og sjást ekki berum augum, t.d. lagnir, dren, skólp og þak.

Gjöld sem kaupandi þarf að greiða vegna kaupa:
1. Stimpilgjald af kaupsamningi sem er hlutfall af fasteignamati. Stimpilgjald er 0,8% fyrir einstaklinga (0,4% við fyrstu kaup) og 1,6% fyrir lögaðila.
2. Þinglýsingargjald af kaupsamningi, veðskuldabréfum, veðleyfum o.fl. Þinglýsingargjald er kr. 2.700,- fyrir hvert skjal.
3. Lántökugjald lánastofnunar - er skv. gjaldskrá viðkomandi lánastofnunar.
4. Umsýslugjald til fasteignasölu skv. kauptilboði.
5. Þegar um nýbyggingu er að ræða greiðir kaupandi skipulagsgjald, 0,3% af endanlegu brunabótamáti, þegar það er lagt á af viðkomandi sveitarfélagi.

img
Svanþór Einarsson
Lögg.fasteignasali innan félags fasteignasala
Fasteignasala Mosfellsbæjar
Þverholti 2, 270 Mosfellsbæ
Fasteignasala Mosfellsbæjar

Fasteignasala Mosfellsbæjar

Þverholti 2, 270 Mosfellsbæ
phone
img

Svanþór Einarsson

Þverholti 2, 270 Mosfellsbæ
Ár
Fasteignamat
Kaupverð
Stærð
Fermetraverð
22. nóv. 2024
66.900.000 kr.
76.500.000 kr.
20201 m²
3.787 kr.
27. apr. 2018
35.900.000 kr.
40.500.000 kr.
103.1 m²
392.823 kr.
Byggt á upplýsingum úr Þjóðskrá Íslands frá 2006-2025
Fasteignasala Mosfellsbæjar

Fasteignasala Mosfellsbæjar

Þverholti 2, 270 Mosfellsbæ
phone

Svanþór Einarsson

Þverholti 2, 270 Mosfellsbæ