Upplýsingar
Verðsaga
Byggt 2022
194,3 m²
5 herb.
2 baðherb.
4 svefnh.
Þvottahús
Bílskúr
Sérinngangur
Lýsing
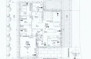
Hafsteinn Þorvaldsson löggiltur fasteignasali, ásamt HÚS fasteignasölu kynna í einkasölu Móstekk 59 sem er nýlegt fimm herbergja einbýlishús í nýju vinsælu íbúðahverfi á Selfossi. Húsið er á einni hæð, byggt úr timbri, klætt að utan með smábáru álklæðningu, bára á þaki. Húsið er einstaklega viðhaldslétt að utan. Húsið er 194,3 fm að stærð, þar af sambyggður bílskúr 37,8 fm. Hönnun hússins tekur m.a. mið af því að viðhald sé í lágmarki og innra skipulag sett upp með það að markmiði að nýta sem best stærð íbúðar. Húsið er í göngufæri við nýja grunnskólann Stekkjaskóla.
Drenmöl á lóð, lítil grasflöt og skjólgirðing kringum lóðina að mestu.
Nánari lýsing:
Fjögur góð svefnherbergi, fataskápar í þrem þeirra og eitt þeirra er forstofuherbergi, forstofa, sjónvarpshol, baðherbergi og annað gestasalerni, þvottahús með innréttingu. Stofa- borðstofa og eldhús í opnu rými og úr því er útgengt út í garð í gegnum yfirbyggða verönd. Í stofu er arinn frá Funa. Vönduð eldhúsinnrétting með innbyggðum ísskáp, uppþvottavél og hægt er að loka af borðplötu/vinnuborð að hluta. Hægt er að sitja við eldhúseyju á barstólum. Rúmgott baðherbergi, innrétting, spegill með lýsingu og "walk inn" sturta með glervegg. Útgengt er úr baðherbergi út á sólpall. Úr þvottahúsi er innangengt í rúmgóðan bílskúr með Epoxy á gólfi. Í bílskúr eru stórir skápar.
Húsið er kynt með svæðaskiptum gólfhita með stýringum. Innfelld Led-lýsing í loftum sem hönnuð var af Lumex og víða í húsinu er óbein lýsing. Á gólfum er vandað harðparket frá Parka og á votrýmum eru flísar frá Vídd. Hljóðvistardúkar frá ENSO í alrými og sjónvarpsholi. Næturlýsing á sólúri að framanverðu, lagnir fyrir hleðslustöð og fyrir heitan pott.
Virkilega spennandi og nýleg eign á fínum stað.
Bókið skoðun.
Nánari upplýsingar veita Hafsteinn Þorvaldsson viðskiptafræðingur/löggiltur fasteigna,- og skipasali s. 891-8891, hafsteinn@husfasteign.is
"Okkar fagmennska eru þínir hagsmunir"
Gjöld sem kaupandi þarf að standa straum að vegna kaupanna.
1. Stimpilgjöld af kaupsamningi - 0,8 % af heildarfasteignamati. (0,4% fyrstu kaup, 1,6% lögaðilar)
2. Þinglýsingargjald af kaupsamningi, veðskuldabréfi, mögulegu veðleyfi o.fl. kr. 2700 af hverju skjali.
3. Lántökugjald lánastofnunnar, almennt 0.5 - 1.5 % af höfuðstól skuldabréfs, Nánari upplýsingar t.d. á heimasíðum lánastofnanna.
4. Umsýslugjald til fasteignasölu sbr. Kauptilboð
Drenmöl á lóð, lítil grasflöt og skjólgirðing kringum lóðina að mestu.
Nánari lýsing:
Fjögur góð svefnherbergi, fataskápar í þrem þeirra og eitt þeirra er forstofuherbergi, forstofa, sjónvarpshol, baðherbergi og annað gestasalerni, þvottahús með innréttingu. Stofa- borðstofa og eldhús í opnu rými og úr því er útgengt út í garð í gegnum yfirbyggða verönd. Í stofu er arinn frá Funa. Vönduð eldhúsinnrétting með innbyggðum ísskáp, uppþvottavél og hægt er að loka af borðplötu/vinnuborð að hluta. Hægt er að sitja við eldhúseyju á barstólum. Rúmgott baðherbergi, innrétting, spegill með lýsingu og "walk inn" sturta með glervegg. Útgengt er úr baðherbergi út á sólpall. Úr þvottahúsi er innangengt í rúmgóðan bílskúr með Epoxy á gólfi. Í bílskúr eru stórir skápar.
Húsið er kynt með svæðaskiptum gólfhita með stýringum. Innfelld Led-lýsing í loftum sem hönnuð var af Lumex og víða í húsinu er óbein lýsing. Á gólfum er vandað harðparket frá Parka og á votrýmum eru flísar frá Vídd. Hljóðvistardúkar frá ENSO í alrými og sjónvarpsholi. Næturlýsing á sólúri að framanverðu, lagnir fyrir hleðslustöð og fyrir heitan pott.
Virkilega spennandi og nýleg eign á fínum stað.
Bókið skoðun.
Nánari upplýsingar veita Hafsteinn Þorvaldsson viðskiptafræðingur/löggiltur fasteigna,- og skipasali s. 891-8891, hafsteinn@husfasteign.is
"Okkar fagmennska eru þínir hagsmunir"
Gjöld sem kaupandi þarf að standa straum að vegna kaupanna.
1. Stimpilgjöld af kaupsamningi - 0,8 % af heildarfasteignamati. (0,4% fyrstu kaup, 1,6% lögaðilar)
2. Þinglýsingargjald af kaupsamningi, veðskuldabréfi, mögulegu veðleyfi o.fl. kr. 2700 af hverju skjali.
3. Lántökugjald lánastofnunnar, almennt 0.5 - 1.5 % af höfuðstól skuldabréfs, Nánari upplýsingar t.d. á heimasíðum lánastofnanna.
4. Umsýslugjald til fasteignasölu sbr. Kauptilboð
Ár
Fasteignamat
Kaupverð
Stærð
Fermetraverð
9. des. 2021
7.820.000 kr.
71.000.000 kr.
194.3 m²
365.414 kr.
Byggt á upplýsingum úr Þjóðskrá Íslands frá 2006-2025