Upplýsingar
Verðsaga
Byggt 1999
94,3 m²
3 herb.
1 baðherb.
2 svefnh.
Þvottahús
Sameiginl. inngangur
Lyfta
Lýsing
Valborg ehf. kynnir virkilega fallega 3ja herbergja íbúð á þessum eftirsótta stað í Kópavogi. Íbúðin er 93,4 fm íbúð á 5. hæð með yfirbyggðum svölum sem snúa í suður, og eru ekki inni í fermetratölu íbúðar. Sér þvottahús er innan í íbúðar. Beykiparket á öllum gólfum nema votrýmum en þau eru flísalögð. Næg bílastæði eru fyrir utan húsið. Húsið er álklætt að utan og því viðhaldslítið. Tvær lyftur eru í stigaganginum. Helstu hurðir í húsinu eru rafmagnsdrifnar. Bókið skoðun.
Nánari upplýsingar veitir Elvar Guðjónsson viðskfr og lögg. fasteignasali, í síma 8954000, tölvupóstur elvar@valborgfs.is.
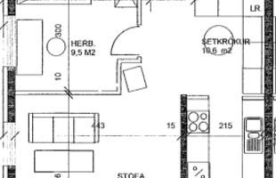
Eignin skiptist eins og hér segir.
Gengið er inn í forstofu með góðum fataskápum.
Hjónaherbergi: Parket á gólfum. Mikið skápapláss.
Aukaherbergi: Skápar. Parket á gólfum.
Stofa og borðstofa: Bjart og rúmgott. Parket á gólfum.
Eldhús: Upprunaleg innrétting, borðkrókur.
Baðherbergi: Ágæt bað innrétting, sturta, flísalagt í hólf og gólf.
Útgengi er út á 12 fm svalir úr borðstofu, svalirnar eru rúmgóðar og snúa í austur og eru að hluta til yfirbyggðar. Settur hefur verið upp ofn þar, þannig að svalirnar nýtast allan ársins hring sem "aukaherbergi".
Þvottahús: Flísar á gólfi og vaskur og gott hillupláss.
Sérgeymsla í kjallara sem er 4,5 fm. Að auki, dekkjaskápar fyrir aukaumgang af dekkjum. Sameiginleg hjóla og vagnageymsla er einnig á 1. hæð.
Sameign er mjög snyrtileg.
Stutt í alla helstu þjónustu á svæðinu, en þannig eru bæði Smáralind og Smáratorg í göngufæri frá íbúðinni.
Næsta árs fasteignamat eru tæpar 76 milljónir.
Nánari upplýsingar veitir Elvar Guðjónsson viðskfr og lögg. fasteignasali, í síma 8954000, tölvupóstur elvar@valborgfs.is.
Eignin Lækjasmári 6 er skráð sem hér segir hjá FMR: Eign 223-5194, birt stærð 94.3 fm.
Forsendur söluyfirlits:
Söluyfirlit er samið af fasteignasala í samræmi við ákvæði laga nr. 70/2015. Þær upplýsingar sem fram koma í söluyfirliti þessu eru sóttar í opinberar skrár, til seljanda sjálfs og eftir atvikum til húsfélags. Seljandi veitir upplýsingar um eign í samræmi við upplýsingaskyldu laga um fasteignakaup nr. 40/2002. Fasteignasali sannreynir að þær upplýsingar séu réttar með sjónskoðun á eigninni. Fasteignasali getur ekki fullyrt um ástand og eiginleika þeirra hluta fasteigna sem ekki eru aðgengilegir og sjást ekki berum augum, t.d. lagnir, dren, skólp og þak.
Um skoðunar- og aðgæsluskyldu:
Í lögum um fasteignakaup nr. 40/2002 er kveðið á um ríka skoðunarskyldu kaupenda á fasteignum. Valborg ehf. fasteignasala bendir væntanlegum kaupendum á að kynna sér vel ástand fasteigna við skoðun og fyrir tilboðsgerð og ef þurfa þykir að leita til sérfræðinga um nánari ástandsskoðun.
Gjöld sem kaupandi þarf að standa straum af vegna kaupanna:
1. Stimpilgjald af kaupsamningi sem er hlutfall af fasteignamati. Stimpilgjald er 0,8% fyrir einstaklinga (0,4% við fyrstu kaup) og 1,6% fyrir lögaðila.
2. Þinglýsingargjald af kaupsamningi, veðskuldabréfum, veðleyfum o.fl. Þinglýsingargjald er kr. 2.700,- fyrir hvert skjal.
3. Lántökugjald lánastofnunar. Um lántökugjald vísast í gjaldskrá viðkomandi lánveitanda.
4. Umsýsluþóknun fasteignasölu skv. gjaldskrá.
5. Ef um nýbyggingu er að ræða greiðir kaupandi skipulagsgjald, 0,3% af brunabótamati, þegar það er lagt á.
Nánari upplýsingar veitir Elvar Guðjónsson viðskfr og lögg. fasteignasali, í síma 8954000, tölvupóstur elvar@valborgfs.is.
Eignin skiptist eins og hér segir.
Gengið er inn í forstofu með góðum fataskápum.
Hjónaherbergi: Parket á gólfum. Mikið skápapláss.
Aukaherbergi: Skápar. Parket á gólfum.
Stofa og borðstofa: Bjart og rúmgott. Parket á gólfum.
Eldhús: Upprunaleg innrétting, borðkrókur.
Baðherbergi: Ágæt bað innrétting, sturta, flísalagt í hólf og gólf.
Útgengi er út á 12 fm svalir úr borðstofu, svalirnar eru rúmgóðar og snúa í austur og eru að hluta til yfirbyggðar. Settur hefur verið upp ofn þar, þannig að svalirnar nýtast allan ársins hring sem "aukaherbergi".
Þvottahús: Flísar á gólfi og vaskur og gott hillupláss.
Sérgeymsla í kjallara sem er 4,5 fm. Að auki, dekkjaskápar fyrir aukaumgang af dekkjum. Sameiginleg hjóla og vagnageymsla er einnig á 1. hæð.
Sameign er mjög snyrtileg.
Stutt í alla helstu þjónustu á svæðinu, en þannig eru bæði Smáralind og Smáratorg í göngufæri frá íbúðinni.
Næsta árs fasteignamat eru tæpar 76 milljónir.
Nánari upplýsingar veitir Elvar Guðjónsson viðskfr og lögg. fasteignasali, í síma 8954000, tölvupóstur elvar@valborgfs.is.
Eignin Lækjasmári 6 er skráð sem hér segir hjá FMR: Eign 223-5194, birt stærð 94.3 fm.
Forsendur söluyfirlits:
Söluyfirlit er samið af fasteignasala í samræmi við ákvæði laga nr. 70/2015. Þær upplýsingar sem fram koma í söluyfirliti þessu eru sóttar í opinberar skrár, til seljanda sjálfs og eftir atvikum til húsfélags. Seljandi veitir upplýsingar um eign í samræmi við upplýsingaskyldu laga um fasteignakaup nr. 40/2002. Fasteignasali sannreynir að þær upplýsingar séu réttar með sjónskoðun á eigninni. Fasteignasali getur ekki fullyrt um ástand og eiginleika þeirra hluta fasteigna sem ekki eru aðgengilegir og sjást ekki berum augum, t.d. lagnir, dren, skólp og þak.
Um skoðunar- og aðgæsluskyldu:
Í lögum um fasteignakaup nr. 40/2002 er kveðið á um ríka skoðunarskyldu kaupenda á fasteignum. Valborg ehf. fasteignasala bendir væntanlegum kaupendum á að kynna sér vel ástand fasteigna við skoðun og fyrir tilboðsgerð og ef þurfa þykir að leita til sérfræðinga um nánari ástandsskoðun.
Gjöld sem kaupandi þarf að standa straum af vegna kaupanna:
1. Stimpilgjald af kaupsamningi sem er hlutfall af fasteignamati. Stimpilgjald er 0,8% fyrir einstaklinga (0,4% við fyrstu kaup) og 1,6% fyrir lögaðila.
2. Þinglýsingargjald af kaupsamningi, veðskuldabréfum, veðleyfum o.fl. Þinglýsingargjald er kr. 2.700,- fyrir hvert skjal.
3. Lántökugjald lánastofnunar. Um lántökugjald vísast í gjaldskrá viðkomandi lánveitanda.
4. Umsýsluþóknun fasteignasölu skv. gjaldskrá.
5. Ef um nýbyggingu er að ræða greiðir kaupandi skipulagsgjald, 0,3% af brunabótamati, þegar það er lagt á.
Ár
Fasteignamat
Kaupverð
Stærð
Fermetraverð
15. jún. 2006
17.090.000 kr.
22.500.000 kr.
94.3 m²
238.600 kr.
Byggt á upplýsingum úr Þjóðskrá Íslands frá 2006-2025