Upplýsingar
Verðsaga
Byggt 2024
95 m²
4 herb.
1 baðherb.
3 svefnh.
Sérinngangur
Lýsing
Hraunhamar fasteignasala kynnir í einkasölu fallega 95 fm fjögurra herbergja íbúð með sérinngangi á 1. hæð í nýju litlu fjölbýli í Stekkjarbergi 11. Einstaklega góð staðsetning á grónum stað í Setbergshverfinu í Hafnarfirði. Stutt í alla helstu þjónustu, skóli, leikskóli og verslun í göngufæri.
Íbúðin afhendist fullbúin með gólfefnum, innbyggðum ísskáp og uppþvottavél.
Íbúðin er skráð 95 fm þar af er 3,3 fm útigeymsla. Mjög gott aðgengi í íbúðina frá bílastæði.
Afhending við kaupsamning.
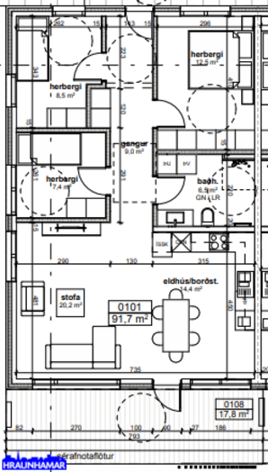
Nánari lýsing skv. teikningu:
Anddyri með flísum á gólfi og fataskáp.
Gangur.
Stofa og eldhús í opnu rými. Vandaðar innréttingar frá HTH og raftæki frá Ormsson. Innbyggður ísskápur og uppþvottavél fylgja. Útgengt á rúmgóða verönd.
Hjónaherbergi með góðum fataskápum.
Tvö svefnherbergi með fataskáp.
Flísalagt baðherbergi, innrétting, upphengt salerni og ,,walk in'' sturta. Innfelld blöndunartæki. Þvottaaðstaða inn á baðherbergi.
Sérgeymsla í sérhúsi á lóð.
Gólfefni eru harðparket og flísar.
Húsið er byggt með forsteyptum einingum frá BM Vallá.
Sameiginleg lóð og bílastæði fyrir. Geymslur eru í sérhúsi á lóð.
Frábær staðsetning á skjólgóðum og fallegum stað í Setbergshverfinu þar sem stutt er í alla helstu þjónustu og stofnbraut.
Allar nánari upplýsingar veita:
Valgerður Ása Gissurardóttir, löggiltur fasteignasali s. 791-7500, vala@hraunhamar.is
Hlynur Halldórsson, löggiltur fasteignasali s. 698-2603, hlynur@hraunhamar.is
Glódís Helgadóttir, löggiltur fasteignasali í s. 659-0510, glodis@hraunhamar.is
Helgi Jón Harðarson, sölustjóri í s. 893-2233, helgi@hraunhamar.is
Einar Örn Ágústsson löggiltur fasteignasali s. 888-7979 einar@hraunhamar.is
Skoðunarskylda:
Í lögum um fasteignakaup nr. 40/2002 er kveðið á um ríka skoðunarskyldu kaupenda á fasteignum. Hraunhamar fasteignasala vill benda væntanlegum kaupendum á að kynna sér vel ástand fasteigna fyrir kauptilboðsgerð og ef þurfa þykir að leita til sérfræðinga fyrir nánari ástandsskoðun.
Gjöld sem kaupandi þarf að standa straum af vegna kaupanna:
1. Stimpilgjald af kaupsamningi, fyrstu kaup (0,4%), almenn kaup (0,8%), lögaðilar (1,6%) af heildarfasteignamati.
2. Þinglýsingargjald af kaupsamningi, veðskuldabréfi, mögulegu veðleyfi o.fl. – 2.700 kr. af hverju skjali.
3. Lántökugjald lánastofnunar er skv. verðskrá viðkomandi lánastofnunar.
4. Umsýslugjald til fasteignasölu skv. þjónustusamningi
Hraunhamar er elsta fasteignasala Hafnarfjarðar, stofnuð 1983.
Hraunhamar, í fararbroddi í rúm 41 ár. – Hraunhamar.is
Smelltu hér til að fá frítt söluverðmat.
Íbúðin afhendist fullbúin með gólfefnum, innbyggðum ísskáp og uppþvottavél.
Íbúðin er skráð 95 fm þar af er 3,3 fm útigeymsla. Mjög gott aðgengi í íbúðina frá bílastæði.
Afhending við kaupsamning.
Nánari lýsing skv. teikningu:
Anddyri með flísum á gólfi og fataskáp.
Gangur.
Stofa og eldhús í opnu rými. Vandaðar innréttingar frá HTH og raftæki frá Ormsson. Innbyggður ísskápur og uppþvottavél fylgja. Útgengt á rúmgóða verönd.
Hjónaherbergi með góðum fataskápum.
Tvö svefnherbergi með fataskáp.
Flísalagt baðherbergi, innrétting, upphengt salerni og ,,walk in'' sturta. Innfelld blöndunartæki. Þvottaaðstaða inn á baðherbergi.
Sérgeymsla í sérhúsi á lóð.
Gólfefni eru harðparket og flísar.
Húsið er byggt með forsteyptum einingum frá BM Vallá.
Sameiginleg lóð og bílastæði fyrir. Geymslur eru í sérhúsi á lóð.
Frábær staðsetning á skjólgóðum og fallegum stað í Setbergshverfinu þar sem stutt er í alla helstu þjónustu og stofnbraut.
Allar nánari upplýsingar veita:
Valgerður Ása Gissurardóttir, löggiltur fasteignasali s. 791-7500, vala@hraunhamar.is
Hlynur Halldórsson, löggiltur fasteignasali s. 698-2603, hlynur@hraunhamar.is
Glódís Helgadóttir, löggiltur fasteignasali í s. 659-0510, glodis@hraunhamar.is
Helgi Jón Harðarson, sölustjóri í s. 893-2233, helgi@hraunhamar.is
Einar Örn Ágústsson löggiltur fasteignasali s. 888-7979 einar@hraunhamar.is
Skoðunarskylda:
Í lögum um fasteignakaup nr. 40/2002 er kveðið á um ríka skoðunarskyldu kaupenda á fasteignum. Hraunhamar fasteignasala vill benda væntanlegum kaupendum á að kynna sér vel ástand fasteigna fyrir kauptilboðsgerð og ef þurfa þykir að leita til sérfræðinga fyrir nánari ástandsskoðun.
Gjöld sem kaupandi þarf að standa straum af vegna kaupanna:
1. Stimpilgjald af kaupsamningi, fyrstu kaup (0,4%), almenn kaup (0,8%), lögaðilar (1,6%) af heildarfasteignamati.
2. Þinglýsingargjald af kaupsamningi, veðskuldabréfi, mögulegu veðleyfi o.fl. – 2.700 kr. af hverju skjali.
3. Lántökugjald lánastofnunar er skv. verðskrá viðkomandi lánastofnunar.
4. Umsýslugjald til fasteignasölu skv. þjónustusamningi
Hraunhamar er elsta fasteignasala Hafnarfjarðar, stofnuð 1983.
Hraunhamar, í fararbroddi í rúm 41 ár. – Hraunhamar.is
Smelltu hér til að fá frítt söluverðmat.
Ár
Fasteignamat
Kaupverð
Stærð
Fermetraverð
5. nóv. 2021
84.950.000 kr.
100.000.000 kr.
221.2 m²
452.080 kr.
Byggt á upplýsingum úr Þjóðskrá Íslands frá 2006-2025