Upplýsingar
Byggt 2002
135,5 m²
4 herb.
1 baðherb.
3 svefnh.
Þvottahús
Sameiginl. inngangur
Bílastæði
Lyfta
Lýsing
Bókið einkaskoðun.
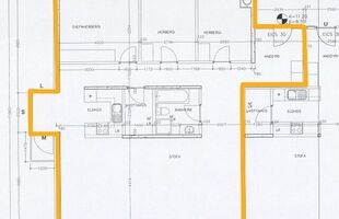
Valhöll fasteignasala kynnir rúmgóða fjögurra herbergja endaíbúð á 2. hæð við Naustabryggju 4 í Reykjavík. Eignin er skráð 135,5 fm á stærð skiptist hún 128,6 fm íbúð og 6,9 fm geymslu í kjallara. Tvennar svalir.
Stæði í bílakjallara fylgir íbúðinni. Búið að leggja grunnrafmagn fyrir rafmagnsbíla í bílakjallaranum. Lyfta er í húsinu sem liggur niðri bílakjallara.
Fasteignamatið fyrir árið 2026 er 92.150.000 kr.
Þetta er stór og góð íbúð á góðu verði sem er vert að skoða.
Nánari upplýsingar veitir:
Snorri Björn Sturluson löggiltur fasteignasali / lögfræðingur í síma 699-4407 eða snorribs@valholl.is
Nánari lýsing:
Forstofa: með fataskáp og flísum á gólfi.
Svefnherbergi I: rúmgott með fataskápum og plastparketi á gólfi.
Svefnherbergi II: herbergi með fataskáp og plastparketi á gólfi.
Svefnherbergi III: herbergi með fataskáp og plastparketi á gólfi.
Eldhús: með eikarinnréttingu, aðstöðu fyrir uppþvottavél, borðkrók, flísum á gólfi og útgengi á svalir.
Stofa / borðstofa: rúmgóðar í opnu alrými með parketi á gólfi og útgengi á svalir.
Baðherbergi: með innréttingu, baðkari, sturtuklega og flísum á gólfi og veggjum.
Þvottaherbergi: er innan íbúðar með innréttingu fyrir þvottavél og þurrkara og flísum á gólfi.
Geymsla: 6,9 fm sérgeymsla í kjallara.
Bílastæði: sérstæði í bílakjallara. Mögulegt að kaupa / leigja hleðslustöð og vera með rafmagnsbíl.
Hjóla- og vagnageymsla: Sameiginleg í kjallara.
Nánari upplýsingar veitir:
Snorri Björn Sturluson löggiltur fasteignasali / lögfræðingur í síma 699-4407 eða snorribs@valholl.is
Um skoðunar- og aðgæsluskyldu:
Í lögum um fasteignakaup nr. 40/2002 er kveðið á um ríka skoðunarskyldu kaupenda á fasteignum. Valhöll fasteignasala bendir væntanlegum kaupendum á að kynna sér vel ástand fasteigna við skoðun og fyrir tilboðsgerð og ef þurfa þykir að leita til sérfræðinga um nánari ástandsskoðun. Forsendur söluyfirlits: Söluyfirlit er samið af fasteignasala í samræmi við ákvæði laga nr. 70/2015. Þær upplýsingar sem fram koma í söluyfirliti þessu eru sóttar í opinberar skrár, til seljanda sjálfs og eftir atvikum til húsfélags. Seljandi veitir upplýsingar um eign í samræmi við upplýsingaskyldu laga um fasteignakaup nr. 40/2002, og ábyrgist að þær séu réttar. Fasteignasali sannreynir að þær upplýsingar séu réttar með sjónskoðun á eigninni. Fasteignasali getur ekki fullyrt um ástand og eiginleika þeirra hluta fasteigna sem ekki eru aðgengilegir og sjást ekki berum augum, t.d. lagnir, dren, skólp og þak. Það sama á við um staðhæfingar seljanda eignar um viðhald og einstaka framkvæmdir.
Gjöld sem kaupandi þarf að standa straum af vegna kaupanna:
Stimpilgjald af kaupsamningi sem er hlutfall af fasteignamati. Stimpilgjald er 0,8% fyrir einstaklinga (0,4% við fyrstu kaup) og 1,6% fyrir lögaðila.
Þinglýsingargjald af kaupsamningi, veðskuldabréfum, veðleyfum o.fl. Þinglýsingargjald er kr. 2.700,- fyrir hvert skjal.
Lántökugjald lánastofnunar. Um lántökugjald vísast í gjaldskrá viðkomandi lánveitanda.
Umsýsluþóknun fasteignasölu skv. gjaldskrá.
Ef um nýbyggingu er að ræða greiðir kaupandi skipulagsgjald, 0,3% af brunabótamáti, þegar það er lagt á.
Valhöll fasteignasala kynnir rúmgóða fjögurra herbergja endaíbúð á 2. hæð við Naustabryggju 4 í Reykjavík. Eignin er skráð 135,5 fm á stærð skiptist hún 128,6 fm íbúð og 6,9 fm geymslu í kjallara. Tvennar svalir.
Stæði í bílakjallara fylgir íbúðinni. Búið að leggja grunnrafmagn fyrir rafmagnsbíla í bílakjallaranum. Lyfta er í húsinu sem liggur niðri bílakjallara.
Fasteignamatið fyrir árið 2026 er 92.150.000 kr.
Þetta er stór og góð íbúð á góðu verði sem er vert að skoða.
Nánari upplýsingar veitir:
Snorri Björn Sturluson löggiltur fasteignasali / lögfræðingur í síma 699-4407 eða snorribs@valholl.is
Nánari lýsing:
Forstofa: með fataskáp og flísum á gólfi.
Svefnherbergi I: rúmgott með fataskápum og plastparketi á gólfi.
Svefnherbergi II: herbergi með fataskáp og plastparketi á gólfi.
Svefnherbergi III: herbergi með fataskáp og plastparketi á gólfi.
Eldhús: með eikarinnréttingu, aðstöðu fyrir uppþvottavél, borðkrók, flísum á gólfi og útgengi á svalir.
Stofa / borðstofa: rúmgóðar í opnu alrými með parketi á gólfi og útgengi á svalir.
Baðherbergi: með innréttingu, baðkari, sturtuklega og flísum á gólfi og veggjum.
Þvottaherbergi: er innan íbúðar með innréttingu fyrir þvottavél og þurrkara og flísum á gólfi.
Geymsla: 6,9 fm sérgeymsla í kjallara.
Bílastæði: sérstæði í bílakjallara. Mögulegt að kaupa / leigja hleðslustöð og vera með rafmagnsbíl.
Hjóla- og vagnageymsla: Sameiginleg í kjallara.
Nánari upplýsingar veitir:
Snorri Björn Sturluson löggiltur fasteignasali / lögfræðingur í síma 699-4407 eða snorribs@valholl.is
Um skoðunar- og aðgæsluskyldu:
Í lögum um fasteignakaup nr. 40/2002 er kveðið á um ríka skoðunarskyldu kaupenda á fasteignum. Valhöll fasteignasala bendir væntanlegum kaupendum á að kynna sér vel ástand fasteigna við skoðun og fyrir tilboðsgerð og ef þurfa þykir að leita til sérfræðinga um nánari ástandsskoðun. Forsendur söluyfirlits: Söluyfirlit er samið af fasteignasala í samræmi við ákvæði laga nr. 70/2015. Þær upplýsingar sem fram koma í söluyfirliti þessu eru sóttar í opinberar skrár, til seljanda sjálfs og eftir atvikum til húsfélags. Seljandi veitir upplýsingar um eign í samræmi við upplýsingaskyldu laga um fasteignakaup nr. 40/2002, og ábyrgist að þær séu réttar. Fasteignasali sannreynir að þær upplýsingar séu réttar með sjónskoðun á eigninni. Fasteignasali getur ekki fullyrt um ástand og eiginleika þeirra hluta fasteigna sem ekki eru aðgengilegir og sjást ekki berum augum, t.d. lagnir, dren, skólp og þak. Það sama á við um staðhæfingar seljanda eignar um viðhald og einstaka framkvæmdir.
Gjöld sem kaupandi þarf að standa straum af vegna kaupanna:
Stimpilgjald af kaupsamningi sem er hlutfall af fasteignamati. Stimpilgjald er 0,8% fyrir einstaklinga (0,4% við fyrstu kaup) og 1,6% fyrir lögaðila.
Þinglýsingargjald af kaupsamningi, veðskuldabréfum, veðleyfum o.fl. Þinglýsingargjald er kr. 2.700,- fyrir hvert skjal.
Lántökugjald lánastofnunar. Um lántökugjald vísast í gjaldskrá viðkomandi lánveitanda.
Umsýsluþóknun fasteignasölu skv. gjaldskrá.
Ef um nýbyggingu er að ræða greiðir kaupandi skipulagsgjald, 0,3% af brunabótamáti, þegar það er lagt á.