Löggiltir fasteignasalar innan Félags fasteignasala:
Sigurður Samúelsson
Andri Sigurðsson
Sveinn Eyland
Ingibjörg Agnes Jónsdóttir
Guðrún Diljá Lúðvíksdóttir
Monika Hjálmtýsdóttir
Júlíus Jóhannsson
Freyja Rúnarsdóttir
Jón Óskar Karlsson
Davíð Matthíasson
Vista
fjölbýlishús

Engihjalli 9

200 Kópavogur

58.500.000 kr.

749.040 þ.kr./m2
Fasteignanúmer

F2059926

Fasteignamat

48.350.000 kr.

Brunabótamat

41.450.000 kr.

Áhvílandi

0 kr.

Arion banki – Reikna lán
Upplýsingar
Verðsaga
svg
Byggt 1978
svg
78,1 m²
svg
3 herb.
svg
1 baðherb.
svg
2 svefnh.
svg
Sameiginl. inngangur
svg
Hjólastólaaðgengi
svg
Lyfta

Lýsing

LANDMARK fasteignamiðlun og Sveinn Eyland, lögg. fasteignasali s: 6900 820 / sveinn@landmark.is kynna:
Um er ræða bjarta og rúmgóða 2ja herbergja 78.1 fm íbúð á fyrstu hæð við Engihjalli 9, 200 Kópavogi.
Tvennar svalir með íbúð og nokkuð gott rými er framan við íbúð. Tvær lyftur eru í húseign sem að hefur fengið gott viðhald s.l. ár.
Búið er að stúka af hluta af stofu undir herbergi þannig að það eru tvö svefnherbergi í íbúð í dag.
EIGNIN GETUR VERIÐ LAUS TIL AFHENDINGAR NOKKUÐ FLJÓTT.


Nánari upplýsingar um eign og bókun á skoðunartíma:
Sveinn Eyland lögg.fasteignasali s. 6900 820 eða sveinn@landmark.is

FÁÐU SENT SÖLUYFIRLIT YFIR EIGN STRAX HÉR.

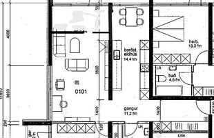
Eignin skiptist í:
Forstofu/hol, gang, stofu, eldhús, svefnherbergi, baðherbergi, sérgeymslu í kjallara, búið er að stúka af hluta stofu fyrir ágætis herbergi.
Sameiginlegt þvottaherbergi á hæðinni ásamt hjólageymslu.

Nánari lýsing á eign:
Rúmgóð forstofa/hol með fataskápum.
Gangur þaðan sem að gengið er í önnur rými íbúðar.
Eldhús með hvítri nýlegri innréttingu og er gott skápapláss í innréttingu, borðkrókur og gert er ráð fyrir uppþvottavél í innréttingu.
Stofan er rúmgóð og búið er að stúka af hluta af stofu fyrir herbergi og eru fataskápar í því rými með útgangi út á rúmgóðar vestur-svalir.
Aðal svefnherbergi er mjög rúmgott með fataskáp og útgengt á suður-svalir úr herbergi.
Baðherbergi nýlega tekið í gegn, hvít innrétting undir vask, vegghengt salerni, handklæðaofn, sturtuklefi, flísar á veggjum og gólfi.
Sér geymsla í kjallara sem að ekki er skráð í fermetratölu íbúðar.
Sameiginlegt þvottahús fyrir íbúðirnar á hæðinni er rétt við íbúðina ásamt sameiginlegri hjólageymslu.
Gólfefni: Harðparket og flísar á gólfum íbúðar.

Birt stærð íbúðar er  78.1 fm.

-Vegna mikillar sölu undanfarið þá vantar mig allar tegundir eigna á skrá.
-Hafðu samband og ég kem og met eignina þína þér að kostnaðarlausu.
-Sveinn Eyland lögg.fasteignasali s: 6900.820 eða sveinn@landmark.is

Skoðunar- og aðgæsluskylda:
Lög um fasteignakaup nr. 40/2002 kveða á um að kaupendur þurfi að skoða fasteignir vel áður en tilboð er gert. LANDMARK fasteignamiðlun ráðleggur kaupendum að skoða ástand eignar og leita sér aðstoðar sérfræðinga ef þörf er á nánari skoðun.

Söluyfirlit:
Söluyfirlit er gert af fasteignasala samkvæmt lögum nr. 70/2015. Upplýsingar í yfirlitinu eru fengnar úr opinberum skrám, frá seljanda og ef þarf frá húsfélagi. Fasteignasali sannreynir upplýsingar með skoðun á eigninni en getur ekki sannreynt ástand þess sem ekki er aðgengilegt eða sýnilegt, t.d. lagnir, dren, skólp og þak.

Gjöld sem kaupandi þarf að greiða:
1. Stimpilgjald: 0,8% af fasteignamati (0,4% fyrir fyrstu kaup) og 1,6% fyrir lögaðila.
2. Þinglýsingargjald: 2.700 kr. fyrir hvert skjal.
3. Lántökugjald: Fer eftir gjaldskrá lánveitanda.
3. Þjónustusýslugjald: 79.000 kr. m/vsk.
3. Skipulagsgjald: Ef um nýbyggingu er að ræða, 0,3% af brunabótamáti þegar það er lagt á.

Heimasíða LANDMARK
Pantaðu frítt söluverðmat

img
Sveinn Eyland
Lögg.fasteignasali innan félags fasteignasala
LANDMARK fasteignamiðlun
Hlíðasmári 2, 201 Kópavogur
LANDMARK fasteignamiðlun

LANDMARK fasteignamiðlun

Hlíðasmári 2, 201 Kópavogur
phone
img

Sveinn Eyland

Hlíðasmári 2, 201 Kópavogur
Ár
Fasteignamat
Kaupverð
Stærð
Fermetraverð
26. júl. 2018
25.950.000 kr.
30.500.000 kr.
78.1 m²
390.525 kr.
30. des. 2015
22.300.000 kr.
21.800.000 kr.
78.1 m²
279.129 kr.
9. feb. 2011
15.050.000 kr.
11.800.000 kr.
78.1 m²
151.088 kr.
Byggt á upplýsingum úr Þjóðskrá Íslands frá 2006-2025
LANDMARK fasteignamiðlun

LANDMARK fasteignamiðlun

Hlíðasmári 2, 201 Kópavogur
phone

Sveinn Eyland

Hlíðasmári 2, 201 Kópavogur