Löggiltir fasteignasalar innan Félags fasteignasala:
Daníel Rúnar Elíasson
Vista
svg

95

svg

93  Skoðendur

svg

Skráð  26. des. 2025

fjölbýlishús

Beykiskógar 19 íbúð 203

300 Akranes

60.500.000 kr.

779.639 þ.kr./m2
Fasteignanúmer

F2519898

Fasteignamat

54.250.000 kr.

Brunabótamat

50.300.000 kr.

Áhvílandi

0 kr.

Arion banki – Reikna lán
Upplýsingar
svg
Byggt 2023
svg
77,6 m²
svg
3 herb.
svg
1 baðherb.
svg
2 svefnh.
svg
Þvottahús
svg
Sameiginl. inngangur
svg
Lyfta

Lýsing

HÁKOT fasteignasala og Daníel Rúnar Elíasson löggiltur fasteignasali sími: 431-4045 / 899-4045 auglýsa:

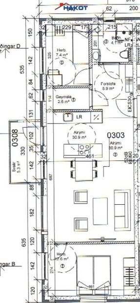
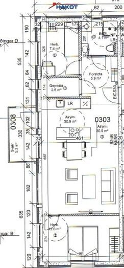
*** BEYKISKÓGAR 19  -  ÍBÚÐ 203 *** 3ja herbergja íbúð á þriðju hæð (75.5 m²) í 11 íbúða lyftublokk
ásamt geymslu á jarðhæð (2.1 m²) = 75.5 m². Svalir í norður. Íbúðin afhendist fullbúin án gólfefna á alrými og herbergi.


Beykiskógar 19 er 4 hæða hús með 11 íbúðum, sbr. teikningar arkitekta. Í byggingunni eru stigagangar og lyfta. Svalir fylgja íbúðum á 2 til 4. hæð.
Séreignargarður fylgir íbúðum á 1. hæð sem heimilt er að stúka af með girðingu í samræmi við teikningu arkitekta.
Geymslur á jarðhæð fylgja 11 íbúðum. Húsið er staðsteypt einangrað og klætt að utan.

Hönnuður: KJ hönnun  //  Verktaki: Ármann Sigurvinsson


Forstofa (án gólfefna, skápur/fatahengi).
Herbergi (án gólfefna, skápur)
Baðherbergi (flísar, flísar á veggjum, sturta í gólf, innrétting, upphengt wc, gluggi).
Hol (án gólfefna).
Eldhús (án góflefna, innrétting, eyja, ofn, helluborð, innbyggður ísskápur/frystir og uppþvottavél, helluborð, vifta, opið að stofu).
Stofa (án gólfefna, opið að eldhúsi, útgangur út á norður Svalir.
Svefnherbergi (án gólfefna, fataskápur). 

Sérgeymsla (5.6 m²) á jarðhæð

Sameiginleg hjóla- og vagnageymsla í jarðhæð.

Annað:  Lyfta. Íbúðin afhendist fullbúin með gólfefnum ásamt eldhústækjum (Ísskáp/frystir, uppþvottavél, ofn, helluborð og vifta).

Kaupandi greiðir skipulagsgjald 0,3% af brunabótamáti þegar það verður lagt á íbúðina.
Eignin afhendist skv skilalýsingu.

BÓKIÐ SKOÐUN HJÁ: Daníel Rúnar Elíasson, löggiltur fasteignasali, s: 899-4045 - hakot@hakot.is
 

************
Um skoðunar- og aðgæsluskyldu:
Í lögum um fasteignakaup nr. 40/2002 er kveðið á um ríka skoðunarskyldu kaupenda á fasteignum. Fasteignasalan Hákot bendir væntanlegum kaupendum á að kynna sér vel ástand fasteigna við skoðun og fyrir tilboðsgerð og ef þurfa þykir að leita til sérfræðinga um nánari ástandsskoðun.

Forsendur söluyfirlits: 
Söluyfirlit er samið af fasteignasala í samræmi við ákvæði laga nr. 70/2015. Þær upplýsingar sem fram koma í söluyfirliti þessu eru sóttar í opinberar skrár, til seljanda sjálfs og eftir atvikum til húsfélags. Seljandi veitir upplýsingar um eign í samræmi við upplýsingaskyldu laga um fasteignakaup nr. 40/2002. Fasteignasali metur eignina með sjónskoðun.
Fasteignasali getur ekki fullyrt um ástand og eiginleika þeirra hluta fasteigna sem ekki eru aðgengilegir og sjást ekki berum augum, t.d. lagnir, dren, skólp og þak.

Gjöld sem kaupandi þarf að standa straum af vegna kaupanna:  
1. Stimpilgjald af kaupsamningi - 0.8% af heildar fasteignamati / 1.6% fyrir lögaðila, (0.4% við fyrstu kaup einstaklinga).
2. Þinglýsingagjald af kaupsamningi, afsali, veðskuldabréfi, umboði, veðleyfi o.fl.- kr. 2.700 af hverju skjali.
3. Umsýslugjald kr. 49.600 (m/vsk).
4. Lántökugjald veðskuldabréfa samkvæmt gjaldskrá lánveitenda.
5. Ef um nýbyggingu er að ræða greiðir kaupandi skipulagsgjald, 0,3% af brunabótamáti, þegar það er lagt á

Fasteignasalan Hákot

Fasteignasalan Hákot

Kirkjubraut 12 (jarðhæð)300 Akranesi
phone
Fasteignasalan Hákot

Fasteignasalan Hákot

Kirkjubraut 12 (jarðhæð)300 Akranesi
phone