Upplýsingar
Verðsaga
Byggt 2020
80,2 m²
3 herb.
1 baðherb.
2 svefnh.
Sameiginl. inngangur
Bílastæði
Lyfta
Lýsing
Eignaver 460-6060
Kjarnagata 51 íbúð 303.
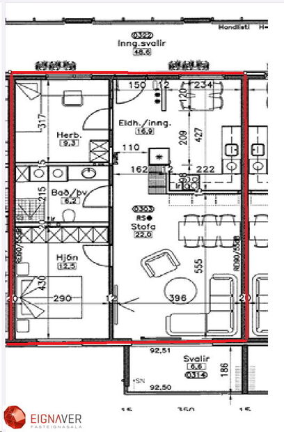
Nýleg, falleg og björt 3ja herbergja íbúð á 3ju hæð í fjölbýli með lyftu. Íbúðin er samtals 80,2 fm. auk þess fylgir með stæði í bílakjallara.
Nánari lýsing:
Forstofa, parket á gólfi.
Hol/gangur, parket á gólfi og þar er góður fataskápur og fataslá.
Svefnherbergin eru tvö, parket á gólfum herbergja og fataskápur í þeim báðum.
Eldhúsið er með fallegri ljósri innréttingu, flísar á milli skápa og parket á gólfi.
Baðherbergið er með flísum á gólfi og við hornsturtu, mjög góð innrétting þar sem gert er ráð fyrir þvottavél og þurrkara í vinnuhæð, upphengt WC.
Stofan er björt og fín, parket á gólfi og frá stofu er farið út á svalir til austur og þær eru með svalalokun. Timburborð á svalagólfi.
Annað:
- Sérgeymsla í sameign í kjallara.
- Stæði í bílakjallara fylgir þessari íbúð.
- Mjög skemmtileg íbúð þar sem eldhúsið er sér.
- Flott útsýni er úr íbúð.
Arnar s;898-7011 /arnar@eignaver.is
Begga s;845-0671 /begga@eignaver.is
Tryggvi s;862-7919 /tryggvi@eignaver.is
Kjarnagata 51 íbúð 303.
Nýleg, falleg og björt 3ja herbergja íbúð á 3ju hæð í fjölbýli með lyftu. Íbúðin er samtals 80,2 fm. auk þess fylgir með stæði í bílakjallara.
Nánari lýsing:
Forstofa, parket á gólfi.
Hol/gangur, parket á gólfi og þar er góður fataskápur og fataslá.
Svefnherbergin eru tvö, parket á gólfum herbergja og fataskápur í þeim báðum.
Eldhúsið er með fallegri ljósri innréttingu, flísar á milli skápa og parket á gólfi.
Baðherbergið er með flísum á gólfi og við hornsturtu, mjög góð innrétting þar sem gert er ráð fyrir þvottavél og þurrkara í vinnuhæð, upphengt WC.
Stofan er björt og fín, parket á gólfi og frá stofu er farið út á svalir til austur og þær eru með svalalokun. Timburborð á svalagólfi.
Annað:
- Sérgeymsla í sameign í kjallara.
- Stæði í bílakjallara fylgir þessari íbúð.
- Mjög skemmtileg íbúð þar sem eldhúsið er sér.
- Flott útsýni er úr íbúð.
Arnar s;898-7011 /arnar@eignaver.is
Begga s;845-0671 /begga@eignaver.is
Tryggvi s;862-7919 /tryggvi@eignaver.is
Ár
Fasteignamat
Kaupverð
Stærð
Fermetraverð
13. ágú. 2025
55.400.000 kr.
8.000.000 kr.
40303 m²
198 kr.
15. maí. 2020
2.860.000 kr.
36.950.000 kr.
80.2 m²
460.723 kr.
Byggt á upplýsingum úr Þjóðskrá Íslands frá 2006-2026