Upplýsingar
Verðsaga
Byggt 2025
160,1 m²
4 herb.
2 baðherb.
3 svefnh.
Þvottahús
Bílskúr
Lýsing
Kasa fasteignir 461-2010.
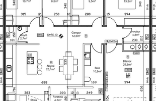
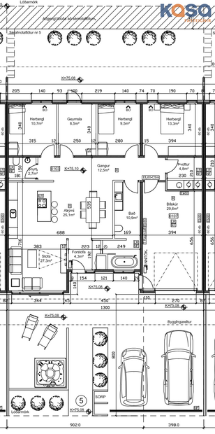
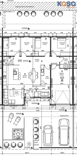
Steindórshagi 5. Nýbygging 4-5 herbergja raðhúsaíbúð með bílskúr samtals 160.1 fm. Íbúðarhlutinn er 130.5 fm. og bílskúr 29.6 fm.
Húsið er staðsteypt, einangrað að utan og múrað.
*** Bókið skoðun á kasa@kasafasteignir.is ***
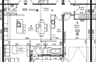
Húsið skiptist í. Forstofu, hol, stofu og eldhús í opnu rými, baðherbergi, gestasalerni, þrjú svefnherbergi, geymsla með skáp, þvottahús og bílskúr.
Forstofa: Þar eru flísar á gólfum og forstofuskápur.
Hol: Þar er parket á gólfum.
Stofa: Bjart rými með parketi á gólfum, gólfsíðir gluggar og rennihurð út á suðurverönd.
Eldhús: er í opnu rými með stofu þar er parket á gólfum. Innrétting og eyja og keramik helluborð í eyju. Ísskápur og uppþvottavél fylgja með í kaupum.
Baðherbergi: Flísar á gólfum og hluta veggja, upphengt salerni, sturta og baðkar.
Svefnherbergi: Eru þrjú öll með skápum, parket er á gólfum.
Geymsla: Er með skáp og parketi á gólfum og getur nýst sem svefnherbergi.
Gestasalerni: Þar eru flísar á gólfum upphengt salerni og handlaug.
Þvottahús: Þar eru flísar á gólfum og rúmgóð innrétting með plássi fyrir þvóttavél og þurrkara. vaskur er í þvottahúsi.
Bílskúr: Þar er rafdrifinn bílskúrshurð og gönguhurð. Góllf er lakkað með epoxy.
- Íbúðinni verður skilað fullkláraðri.
- Hiti í gólfum.
- Hiti í bílastæði og hluta verandar.
- Steypt stétt baka til.
- Innbyggð lýsing.
- Lofskiptikerfi.
- Lagt hefur verið fyrir pottalögnum báðu megin við húsið.
Kaupandi greiðir skipulagsgjald sem verður lagt á við endanlegt brunabótamat.
Nánari upplýsingar í síma 461-2010 eða kasa@kasafasteignir.is
------------
Skoðunarskylda:
Í lögum um fasteignakaup nr. 40/2002 er kveðið á um ríka skoðunarskyldu kaupenda á fasteignum. Kasa fasteignir benda væntanlegum kaupendum á að kynna sér vel ástand fasteigna fyrir kauptilboðsgerð og leita til þar til bærra sérfræðinga um nánari skoðun ef þurfa þykir.
Forsendur söluyfirlits:
Söluyfirlit er samið af fasteignasala í samræmi við ákvæði laga nr. 70/2015. Þær upplýsingar sem fram koma í söluyfirliti þessu eru sóttar í opinberar skrár, til seljanda sjálfs og eftir atvikum til húsfélags. Seljandi veitir upplýsingar um eign í samræmi við upplýsingaskyldu laga um fasteignakaup nr. 40/2002. Fasteignasali sannreynir að þær upplýsingar séu réttar með sjónskoðun á eigninni. Fasteignasali getur ekki fullyrt um ástand og eiginleika þeirra hluta fasteigna sem ekki eru aðgengilegir og sjást ekki berum augum, t.d. lagnir, dren, skólp og þak.
Gjöld sem kaupandi þarf að standa straum af vegna kaupanna:
1. Stimpilgjald sýslumanns af kaupsamningi, fyrstu kaup (0,4%), almenn kaup (0,8%), lögaðilar (1,6%) af heildarfasteignamati eignar.
2. Þinglýsingargjald af kaupsamningi, veðskuldabréfi, mögulegu veðleyfi o.fl. - kr. 2.700 af hverju skjali.
3. Lántökugjald lánastofnunar er skv. verðskrá viðkomandi lánastofnunar. Nánari upplýsingar á t.d. heimasíðu lánastofnana.
4. Umsýslugjald til fasteignasölu skv. kauptilboði.
Steindórshagi 5. Nýbygging 4-5 herbergja raðhúsaíbúð með bílskúr samtals 160.1 fm. Íbúðarhlutinn er 130.5 fm. og bílskúr 29.6 fm.
Húsið er staðsteypt, einangrað að utan og múrað.
*** Bókið skoðun á kasa@kasafasteignir.is ***
Húsið skiptist í. Forstofu, hol, stofu og eldhús í opnu rými, baðherbergi, gestasalerni, þrjú svefnherbergi, geymsla með skáp, þvottahús og bílskúr.
Forstofa: Þar eru flísar á gólfum og forstofuskápur.
Hol: Þar er parket á gólfum.
Stofa: Bjart rými með parketi á gólfum, gólfsíðir gluggar og rennihurð út á suðurverönd.
Eldhús: er í opnu rými með stofu þar er parket á gólfum. Innrétting og eyja og keramik helluborð í eyju. Ísskápur og uppþvottavél fylgja með í kaupum.
Baðherbergi: Flísar á gólfum og hluta veggja, upphengt salerni, sturta og baðkar.
Svefnherbergi: Eru þrjú öll með skápum, parket er á gólfum.
Geymsla: Er með skáp og parketi á gólfum og getur nýst sem svefnherbergi.
Gestasalerni: Þar eru flísar á gólfum upphengt salerni og handlaug.
Þvottahús: Þar eru flísar á gólfum og rúmgóð innrétting með plássi fyrir þvóttavél og þurrkara. vaskur er í þvottahúsi.
Bílskúr: Þar er rafdrifinn bílskúrshurð og gönguhurð. Góllf er lakkað með epoxy.
- Íbúðinni verður skilað fullkláraðri.
- Hiti í gólfum.
- Hiti í bílastæði og hluta verandar.
- Steypt stétt baka til.
- Innbyggð lýsing.
- Lofskiptikerfi.
- Lagt hefur verið fyrir pottalögnum báðu megin við húsið.
Kaupandi greiðir skipulagsgjald sem verður lagt á við endanlegt brunabótamat.
Nánari upplýsingar í síma 461-2010 eða kasa@kasafasteignir.is
------------
Skoðunarskylda:
Í lögum um fasteignakaup nr. 40/2002 er kveðið á um ríka skoðunarskyldu kaupenda á fasteignum. Kasa fasteignir benda væntanlegum kaupendum á að kynna sér vel ástand fasteigna fyrir kauptilboðsgerð og leita til þar til bærra sérfræðinga um nánari skoðun ef þurfa þykir.
Forsendur söluyfirlits:
Söluyfirlit er samið af fasteignasala í samræmi við ákvæði laga nr. 70/2015. Þær upplýsingar sem fram koma í söluyfirliti þessu eru sóttar í opinberar skrár, til seljanda sjálfs og eftir atvikum til húsfélags. Seljandi veitir upplýsingar um eign í samræmi við upplýsingaskyldu laga um fasteignakaup nr. 40/2002. Fasteignasali sannreynir að þær upplýsingar séu réttar með sjónskoðun á eigninni. Fasteignasali getur ekki fullyrt um ástand og eiginleika þeirra hluta fasteigna sem ekki eru aðgengilegir og sjást ekki berum augum, t.d. lagnir, dren, skólp og þak.
Gjöld sem kaupandi þarf að standa straum af vegna kaupanna:
1. Stimpilgjald sýslumanns af kaupsamningi, fyrstu kaup (0,4%), almenn kaup (0,8%), lögaðilar (1,6%) af heildarfasteignamati eignar.
2. Þinglýsingargjald af kaupsamningi, veðskuldabréfi, mögulegu veðleyfi o.fl. - kr. 2.700 af hverju skjali.
3. Lántökugjald lánastofnunar er skv. verðskrá viðkomandi lánastofnunar. Nánari upplýsingar á t.d. heimasíðu lánastofnana.
4. Umsýslugjald til fasteignasölu skv. kauptilboði.
Ár
Fasteignamat
Kaupverð
Stærð
Fermetraverð
27. mar. 2024
11.950.000 kr.
104.900.000 kr.
160.1 m²
655.215 kr.
Byggt á upplýsingum úr Þjóðskrá Íslands frá 2006-2026