Upplýsingar
Verðsaga
Byggt 1947
39,4 m²
2 herb.
1 baðherb.
1 svefnh.
Sameiginl. inngangur
Lyfta
Lýsing
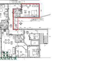
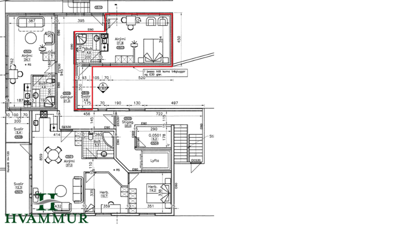
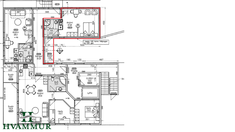
Hafnarstræti 81 íbúð 503 - Vel skipulögð og björt 2ja herbergja íbúð í fjölbýlishúsi með lyftu - Stærð 39,4 m².
Skemmtilega staðsett íbúð í húsinu Hafnarstræti 81, íbúðin er með afar gott aðgengi því hægt er að ganga að henni að ofanverðu.
Þá er útsýni á Akureyrarkirkju og eru Sigurhæðir í sjónlínu einnig.
Mjög góð útleigueining.
Eignin skiptist með eftirfarandi hætti:
Forstofa, eldhús/stofa, svefnherbergi, baðherbergi og geymsla í sameign.
Forstofa er með góðum skáp, hún er í opnu rými með eldhúsi og stofu. Plastparket á gólfi.
Eldhús/stofa eru í opnu björtu rými, með ljósri innréttingu, flísum milli skápa, eldavél með helluborði og stæði fyrir litlum ísskáp eða uppþvottavél. Plastparket er á gólfi.
Svefnherbergi er í hálfopnu rými með stofu, en þar er plastparket á gólfi.
Baðherbergi er með ljósri innréttingu, upphengdu wc, sturtuklefa, handklæðaofni og tengi fyrir þvottavél. Útgengt er úr baðherbergi á litlar svalir sem snúa inní portið.
Sér geymsla er í sameign.
Annað:
- Eignin er afar björt með stórum gluggum til vesturs.
- Tilvalin íbúð til útleigu.
- Aðgengi að íbúðinni er á tvenna vegu, annars vegar frá Hafnarstræti en einnig er hægt að ganga að íbúðinni að ofanverðu.
Um skoðunar- og aðgæsluskyldu:
Í lögum um fasteignakaup nr. 40/2002 er kveðið á um ríka skoðunarskyldu kaupenda á fasteignum. Fasteignasalan Hvammur skorar því á væntanlega kaupendur að kynna sér vel ástand fasteigna fyrir kauptilboðsgerð og leita til þar til bærra sérfræðinga um nánari skoðun ef með þarf.
Forsendur söluyfirlits:
Söluyfirlit er samið af fasteignasala í samræmi við ákvæði laga nr. 70/2015. Þær upplýsingar sem fram koma í söluyfirliti þessu eru sóttar í opinberar skrár, til seljanda sjálfs og eftir atvikum til húsfélags. Seljandi veitir upplýsingar um eign í samræmi við upplýsingaskyldu laga um fasteignakaup nr. 40/2002. Fasteignasali sannreynir að þær upplýsingar séu réttar með sjónskoðun á eigninni.
Fasteignasali getur ekki fullyrt um ástand og eiginleika þeirra hluta fasteigna sem ekki eru aðgengilegir og sjást ekki berum augum, t.d. lagnir, dren, skólp og þak.
Skemmtilega staðsett íbúð í húsinu Hafnarstræti 81, íbúðin er með afar gott aðgengi því hægt er að ganga að henni að ofanverðu.
Þá er útsýni á Akureyrarkirkju og eru Sigurhæðir í sjónlínu einnig.
Mjög góð útleigueining.
Eignin skiptist með eftirfarandi hætti:
Forstofa, eldhús/stofa, svefnherbergi, baðherbergi og geymsla í sameign.
Forstofa er með góðum skáp, hún er í opnu rými með eldhúsi og stofu. Plastparket á gólfi.
Eldhús/stofa eru í opnu björtu rými, með ljósri innréttingu, flísum milli skápa, eldavél með helluborði og stæði fyrir litlum ísskáp eða uppþvottavél. Plastparket er á gólfi.
Svefnherbergi er í hálfopnu rými með stofu, en þar er plastparket á gólfi.
Baðherbergi er með ljósri innréttingu, upphengdu wc, sturtuklefa, handklæðaofni og tengi fyrir þvottavél. Útgengt er úr baðherbergi á litlar svalir sem snúa inní portið.
Sér geymsla er í sameign.
Annað:
- Eignin er afar björt með stórum gluggum til vesturs.
- Tilvalin íbúð til útleigu.
- Aðgengi að íbúðinni er á tvenna vegu, annars vegar frá Hafnarstræti en einnig er hægt að ganga að íbúðinni að ofanverðu.
Um skoðunar- og aðgæsluskyldu:
Í lögum um fasteignakaup nr. 40/2002 er kveðið á um ríka skoðunarskyldu kaupenda á fasteignum. Fasteignasalan Hvammur skorar því á væntanlega kaupendur að kynna sér vel ástand fasteigna fyrir kauptilboðsgerð og leita til þar til bærra sérfræðinga um nánari skoðun ef með þarf.
Forsendur söluyfirlits:
Söluyfirlit er samið af fasteignasala í samræmi við ákvæði laga nr. 70/2015. Þær upplýsingar sem fram koma í söluyfirliti þessu eru sóttar í opinberar skrár, til seljanda sjálfs og eftir atvikum til húsfélags. Seljandi veitir upplýsingar um eign í samræmi við upplýsingaskyldu laga um fasteignakaup nr. 40/2002. Fasteignasali sannreynir að þær upplýsingar séu réttar með sjónskoðun á eigninni.
Fasteignasali getur ekki fullyrt um ástand og eiginleika þeirra hluta fasteigna sem ekki eru aðgengilegir og sjást ekki berum augum, t.d. lagnir, dren, skólp og þak.
Ár
Fasteignamat
Kaupverð
Stærð
Fermetraverð
19. des. 2013
6.760.000 kr.
862.050.000 kr.
4711.4 m²
182.971 kr.
Byggt á upplýsingum úr Þjóðskrá Íslands frá 2006-2026