Upplýsingar
Verðsaga
Byggt 1976
97,3 m²
4 herb.
1 baðherb.
3 svefnh.
Þvottahús
Sameiginl. inngangur
Bílastæði
Lýsing
Fasteignaland fasteignasala kynnir í einkasölu:
Fallega 4ra herbergja 97,3 fm útsýnisíbúð við Flúðasel 61 í Reykjavík.
Stæði í bílskýli fylgir íbúðinni. Tilvalin fjölskyldueign.
Húsið hefur fengið gott viðhald á undanförnum árum.
Stutt er í þjónustu verslana, leikskóli og skóli steinsnar í burtu og fallegar gönguleiðir innan seilingar og útivistarsvæði við Heiðmörk og Rauðavatn..
Allar nánari upplýsingar um eignina veitir Hörður Sverrisson, lgf s 777-5209, 599-6705, hordur@fasteignaland.is
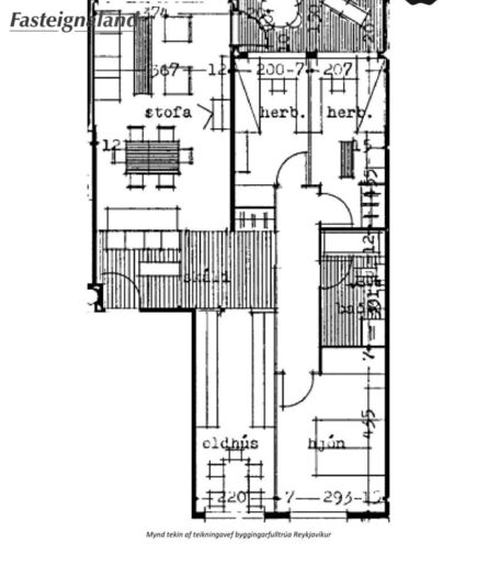
Lýsing:
Á holi eru flísar og er skápur við inngang og annar skápur hinu megin inngangs í stofu, holið tengir saman öll íveruherbergi íbúðarinnar.
Í eldhúsi eru flísar á gólfum og IKEA innrétting , skipt var um borðplötur á innréttingu 2019. Góður borðkrókur.
Stofa er með harðparketi og er útgengt á svalir sem snúa í suðaustur og er þaðan fallegt útsýni yfir Vatnsendahæð og til Rjúpnahæðar. Stórir gluggar eru í stofunni og hún því björt.
Hjónaherbergið er rúmgott með ágætum skápum og parketi á gólfi, gluggi er til norðvesturs.
Herbergi 2 er með parketi á gólfi.
Herbergi 3, sem er minnst, er með parketi á gólfi.
Baðherbergi er með innréttingu, baðkari og sturtutækjum, þar er tengi fyrir þvottavél og þurrkara.
Geymsla í séreign er í sameigninni á neðstu hæð og er 5,7fm að stærð.
Sameign lítur vel út. Góð umgengni í hjóla- og vagnageymslu og í þvottahúsi, en þar eru snúrur og aðstaða fyrir þvottavél og þurrkara.
Bílskýli: Gengið í það utanfrá. Góð aðstaða og mögulegt að þvo bíla.
Leikvöllur er á miðsvæði.
Lóð er góð og vel hirt
Framkvæmdir
Húsið var málað að utan 2018 og 2025.
Árin 2017 og 2018 var farið yfir glugga og skipt um glugga eða gler og gluggalista þar sem þurfti.
Endurnýjað járn á þakköntum og þakrennur endurnýjaðar ásamt þakkanti árið 2018.
Nýlegt vatnsinntak er í húsinu.
Um skoðunar- og aðgæsluskyldu:
Í lögum um fasteignakaup nr. 40/2002 er kveðið á um ríka skoðunarskyldu kaupenda á fasteignum. DOMUSNOVA fasteignasala bendir væntanlegum kaupendum á að kynna sér vel ástand fasteigna við skoðun og fyrir tilboðsgerð og ef þurfa þykir að leita til sérfræðinga um nánari ástandsskoðun.
Forsendur söluyfirlits:
Söluyfirlit er samið af fasteignasala í samræmi við ákvæði laga nr. 70/2015. Þær upplýsingar sem fram koma í söluyfirliti þessu eru sóttar í opinberar skrár, til seljanda sjálfs og eftir atvikum til húsfélags. Seljandi veitir upplýsingar um eign í samræmi við upplýsingaskyldu laga um fasteignakaup nr. 40/2002. Fasteignasali sannreynir að þær upplýsingar séu réttar með sjónskoðun á eigninni. Fasteignasali getur ekki fullyrt um ástand og eiginleika þeirra hluta fasteigna sem ekki eru aðgengilegir og sjást ekki berum augum, t.d. lagnir, dren, skólp og þak.
Gjöld sem kaupandi þarf að standa straum af vegna kaupanna:
Stimpilgjald af kaupsamningi sem er hlutfall af fasteignamati. Stimpilgjald er 0,8% fyrir einstaklinga (0,4% við fyrstu kaup m.v. að lágmarki 50% eignarhlut) og 1,6% fyrir lögaðila.
Þinglýsingargjald af kaupsamningi, veðskuldabréfum, veðleyfum o.fl. Þinglýsingargjald er kr. 2.500,- fyrir hvert skjal.
Lántökugjald lánastofnunar. Um lántökugjald vísast í gjaldskrá viðkomandi lánveitanda.
Umsýsluþóknun fasteignasölu skv. gjaldskrá.
Fallega 4ra herbergja 97,3 fm útsýnisíbúð við Flúðasel 61 í Reykjavík.
Stæði í bílskýli fylgir íbúðinni. Tilvalin fjölskyldueign.
Húsið hefur fengið gott viðhald á undanförnum árum.
Stutt er í þjónustu verslana, leikskóli og skóli steinsnar í burtu og fallegar gönguleiðir innan seilingar og útivistarsvæði við Heiðmörk og Rauðavatn..
Allar nánari upplýsingar um eignina veitir Hörður Sverrisson, lgf s 777-5209, 599-6705, hordur@fasteignaland.is
Lýsing:
Á holi eru flísar og er skápur við inngang og annar skápur hinu megin inngangs í stofu, holið tengir saman öll íveruherbergi íbúðarinnar.
Í eldhúsi eru flísar á gólfum og IKEA innrétting , skipt var um borðplötur á innréttingu 2019. Góður borðkrókur.
Stofa er með harðparketi og er útgengt á svalir sem snúa í suðaustur og er þaðan fallegt útsýni yfir Vatnsendahæð og til Rjúpnahæðar. Stórir gluggar eru í stofunni og hún því björt.
Hjónaherbergið er rúmgott með ágætum skápum og parketi á gólfi, gluggi er til norðvesturs.
Herbergi 2 er með parketi á gólfi.
Herbergi 3, sem er minnst, er með parketi á gólfi.
Baðherbergi er með innréttingu, baðkari og sturtutækjum, þar er tengi fyrir þvottavél og þurrkara.
Geymsla í séreign er í sameigninni á neðstu hæð og er 5,7fm að stærð.
Sameign lítur vel út. Góð umgengni í hjóla- og vagnageymslu og í þvottahúsi, en þar eru snúrur og aðstaða fyrir þvottavél og þurrkara.
Bílskýli: Gengið í það utanfrá. Góð aðstaða og mögulegt að þvo bíla.
Leikvöllur er á miðsvæði.
Lóð er góð og vel hirt
Framkvæmdir
Húsið var málað að utan 2018 og 2025.
Árin 2017 og 2018 var farið yfir glugga og skipt um glugga eða gler og gluggalista þar sem þurfti.
Endurnýjað járn á þakköntum og þakrennur endurnýjaðar ásamt þakkanti árið 2018.
Nýlegt vatnsinntak er í húsinu.
Um skoðunar- og aðgæsluskyldu:
Í lögum um fasteignakaup nr. 40/2002 er kveðið á um ríka skoðunarskyldu kaupenda á fasteignum. DOMUSNOVA fasteignasala bendir væntanlegum kaupendum á að kynna sér vel ástand fasteigna við skoðun og fyrir tilboðsgerð og ef þurfa þykir að leita til sérfræðinga um nánari ástandsskoðun.
Forsendur söluyfirlits:
Söluyfirlit er samið af fasteignasala í samræmi við ákvæði laga nr. 70/2015. Þær upplýsingar sem fram koma í söluyfirliti þessu eru sóttar í opinberar skrár, til seljanda sjálfs og eftir atvikum til húsfélags. Seljandi veitir upplýsingar um eign í samræmi við upplýsingaskyldu laga um fasteignakaup nr. 40/2002. Fasteignasali sannreynir að þær upplýsingar séu réttar með sjónskoðun á eigninni. Fasteignasali getur ekki fullyrt um ástand og eiginleika þeirra hluta fasteigna sem ekki eru aðgengilegir og sjást ekki berum augum, t.d. lagnir, dren, skólp og þak.
Gjöld sem kaupandi þarf að standa straum af vegna kaupanna:
Stimpilgjald af kaupsamningi sem er hlutfall af fasteignamati. Stimpilgjald er 0,8% fyrir einstaklinga (0,4% við fyrstu kaup m.v. að lágmarki 50% eignarhlut) og 1,6% fyrir lögaðila.
Þinglýsingargjald af kaupsamningi, veðskuldabréfum, veðleyfum o.fl. Þinglýsingargjald er kr. 2.500,- fyrir hvert skjal.
Lántökugjald lánastofnunar. Um lántökugjald vísast í gjaldskrá viðkomandi lánveitanda.
Umsýsluþóknun fasteignasölu skv. gjaldskrá.
Ár
Fasteignamat
Kaupverð
Stærð
Fermetraverð
22. maí. 2020
37.500.000 kr.
38.200.000 kr.
97.3 m²
392.600 kr.
Byggt á upplýsingum úr Þjóðskrá Íslands frá 2006-2026