Upplýsingar
Byggt 2005
123,6 m²
3 herb.
1 baðherb.
2 svefnh.
Þvottahús
Útsýni
Sameiginl. inngangur
Bílastæði
Lyfta
Lýsing
Virkilega falleg 3ja herbergja útsýnisíbúð á 1. hæð í góðu lyftuhúsi ásamt stæði í bílakjallara við Herjólfsgötu 36 í Hafnarfirði.
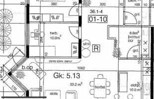
Eignin skiptist þannig að íbúðin er 110,9 fm og geymsla 12,7 fm, alls 123,6 fm skv. Fasteignaskrá.
Frábært útsýni yfir fjörðinn og sjóinn af yfirbyggðum svölum. Íbúðin er fyrir 60 ára og eldri.
Nánari lýsing:
Forstofa og hol með skápum og parket á gólfi.
Hjónaherbergi með góðum skápum og parket á gólfi.
Herbergi með parketi á gólfi
Eldhús, stofa og borðstofa í björtu alrými með útgengt út á tvennar svalir, einstakt útsýni yfir sjóinn af báðum svölum.
Eldhús með viðarinnréttingu, ofn í vinnuhæð,stæði fyrir ísskáp og uppþvottavél. Eldunareyja með háf yfir.
Baðherbergi flísalagt í hólf og gólf, upphengt salerni, sturta, handklæðaofn, skápur.
Þvottahús með stæði fyrir þvottavél og þurrkara , vaskur, góðar hillur. Mikið skápapláss.
Sér geymsla í kjallara.
Sér bílastæði í upphituðum bílakjallara merkt 30. Góð aðstaða til að þrífa bíla.
Sameiginleg hjólageymsla.
Í sameign er einnig mjög góð félagsaðstaða þar sem er aðstaða til að hafa kaffisamsæti,líkamsræktartæki, billiardborð, sjónvarp, gott bókasafn og fleira.
Íbúar hafa verið duglegir að hittast í félagsaðstöðunni, fá sér kaffi saman og spjalla auk þess sem virkur gönguhópur er í húsinu.
*Sameign snyrtileg og í húsinu gott samfélag.
*Húsið er að mestu klætt að utan.
*Sameiginleg bílastæði fyrir framan húsið.
Einstök eign með frábæru útsýni sem vert er að skoða á þessum vinsæla stað í hjarta Hafnarfjarðar þar sem stutt er í kaffihús, veitinghús, söfn, verslanir og aðra þjónustu.
Nánari upplýsingar veitir Svala Haraldsdóttir löggiltur fasteignasali í s. 820-9699 / svala@as.is og Eiríkur Svanur Sigfússon löggiltur fasteignasali í s. 862-3377 / eirikur@as.is
Ás fasteignasala er rótgróið fyrirtæki sem hefur veitt alla almenna þjónustu í fasteignaviðskiptum frá árinu 1988.
www.facebook.com/asfasteignasala
www.instagram.com/as_fasteignasala
www.as.is
Eignin skiptist þannig að íbúðin er 110,9 fm og geymsla 12,7 fm, alls 123,6 fm skv. Fasteignaskrá.
Frábært útsýni yfir fjörðinn og sjóinn af yfirbyggðum svölum. Íbúðin er fyrir 60 ára og eldri.
Nánari lýsing:
Forstofa og hol með skápum og parket á gólfi.
Hjónaherbergi með góðum skápum og parket á gólfi.
Herbergi með parketi á gólfi
Eldhús, stofa og borðstofa í björtu alrými með útgengt út á tvennar svalir, einstakt útsýni yfir sjóinn af báðum svölum.
Eldhús með viðarinnréttingu, ofn í vinnuhæð,stæði fyrir ísskáp og uppþvottavél. Eldunareyja með háf yfir.
Baðherbergi flísalagt í hólf og gólf, upphengt salerni, sturta, handklæðaofn, skápur.
Þvottahús með stæði fyrir þvottavél og þurrkara , vaskur, góðar hillur. Mikið skápapláss.
Sér geymsla í kjallara.
Sér bílastæði í upphituðum bílakjallara merkt 30. Góð aðstaða til að þrífa bíla.
Sameiginleg hjólageymsla.
Í sameign er einnig mjög góð félagsaðstaða þar sem er aðstaða til að hafa kaffisamsæti,líkamsræktartæki, billiardborð, sjónvarp, gott bókasafn og fleira.
Íbúar hafa verið duglegir að hittast í félagsaðstöðunni, fá sér kaffi saman og spjalla auk þess sem virkur gönguhópur er í húsinu.
*Sameign snyrtileg og í húsinu gott samfélag.
*Húsið er að mestu klætt að utan.
*Sameiginleg bílastæði fyrir framan húsið.
Einstök eign með frábæru útsýni sem vert er að skoða á þessum vinsæla stað í hjarta Hafnarfjarðar þar sem stutt er í kaffihús, veitinghús, söfn, verslanir og aðra þjónustu.
Nánari upplýsingar veitir Svala Haraldsdóttir löggiltur fasteignasali í s. 820-9699 / svala@as.is og Eiríkur Svanur Sigfússon löggiltur fasteignasali í s. 862-3377 / eirikur@as.is
Ás fasteignasala er rótgróið fyrirtæki sem hefur veitt alla almenna þjónustu í fasteignaviðskiptum frá árinu 1988.
www.facebook.com/asfasteignasala
www.instagram.com/as_fasteignasala
www.as.is