Upplýsingar
Verðsaga
Byggt 2012
131,5 m²
4 herb.
2 baðherb.
3 svefnh.
Þvottahús
Bílastæði
Lyfta
Opið hús: 9. febrúar 2026
kl. 17:00
til 17:30
Opið hús: Skipalón 12, 220 Hafnarfjörður, Íbúð merkt: 01 06 05. Eignin verður sýnd mánudaginn 9. febrúar 2026 milli kl. 17:00 og kl. 17:30.
Lýsing
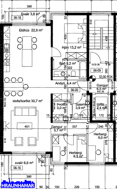
Hraunhamar fasteignasala og Helgi Jón Harðarson sölustj. s. 893-2233 helgi@hraunhamar.is kynna: Afar fallega og bjarta, rúmgóða 4-5 herbergja 131,5 fm á 6 hæð (efstu) í vönduðu fjölbýli fyrir 50 ára og eldri. Frábært útsýni og staðsetning.
Sér stæði á besta stað í bílageymslu fylgir. Rúmgóð sér geymsla í sameign (er í fermetratölu eignar.) Tvennar svalir m.a. yfirbyggðar svalir í vestur. Ath: íbúðin nær í gegnum húsið og því mjög skemmtileg og björt. Laus fljótlega.
Lýsing eignar: Forstofa með skápum, baðherbergi með sturtuklefa, flísar, ljós innrétting, þvottaherbergi innaf baðherbergi, innréttingu, stæði fyir þvottavél/þurrkara. Björt rúmgóð stofa/borðstofa og eldhús í sama alrýminu, útgengt á tvennar svalir, en svalir frá stofu eru yfirlbyggðar. Eldhúsið er með viðarinnréttingum og hvítum skápum fyrir ofan, helluborð með viftu yfir, og ofn í vinnuhæð. Góð borstofa við eldhús sem og svalir.
Þrjú rúmgóð herbergi með skápum, þar af rúmgott hjónaherbergi með sér baðherbergi innaf, baðkar, ljós innrétting, flísar.
Parket á gólfum, flísar á baðherbergjum.
Eigninni fylgir góð sameign, m.a. hjóla og vagnageymsla svoog salur með eldhúsi, t.d. fyrir veislur,fundi ofl.
Húsið er klætt að utan og því viðhaldslétt.
Þetta er mjög áhugaverð eign til að skoða frekar, í vinsælu húsi á þessum eftirsótta stað.
Nánari upplýsingar gefur Helgi Jón Harðarson sölustjóri s. 893-2233 helgi@hraunhamar.is og
Glódís Helgadótir lgf s. 659-0510 glodis@hraunhamar.is
Skoðunarskylda:
Í lögum um fasteignakaup nr. 40/2002 er kveðið á um ríka skoðunarskyldu kaupenda á fasteignum. Hraunhamar fasteignasala vill benda væntanlegum kaupendum á að kynna sér vel ástand fasteigna fyrir kauptilboðsgerð og ef þurfa þykir að leita til sérfræðinga fyrir nánari ástandsskoðun.
Gjöld sem kaupandi þarf að standa straum af vegna kaupanna:
1. Stimpilgjald af kaupsamningi, fyrstu kaup (0,4%), almenn kaup (0,8%), lögaðilar (1,6%) af heildarfasteignamati.
2. Þinglýsingargjald af kaupsamningi, veðskuldabréfi, mögulegu veðleyfi o.fl. – 3.800 kr. af hverju skjali.
3. Lántökugjald lánastofnunar er skv. verðskrá viðkomandi lánastofnunar.
4. Umsýslugjald til fasteignasölu skv. þjónustusamningi
Hraunhamar er elsta fasteignasala Hafnarfjarðar, stofnuð 1983.
Hraunhamar, í fararbroddi í rúm 40 ár. – Hraunhamar.is
Smelltu hér til að fá frítt söluverðmat.
Smelltu hér til að fá söluyfirlit sent strax.
Sér stæði á besta stað í bílageymslu fylgir. Rúmgóð sér geymsla í sameign (er í fermetratölu eignar.) Tvennar svalir m.a. yfirbyggðar svalir í vestur. Ath: íbúðin nær í gegnum húsið og því mjög skemmtileg og björt. Laus fljótlega.
Lýsing eignar: Forstofa með skápum, baðherbergi með sturtuklefa, flísar, ljós innrétting, þvottaherbergi innaf baðherbergi, innréttingu, stæði fyir þvottavél/þurrkara. Björt rúmgóð stofa/borðstofa og eldhús í sama alrýminu, útgengt á tvennar svalir, en svalir frá stofu eru yfirlbyggðar. Eldhúsið er með viðarinnréttingum og hvítum skápum fyrir ofan, helluborð með viftu yfir, og ofn í vinnuhæð. Góð borstofa við eldhús sem og svalir.
Þrjú rúmgóð herbergi með skápum, þar af rúmgott hjónaherbergi með sér baðherbergi innaf, baðkar, ljós innrétting, flísar.
Parket á gólfum, flísar á baðherbergjum.
Eigninni fylgir góð sameign, m.a. hjóla og vagnageymsla svoog salur með eldhúsi, t.d. fyrir veislur,fundi ofl.
Húsið er klætt að utan og því viðhaldslétt.
Þetta er mjög áhugaverð eign til að skoða frekar, í vinsælu húsi á þessum eftirsótta stað.
Nánari upplýsingar gefur Helgi Jón Harðarson sölustjóri s. 893-2233 helgi@hraunhamar.is og
Glódís Helgadótir lgf s. 659-0510 glodis@hraunhamar.is
Skoðunarskylda:
Í lögum um fasteignakaup nr. 40/2002 er kveðið á um ríka skoðunarskyldu kaupenda á fasteignum. Hraunhamar fasteignasala vill benda væntanlegum kaupendum á að kynna sér vel ástand fasteigna fyrir kauptilboðsgerð og ef þurfa þykir að leita til sérfræðinga fyrir nánari ástandsskoðun.
Gjöld sem kaupandi þarf að standa straum af vegna kaupanna:
1. Stimpilgjald af kaupsamningi, fyrstu kaup (0,4%), almenn kaup (0,8%), lögaðilar (1,6%) af heildarfasteignamati.
2. Þinglýsingargjald af kaupsamningi, veðskuldabréfi, mögulegu veðleyfi o.fl. – 3.800 kr. af hverju skjali.
3. Lántökugjald lánastofnunar er skv. verðskrá viðkomandi lánastofnunar.
4. Umsýslugjald til fasteignasölu skv. þjónustusamningi
Hraunhamar er elsta fasteignasala Hafnarfjarðar, stofnuð 1983.
Hraunhamar, í fararbroddi í rúm 40 ár. – Hraunhamar.is
Smelltu hér til að fá frítt söluverðmat.
Smelltu hér til að fá söluyfirlit sent strax.
Ár
Fasteignamat
Kaupverð
Stærð
Fermetraverð
15. maí. 2013
15.350.000 kr.
36.000.000 kr.
131.5 m²
273.764 kr.
Byggt á upplýsingum úr Þjóðskrá Íslands frá 2006-2026