Upplýsingar
Verðsaga
Byggt 2020
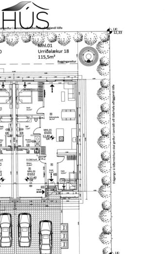
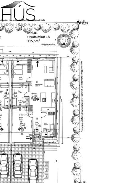
115,5 m²
3 herb.
1 baðherb.
2 svefnh.
Þvottahús
Bílskúr
Sérinngangur
Lýsing
Steindór Guðmundsson löggiltur fasteignasali 862 1996 og HÚS fasteignasala kynna í sölu Urriðalækur 18, Selfossi. Snoturt nýlegt þriggja herbergja parhús 115 fm með bílskúr. Gott innra skipulag. Stór afgirt timburverönd með heitum potti.
Íbúðin er 90,5 fm og bílskúr 25. Samtals 115. Byggt árið 2020 úr timbri. Klætt að utan með lituðu bárujárni.
Nánari lýsing:
Opin forstofa. Innangengt er úr forstofu í bílskúr.
Eldhús og stofa í opnu rými, IKEA innrétting. Innbyggð uppþvottavél. Eyja með helluborð og háfi yfir. Borðplata frá Byko.
Úr stofu er rennihurð á sólpall.
Tvö svefnherbergi. Fataskápar í hjónaherberginu.
Flísalagt baðherbergi með innréttingu, upphengdu salerni og walk in sturtu. Innaf baðherbergi er þvottahús með innréttingu fyrir þvottavél og þurkara.
Harðparket er á gólfum. Hvítar innihurðar. Upptekin loft í íbúðinni, með ljósum loftaþiljum, innbyggð lýsing.
Bílskúr er með máluðu gólfi. Innkeyrsluhurð.flekahurð.
Hellulögð innkeyrsla.
Nánari upplýsingar veitir Steindór Guðmundsson löggiltur fasteignasali s. 862 1996 steindor@husfasteign.is
,,Okkar fagmennska eru þínir hagsmunir"
Gjöld sem kaupandi þarf að standa straum að vegna kaupanna.
1. Stimpilgjöld af kaupsamningi - 0,8 % af heildarfasteignamati. (0,4% fyrstu kaup, 1,6% lögaðilar)
2. Þinglýsingargjald af kaupsamningi, veðskuldabréfi, mögulegu veðleyfi o.fl. kr. 3.800 af hverju skjali.
3. Lántökugjald lánastofnunnar, breytilegt. Nánari upplýsingar t.d. á heimasíðum lánastofnanna.
4. Umsýslugjald til fasteignasölu sbr. Kauptilboð
Lækjahverfi er nýtt hverfi í suðvestur hluta Selfoss. Ný Nettó verslun í göngufæri svo og Stekkjarskóli.
Íbúðin er 90,5 fm og bílskúr 25. Samtals 115. Byggt árið 2020 úr timbri. Klætt að utan með lituðu bárujárni.
Nánari lýsing:
Opin forstofa. Innangengt er úr forstofu í bílskúr.
Eldhús og stofa í opnu rými, IKEA innrétting. Innbyggð uppþvottavél. Eyja með helluborð og háfi yfir. Borðplata frá Byko.
Úr stofu er rennihurð á sólpall.
Tvö svefnherbergi. Fataskápar í hjónaherberginu.
Flísalagt baðherbergi með innréttingu, upphengdu salerni og walk in sturtu. Innaf baðherbergi er þvottahús með innréttingu fyrir þvottavél og þurkara.
Harðparket er á gólfum. Hvítar innihurðar. Upptekin loft í íbúðinni, með ljósum loftaþiljum, innbyggð lýsing.
Bílskúr er með máluðu gólfi. Innkeyrsluhurð.flekahurð.
Hellulögð innkeyrsla.
Nánari upplýsingar veitir Steindór Guðmundsson löggiltur fasteignasali s. 862 1996 steindor@husfasteign.is
,,Okkar fagmennska eru þínir hagsmunir"
Gjöld sem kaupandi þarf að standa straum að vegna kaupanna.
1. Stimpilgjöld af kaupsamningi - 0,8 % af heildarfasteignamati. (0,4% fyrstu kaup, 1,6% lögaðilar)
2. Þinglýsingargjald af kaupsamningi, veðskuldabréfi, mögulegu veðleyfi o.fl. kr. 3.800 af hverju skjali.
3. Lántökugjald lánastofnunnar, breytilegt. Nánari upplýsingar t.d. á heimasíðum lánastofnanna.
4. Umsýslugjald til fasteignasölu sbr. Kauptilboð
Lækjahverfi er nýtt hverfi í suðvestur hluta Selfoss. Ný Nettó verslun í göngufæri svo og Stekkjarskóli.
Ár
Fasteignamat
Kaupverð
Stærð
Fermetraverð
22. nóv. 2019
4.360.000 kr.
26.390.000 kr.
115.5 m²
228.485 kr.
Byggt á upplýsingum úr Þjóðskrá Íslands frá 2006-2026