Löggiltir fasteignasalar innan Félags fasteignasala:
Hannes Steindórsson
Bogi Molby Pétursson
Guðrún Antonsdóttir
Heimir Hallgrímsson
Hrafnkell P. H. Pálmason
Viðar Marinósson
Elías Haraldsson
Kristján Þórir Hauksson
Albert Bjarni Úlfarsson
Ragnar Þorsteinsson
Þórey Ólafsdóttir
Andri Freyr Halldórsson
Upplýsingar
Byggt 2024
96,6 m²
3 herb.
2 baðherb.
2 svefnh.
Sameiginl. inngangur
Bílastæði
Lyfta
Opið hús: 18. janúar 2026
kl. 13:00
til 13:20
Lýsing
NÝJAR ÍBÚÐIR VIÐ HAFIÐ - Sýni samdægurs. Bókaðu skoðun í síma 822 2123 eða helga@fastlind.is
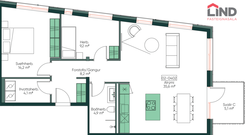
LIND fasteignasala og Helga Pálsdóttir löggiltur fasteignasali kynnir Jöfursbás 5B, Reykjavík - íbúð 0402 er 3. herbergja 96,6 m2 endaíbúð á fjórðu hæð með útsýni, þar af geymsla 7,7 m2 (merkt 0011). Sér þvottahús. Íbúðinni fylgir stæði merkt B016 í lokuðu bílahúsi. Íbúðin er skemmtilega hönnuð með fallegu eldhúsi með eyju, stofu, borðstofu, tveimur svefnherbergjum og fataherbergi innaf hjónaherbergi. Gólfhiti í allri íbúðinni og gólfsíðir gluggar. Svalir til suðurs út frá stofu. Útsýni m.a. til sjávar frá stofu þar sem íbúðin er staðsett við strandlengjuna. Íbúðin er með aukinni lofthæð allt að 280cm.
Innanhúss hönnuður hefur komið að hönnun allra íbúða en í þeim má finna innréttingar sem eru sérsmíðaðar hjá VOKE-III, blöndunartæki eru frá Grohe og hreinlætistæki frá Duravit. Quartz steinn frá Technistone er á eldhúsum og böðum. Flísar á votrýmum og vandað parket á aðalflötum íbúðar er frá Ebson og eldhústæki frá AEG.
* sjávarútsýni
* aukin lofthæð
* sérsmíðaðar innréttingar sem ná upp í loft.
* vönduð gólfefni
* gólfhiti
* gólfsíðir gluggar
* quartz steinn á borðum og undirlímdir vaskar
* snjóbræðslukerfi í göngustígum með fallegri næturlýsingu
* spennandi umhverfisskipulag í nýju hverfi
Nánari lýsing íbúðar
Forstofa með innbyggðum fataskáp sem nær til lofts.
Eldhús með eyju, góðu skápaplássi og nær innrétting til lofts. Innrétting er vönduð með Quartz stein á borðplötum
og út frá eldhúsi er stór gólfsíður gluggi.
Stofa og borðstofa með gólfsíðum gluggum og útgeng á svalir til suðurs.
Baðherbergi flísalagt 60x60cm ljósgráum flísum frá EBSON bæði gólf og hluti veggja, með vandaðri innréttingu með Quartz stein á baðinnréttingu frá Technistone.
Þvottahús með flísalögðu gólfi og veglegri innréttingu með efti og neðri skápum þar sem gert er ráð fyrir þvottavél og þurrkara i innréttingu.
Hjónaherbergi með fataherbergi innaf. Gólfsíður gluggi í hjónaherbergi með útsýni til sjávar
Barnaherbergi með góðum fataskáp sem nær til lofts
Geymsla merkt íbúðinni í kjallara
Hjóla- og vagnageymsla í sameign
Djúpgámar á lóð fyrir flokkað rusl
Hitalagnir í helstu gönguleiðum lóðar
Allir innviðir í hverfinu sterkir þ.m.t. skólar, leikskólar, verslanir og hvers konar önnur þjónusta í næsta nágrenni.
Leiðakerfi strætó tengist Gufunesi.
Allar upplýsingar á: www.gufunesid.is
Íbúðirnar í húsinu eru samtals 23 talsins , mjög fjölbreyttar 2-5 herbergja. Stærðir frá 52,7 m2-147,5 m2. Næg stæði fyrir utan hús.
Hverfið:
Við Eiðsvík í Gufunesi er að rísa spennandi íbúðabyggð í gömlu iðnaðarhverfi sem nú hýsir kvikmyndaver og fyrirtæki í skapandi greinum. Landslagið er einstakt, vogskornir klettar, strendur með svörtum og gylltum sandi, fuglalíf og útsýni yfir Geldinganes, Viðey, Esju og miðborgina. Engar götur skilja byggðina frá náttúrunni og einungis hjóla- og göngustígar liggja að hafi.
Vatnastrætó, ylströnd, göngubrú út í Viðey og góðir göngu- og hjólastígar er meðal þess sem mun einkenna þetta skemmtilega hverfi. Það er einstakt að eiga kost á slíkri náttúruperlu í miðri höfuðborginni.
Það er stutt í alla þjónustu, hvort sem það er í verslun, skóla, leikskóla eða íþróttamannvirki. Í Spönginni má m.a. finna ýmsar matvöruverslanir, vínbúð, veitingastaði, bókasafn, apótek, heilsugæslu, menningarmiðstöð og tónlistarskóla. Stutt er í Vættaskóla sem er grunnskóli og Borgarholtsskóla sem er framhaldsskóli. Þá eru fjölmargir leikskólar í nágrenninu auk þess sem golfvöllur er skammt undan.
Allar upplýsingar um eignina veitir Helga Pálsdóttir fasteignasali í síma 822 2123 eða helga@fastlind.is
LIND fasteignasala og Helga Pálsdóttir löggiltur fasteignasali kynnir Jöfursbás 5B, Reykjavík - íbúð 0402 er 3. herbergja 96,6 m2 endaíbúð á fjórðu hæð með útsýni, þar af geymsla 7,7 m2 (merkt 0011). Sér þvottahús. Íbúðinni fylgir stæði merkt B016 í lokuðu bílahúsi. Íbúðin er skemmtilega hönnuð með fallegu eldhúsi með eyju, stofu, borðstofu, tveimur svefnherbergjum og fataherbergi innaf hjónaherbergi. Gólfhiti í allri íbúðinni og gólfsíðir gluggar. Svalir til suðurs út frá stofu. Útsýni m.a. til sjávar frá stofu þar sem íbúðin er staðsett við strandlengjuna. Íbúðin er með aukinni lofthæð allt að 280cm.
Innanhúss hönnuður hefur komið að hönnun allra íbúða en í þeim má finna innréttingar sem eru sérsmíðaðar hjá VOKE-III, blöndunartæki eru frá Grohe og hreinlætistæki frá Duravit. Quartz steinn frá Technistone er á eldhúsum og böðum. Flísar á votrýmum og vandað parket á aðalflötum íbúðar er frá Ebson og eldhústæki frá AEG.
* sjávarútsýni
* aukin lofthæð
* sérsmíðaðar innréttingar sem ná upp í loft.
* vönduð gólfefni
* gólfhiti
* gólfsíðir gluggar
* quartz steinn á borðum og undirlímdir vaskar
* snjóbræðslukerfi í göngustígum með fallegri næturlýsingu
* spennandi umhverfisskipulag í nýju hverfi
Nánari lýsing íbúðar
Forstofa með innbyggðum fataskáp sem nær til lofts.
Eldhús með eyju, góðu skápaplássi og nær innrétting til lofts. Innrétting er vönduð með Quartz stein á borðplötum
og út frá eldhúsi er stór gólfsíður gluggi.
Stofa og borðstofa með gólfsíðum gluggum og útgeng á svalir til suðurs.
Baðherbergi flísalagt 60x60cm ljósgráum flísum frá EBSON bæði gólf og hluti veggja, með vandaðri innréttingu með Quartz stein á baðinnréttingu frá Technistone.
Þvottahús með flísalögðu gólfi og veglegri innréttingu með efti og neðri skápum þar sem gert er ráð fyrir þvottavél og þurrkara i innréttingu.
Hjónaherbergi með fataherbergi innaf. Gólfsíður gluggi í hjónaherbergi með útsýni til sjávar
Barnaherbergi með góðum fataskáp sem nær til lofts
Geymsla merkt íbúðinni í kjallara
Hjóla- og vagnageymsla í sameign
Djúpgámar á lóð fyrir flokkað rusl
Hitalagnir í helstu gönguleiðum lóðar
Allir innviðir í hverfinu sterkir þ.m.t. skólar, leikskólar, verslanir og hvers konar önnur þjónusta í næsta nágrenni.
Leiðakerfi strætó tengist Gufunesi.
Allar upplýsingar á: www.gufunesid.is
Íbúðirnar í húsinu eru samtals 23 talsins , mjög fjölbreyttar 2-5 herbergja. Stærðir frá 52,7 m2-147,5 m2. Næg stæði fyrir utan hús.
Hverfið:
Við Eiðsvík í Gufunesi er að rísa spennandi íbúðabyggð í gömlu iðnaðarhverfi sem nú hýsir kvikmyndaver og fyrirtæki í skapandi greinum. Landslagið er einstakt, vogskornir klettar, strendur með svörtum og gylltum sandi, fuglalíf og útsýni yfir Geldinganes, Viðey, Esju og miðborgina. Engar götur skilja byggðina frá náttúrunni og einungis hjóla- og göngustígar liggja að hafi.
Vatnastrætó, ylströnd, göngubrú út í Viðey og góðir göngu- og hjólastígar er meðal þess sem mun einkenna þetta skemmtilega hverfi. Það er einstakt að eiga kost á slíkri náttúruperlu í miðri höfuðborginni.
Það er stutt í alla þjónustu, hvort sem það er í verslun, skóla, leikskóla eða íþróttamannvirki. Í Spönginni má m.a. finna ýmsar matvöruverslanir, vínbúð, veitingastaði, bókasafn, apótek, heilsugæslu, menningarmiðstöð og tónlistarskóla. Stutt er í Vættaskóla sem er grunnskóli og Borgarholtsskóla sem er framhaldsskóli. Þá eru fjölmargir leikskólar í nágrenninu auk þess sem golfvöllur er skammt undan.
Allar upplýsingar um eignina veitir Helga Pálsdóttir fasteignasali í síma 822 2123 eða helga@fastlind.is