Löggiltir fasteignasalar innan Félags fasteignasala:
Aðalheiður Karlsdóttir
Upplýsingar
Verðsaga
204 m²
4 herb.
2 baðherb.
3 svefnh.
Sérinngangur
Lýsing
SPÁNAREIGNIR KYNNIR:
*FLOTT EINBÝLISHÚS Á EINNI HÆÐ Á FRÁBÆRU VERÐI*
Vel hönnuð og flott einbýlishús á einni hæð á góðum stað í San Miguel de Salinas, skemmtilegum spænskum bæ með sál og sjarma. Ca. 50 mín. akstur í suður frá Alicante flugvelli. Þrjú svefnherbergi og tvö baðherbergi. Göngufæri í miðbæ San Miguel de Salinas, þar sem er að finna fjölbreytt úrval af verslunum og veitingastöðum. Fjölmargir góðir golfvellir á svæðinu; Las Ramblas, Campoamor, Villamartin, Las Colinas, Vistabella, La Finca og ótal fleiri.
Allar upplýsingar gefa:
Aðalheiður Karlsdóttir, löggiltur fasteignasali. adalheidur@spanareignir.is, 00354 893 2495.
Berta Hawkins, löggiltur fasteignasali, berta@spanareignir.is, 0034 615 112 869,
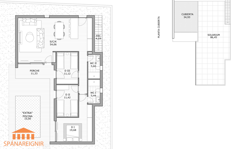
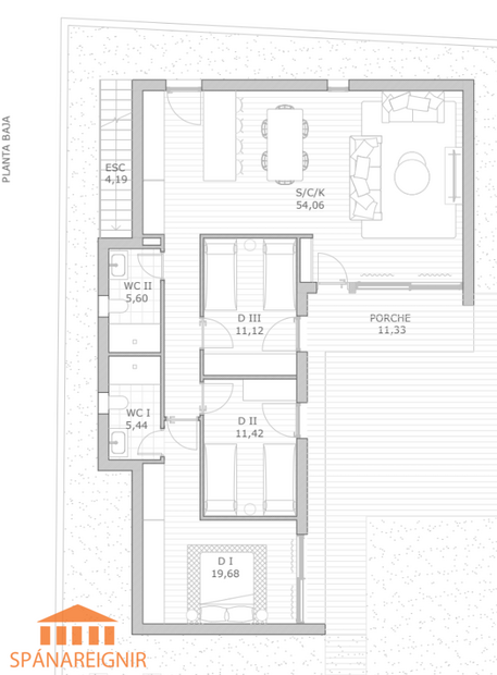
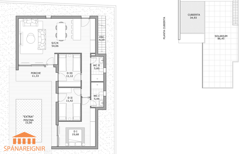
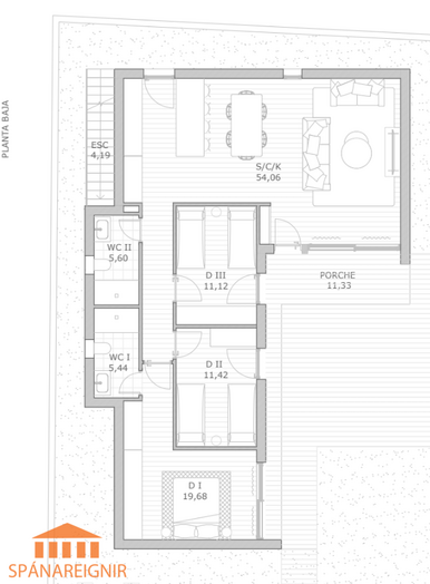
LÝSING EIGNAR:
Rúmgott alrými með stofu, borðstofu og eldhúsi í opnu rými.
Þrjú svefnherbergi og tvö baðherbergi.
Gott aðgengi að sér garði þar sem möguleiki er að hafa einkasundlaug gegn aukagjaldi.
Bílastæði inni á lokaðri lóð.
Græn svæði sem bjóða upp á skemmtilega útiveru allt árið, enda skín sólin allt að 300 daga á ári.
Verð miðað við gengi 1Evra = 145ISK:
Einbýlishús á einni hæð, þrjú svefnherbergi og tvö baðherbergi:
Verð frá 429.900 Evrur (62.300.000 ISK) + 10% skattur og ca. 3% kostnaður við kaupin.
Góðir kaupaukar fylgja.
Hafið samband og fáið upplýsingar.
Íbúðarrými: 107 fm.
Verönd: 11 fm.
Þakverönd: 86 fm.
Samtals 204 fm.
Einkasundlaug gegn aukagjaldi.
Áætlaður afhendingartími er í apríl-september 2026.
Öll þjónusta í næsta nágrenni og auk þess er Zenia Boulevard verslunarmiðstöðin í ca. 15 mín. akstursleið og ströndin í ca. 20 mín. akstursleið frá San Miguel de Salinas.
Hér er um að ræða góðar eignir á frábærum og fjölskylduvænum stað á frábæru verði. Góð kaup miðað við stærð, staðsetningu og frágang, enda hafa þessar eignir selst mjög vel.
Mögulegt er að fjármagna hluta kaupverðs með láni frá spænskum banka með hagstæðum vöxtum.
Við höfum selt fasteignir á Spáni síðan 2001. Tryggir þekkingu, reynslu og öryggi.
Eitt besta loftslag í heimi samkvæmt Alþjóða heilbrigðistofnunni, WHO.
SKOÐUNARFERÐIR:
Við aðstoðum kaupendur við að skipuleggja skoðunarferðir og tökum þátt í kostnaði vegna þeirra, ef af viðskiptum verður.
Sjá nánar um fasteignakaup á Spáni á heimasíðunni okkar: www.spanareignir.is
Kostnaður við kaupin:
10% IVA (spænskur söluskattur) af kaupverði eignarinnar. Auk þess má gera ráð fyrir ca. 3% kostnaði vegna stimpilgjalda og annars kostnaðar við kaupin, þ.e. samtals getur kostnaður vegna kaupa á fasteign á Spáni því farið upp ca. 13%.
Meira um SAN MIGUEL DE SALINAS:
San Miguel de Salinas er skemmtilegur spænskur bær í aðeins 15 mínútna akstursfjarlægð frá ströndum Mil Palmeras, Campoamor, Cabo Roig, La Zenia, Torrevieja, La Mata, Guardamar o.fl. Bærinn er umkringdur fallegri sveit þar sem augað lítur fallega sítrus- og möndlurækt og þjóðlendu garð Sierra Escalona rétt við þröskuldinn. Hægt er að ganga og hjóla marga kílómetra meðfram síkinu sem liggur rétt við bæinn.
Í San Miguel de Salinas er mikið úrval af skemmtilegum veitingastöðum, bæði spænskum og alþjóðlegum (tæplega 30 í miðbænum einum, sem þýðir að árlegur tapas-viðburður er mjög vinsæll!!). Ef þú ert að leita að áfangastað til að dvelja í fríum, eða stað til að búa á allt árið um kring, þá er San Miguel de Salinas frábær kostur þar sem í bænum hefur þú alla nauðsynlega þjónustu og öll þægindi (góðir grunn- og framhaldsskólar, bankar, heilsugæslustöð sem er opin allan sólarhringinn, apótek, góð aðstaða til íþrótta, td. sundlaug, fótbolta- og frjálsíþróttavöllur, tennisvellir, padelvellir, körfuboltavellir, petanca ofl.
Í bænum er líka skemmtileg blanda af spænskum og alþjóðlegum nágrönnum.
Stemmingin er þægileg og afslappandi og verð á börum og veitingastöðum hafa tilhneigingu til að vera lægri en á ströndinni, td. glas af góðu rauðvíni beint úr tunnunni. Vikulegur miðvikudagsmarkaður er frábært tækifæri til að birgja sig upp af staðbundnum ferskum ávöxtum og grænmeti, skinkum, ostum, ólífum, fötum og skóm o.s.frv., áður en þú færð þér drykk og tapas í einni af vinalegu tavernunum í bænum!
Það er leigubílaþjónusta á staðnum og almenningsvagnar ganga nokkrum sinnum á dag til Torrevieja, Orihuela og Murcia.
Alicante og Murcia flugvöllur eru báðir í um 40-50 mínútna akstursfjarlægð. Netfyrirtækið á staðnum býður upp á áreiðanlegar, háhraða (ljósleiðara) nettengingar, sem auðveldar fólki að vinna í fjarvinnu.
San Miguel er staður þar sem þú nýtur hefðbundins spænsks lífstíls og menningar, án þess að fórna þægindum af fyrsta flokks aðstöðu og umhverfi.
San Miguel de Salinas er sérlega vinalegur bær sem við vitum að þú munt elska!
Eiginleikar: ný eign, sér garður, þakverönd, einkasundlaug, air con, bílastæði,
Svæði: Costa blanca, San Miguel de Salinas,
*FLOTT EINBÝLISHÚS Á EINNI HÆÐ Á FRÁBÆRU VERÐI*
Vel hönnuð og flott einbýlishús á einni hæð á góðum stað í San Miguel de Salinas, skemmtilegum spænskum bæ með sál og sjarma. Ca. 50 mín. akstur í suður frá Alicante flugvelli. Þrjú svefnherbergi og tvö baðherbergi. Göngufæri í miðbæ San Miguel de Salinas, þar sem er að finna fjölbreytt úrval af verslunum og veitingastöðum. Fjölmargir góðir golfvellir á svæðinu; Las Ramblas, Campoamor, Villamartin, Las Colinas, Vistabella, La Finca og ótal fleiri.
Allar upplýsingar gefa:
Aðalheiður Karlsdóttir, löggiltur fasteignasali. adalheidur@spanareignir.is, 00354 893 2495.
Berta Hawkins, löggiltur fasteignasali, berta@spanareignir.is, 0034 615 112 869,
LÝSING EIGNAR:
Rúmgott alrými með stofu, borðstofu og eldhúsi í opnu rými.
Þrjú svefnherbergi og tvö baðherbergi.
Gott aðgengi að sér garði þar sem möguleiki er að hafa einkasundlaug gegn aukagjaldi.
Bílastæði inni á lokaðri lóð.
Græn svæði sem bjóða upp á skemmtilega útiveru allt árið, enda skín sólin allt að 300 daga á ári.
Verð miðað við gengi 1Evra = 145ISK:
Einbýlishús á einni hæð, þrjú svefnherbergi og tvö baðherbergi:
Verð frá 429.900 Evrur (62.300.000 ISK) + 10% skattur og ca. 3% kostnaður við kaupin.
Góðir kaupaukar fylgja.
Hafið samband og fáið upplýsingar.
Íbúðarrými: 107 fm.
Verönd: 11 fm.
Þakverönd: 86 fm.
Samtals 204 fm.
Einkasundlaug gegn aukagjaldi.
Áætlaður afhendingartími er í apríl-september 2026.
Öll þjónusta í næsta nágrenni og auk þess er Zenia Boulevard verslunarmiðstöðin í ca. 15 mín. akstursleið og ströndin í ca. 20 mín. akstursleið frá San Miguel de Salinas.
Hér er um að ræða góðar eignir á frábærum og fjölskylduvænum stað á frábæru verði. Góð kaup miðað við stærð, staðsetningu og frágang, enda hafa þessar eignir selst mjög vel.
Mögulegt er að fjármagna hluta kaupverðs með láni frá spænskum banka með hagstæðum vöxtum.
Við höfum selt fasteignir á Spáni síðan 2001. Tryggir þekkingu, reynslu og öryggi.
Eitt besta loftslag í heimi samkvæmt Alþjóða heilbrigðistofnunni, WHO.
SKOÐUNARFERÐIR:
Við aðstoðum kaupendur við að skipuleggja skoðunarferðir og tökum þátt í kostnaði vegna þeirra, ef af viðskiptum verður.
Sjá nánar um fasteignakaup á Spáni á heimasíðunni okkar: www.spanareignir.is
Kostnaður við kaupin:
10% IVA (spænskur söluskattur) af kaupverði eignarinnar. Auk þess má gera ráð fyrir ca. 3% kostnaði vegna stimpilgjalda og annars kostnaðar við kaupin, þ.e. samtals getur kostnaður vegna kaupa á fasteign á Spáni því farið upp ca. 13%.
Meira um SAN MIGUEL DE SALINAS:
San Miguel de Salinas er skemmtilegur spænskur bær í aðeins 15 mínútna akstursfjarlægð frá ströndum Mil Palmeras, Campoamor, Cabo Roig, La Zenia, Torrevieja, La Mata, Guardamar o.fl. Bærinn er umkringdur fallegri sveit þar sem augað lítur fallega sítrus- og möndlurækt og þjóðlendu garð Sierra Escalona rétt við þröskuldinn. Hægt er að ganga og hjóla marga kílómetra meðfram síkinu sem liggur rétt við bæinn.
Í San Miguel de Salinas er mikið úrval af skemmtilegum veitingastöðum, bæði spænskum og alþjóðlegum (tæplega 30 í miðbænum einum, sem þýðir að árlegur tapas-viðburður er mjög vinsæll!!). Ef þú ert að leita að áfangastað til að dvelja í fríum, eða stað til að búa á allt árið um kring, þá er San Miguel de Salinas frábær kostur þar sem í bænum hefur þú alla nauðsynlega þjónustu og öll þægindi (góðir grunn- og framhaldsskólar, bankar, heilsugæslustöð sem er opin allan sólarhringinn, apótek, góð aðstaða til íþrótta, td. sundlaug, fótbolta- og frjálsíþróttavöllur, tennisvellir, padelvellir, körfuboltavellir, petanca ofl.
Í bænum er líka skemmtileg blanda af spænskum og alþjóðlegum nágrönnum.
Stemmingin er þægileg og afslappandi og verð á börum og veitingastöðum hafa tilhneigingu til að vera lægri en á ströndinni, td. glas af góðu rauðvíni beint úr tunnunni. Vikulegur miðvikudagsmarkaður er frábært tækifæri til að birgja sig upp af staðbundnum ferskum ávöxtum og grænmeti, skinkum, ostum, ólífum, fötum og skóm o.s.frv., áður en þú færð þér drykk og tapas í einni af vinalegu tavernunum í bænum!
Það er leigubílaþjónusta á staðnum og almenningsvagnar ganga nokkrum sinnum á dag til Torrevieja, Orihuela og Murcia.
Alicante og Murcia flugvöllur eru báðir í um 40-50 mínútna akstursfjarlægð. Netfyrirtækið á staðnum býður upp á áreiðanlegar, háhraða (ljósleiðara) nettengingar, sem auðveldar fólki að vinna í fjarvinnu.
San Miguel er staður þar sem þú nýtur hefðbundins spænsks lífstíls og menningar, án þess að fórna þægindum af fyrsta flokks aðstöðu og umhverfi.
San Miguel de Salinas er sérlega vinalegur bær sem við vitum að þú munt elska!
Eiginleikar: ný eign, sér garður, þakverönd, einkasundlaug, air con, bílastæði,
Svæði: Costa blanca, San Miguel de Salinas,
Ár
Fasteignamat
Kaupverð
Stærð
Fermetraverð
8. jún. 2017
31.800.000 kr.
41.000.000 kr.
153.9 m²
266.407 kr.
Byggt á upplýsingum úr Þjóðskrá Íslands frá 2006-2026