Löggiltir fasteignasalar innan Félags fasteignasala:
Aðalheiður Karlsdóttir
Upplýsingar
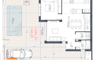
186 m²
4 herb.
3 baðherb.
3 svefnh.
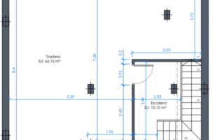
Þvottahús
Sérinngangur
Lýsing
SPÁNAREIGNIR KYNNIR:
*RÚMGÓÐ EINBÝLISHÚS Í NOTALEGUM SPÆNSKUM BÆ* – *GOTT VERÐ*
Falleg, rúmgóð og vel hönnuð einbýlishús á tveimur hæðum með lokuðum garði verönd út frá stofu og einkasundlaug í Benijofar, ekta spænskum bæ, um 45 mín akstur suður af Alicante. Þrjú svefnherbergi, þrjú baðherbergi, góð stofa, borðstofa og rúmgott eldhús. Stórar svalir út frá svefnherbergi á efri hæð og auk þess 48 fm. þakverönd.
Allar upplýsingar gefa:
Aðalheiður Karlsdóttir, löggiltur fasteignasali. GSM 893 2495. adalheidur@spanareignir.is,
Berta Hawkins, löggiltur fasteignasali, berta@spanareignir.is GSM 0034 615 112 869
Nánari lýsing:
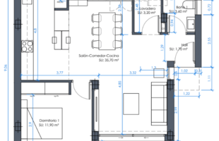
Aðalhæð: Komið er inn í opið rými þar sem er stofa, borðstofa og eldhús í opnu rými. þvottahús/geymsla inn af eldhúsi. Svefnherbergi og baðherbergi. Útgengi út á verönd og sundlaugarsvæðið.
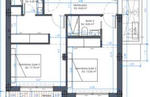
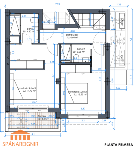
Efri hæð: Tvö svefnherbergi, bæði með sér baðherbergi. Útgengi út á svalir og einnig stigi upp á þakveröndina.
Möguleiki er að fá hús með kjallara gegn aukagjaldi.
Innbyggt kerfi fyrir loftkælingu og hitun fylgir.
Rafmagnstæki í eldhúsi fylgja og auk þess þvottavél.
Gólfhiti á baðherbergjum.
Lýsing inni og úti.
Rafdrifnar gardínur.
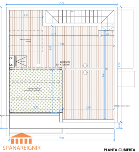
Tengi fyrir heitum potti á þakverönd.
Stæði fyrir bíl í lokuðum garði.
Garðurinn er hellulagður og með gervigrasi að mestu. Einkasundlaug, sem tengist vel góðri verönd út frá stofu. Þar er gott pláss t.d. til að borða úti eða njóta sólarinnar við sundlaugarbakkann.
Góðir golfvellir eru í næsta nágrenni, t.d. La Marquesa, og La Finca, glæsilegan PGA golfvöll. Einnig eru fleiri góðir golfvellir í næsta nágrenni, t.d. Las Ramblas, Campoamor, Villamartin og Las Colinas.
Ca. 10 mín akstur er niður á ströndina í Guardamar og ca. 15-20 mín. akstur í nýju verslunarmiðstöðina La Zenia Boulevard.
Aðeins örfá hús í boði.
Verð miðað við gengi 1Evra=145 ISK.
Frá 449.000 evrum (ISK 65.100.000) + 10% skattur og ca. 3% kostn. við kaupin.
Til afhendingar í jan.-mars 2026
Húsið er 136 fm. + þakverönd 48 fm. og auk þess möguleiki á 78 fm. kjallara.
Við höfum selt fasteignir á Spáni síðan 2001. Tryggir þekkingu, reynslu og öryggi.
SKOÐUNARFERÐIR:
Við aðstoðum kaupendur við að skipuleggja skoðunarferðir og tökum þátt í kostnaði vegna þeirra.
Mögulegt er að fá húsin afhent fullbúin húsgögnum gegn aukagjaldi.
Sjá nánar um fasteignakaup á Spáni á heimasíðunni okkar: www.spanareignir.is
Kostnaður við kaupin:
10% IVA (spænskur söluskattur) af kaupverði eignarinnar. Auk þess má gera ráð fyrir ca. 3% kostnaði vegna stimpilgjalda og annars kostnaðar við kaupin, þ.e. samtals getur kostnaður vegna kaupa á fasteign á Spáni því farið upp í ca. 13%.
Benijofar er skemmtilegur ekta spænskur bær á Costa Blanca svæðinu, í góðu umhverfi með sjarmerandi hefðbundnu spænsku bæjarlífi, Fiestum og götumarkaði, verslunum og veitingastöðum. Ca. 20-30 mín. akstur í suður frá Alicante flugvellinum. Ca. 10 mín. akstur á tvo góða golfvelli, La Finca og La Marquesa, og ótal fleiri góðir golfvellir eru í innan við 20 mín akstursleið frá Benijofar. Aðeins 8 km. frá fallegu ströndunum á Costa Blanca og ekki nema 2-3 mín akstur eða góður göngutúr til Ciudad Quesada og Dona Pepa, sem eru vinsælir og líflegir bæir sem iða af mannlífi allt árið.
Þetta er því staðsetningin fyrir þá sem vilja upplifa ekta spænskt umhverfi, en njóta þæginda og þjónustu nútímans.
Eiginleikar: bílastæði, þakverönd, air con, einkasundlaug, ný eign,
Svæði: Costa Blanca, Benijofar,
*RÚMGÓÐ EINBÝLISHÚS Í NOTALEGUM SPÆNSKUM BÆ* – *GOTT VERÐ*
Falleg, rúmgóð og vel hönnuð einbýlishús á tveimur hæðum með lokuðum garði verönd út frá stofu og einkasundlaug í Benijofar, ekta spænskum bæ, um 45 mín akstur suður af Alicante. Þrjú svefnherbergi, þrjú baðherbergi, góð stofa, borðstofa og rúmgott eldhús. Stórar svalir út frá svefnherbergi á efri hæð og auk þess 48 fm. þakverönd.
Allar upplýsingar gefa:
Aðalheiður Karlsdóttir, löggiltur fasteignasali. GSM 893 2495. adalheidur@spanareignir.is,
Berta Hawkins, löggiltur fasteignasali, berta@spanareignir.is GSM 0034 615 112 869
Nánari lýsing:
Aðalhæð: Komið er inn í opið rými þar sem er stofa, borðstofa og eldhús í opnu rými. þvottahús/geymsla inn af eldhúsi. Svefnherbergi og baðherbergi. Útgengi út á verönd og sundlaugarsvæðið.
Efri hæð: Tvö svefnherbergi, bæði með sér baðherbergi. Útgengi út á svalir og einnig stigi upp á þakveröndina.
Möguleiki er að fá hús með kjallara gegn aukagjaldi.
Innbyggt kerfi fyrir loftkælingu og hitun fylgir.
Rafmagnstæki í eldhúsi fylgja og auk þess þvottavél.
Gólfhiti á baðherbergjum.
Lýsing inni og úti.
Rafdrifnar gardínur.
Tengi fyrir heitum potti á þakverönd.
Stæði fyrir bíl í lokuðum garði.
Garðurinn er hellulagður og með gervigrasi að mestu. Einkasundlaug, sem tengist vel góðri verönd út frá stofu. Þar er gott pláss t.d. til að borða úti eða njóta sólarinnar við sundlaugarbakkann.
Góðir golfvellir eru í næsta nágrenni, t.d. La Marquesa, og La Finca, glæsilegan PGA golfvöll. Einnig eru fleiri góðir golfvellir í næsta nágrenni, t.d. Las Ramblas, Campoamor, Villamartin og Las Colinas.
Ca. 10 mín akstur er niður á ströndina í Guardamar og ca. 15-20 mín. akstur í nýju verslunarmiðstöðina La Zenia Boulevard.
Aðeins örfá hús í boði.
Verð miðað við gengi 1Evra=145 ISK.
Frá 449.000 evrum (ISK 65.100.000) + 10% skattur og ca. 3% kostn. við kaupin.
Til afhendingar í jan.-mars 2026
Húsið er 136 fm. + þakverönd 48 fm. og auk þess möguleiki á 78 fm. kjallara.
Við höfum selt fasteignir á Spáni síðan 2001. Tryggir þekkingu, reynslu og öryggi.
SKOÐUNARFERÐIR:
Við aðstoðum kaupendur við að skipuleggja skoðunarferðir og tökum þátt í kostnaði vegna þeirra.
Mögulegt er að fá húsin afhent fullbúin húsgögnum gegn aukagjaldi.
Sjá nánar um fasteignakaup á Spáni á heimasíðunni okkar: www.spanareignir.is
Kostnaður við kaupin:
10% IVA (spænskur söluskattur) af kaupverði eignarinnar. Auk þess má gera ráð fyrir ca. 3% kostnaði vegna stimpilgjalda og annars kostnaðar við kaupin, þ.e. samtals getur kostnaður vegna kaupa á fasteign á Spáni því farið upp í ca. 13%.
Benijofar er skemmtilegur ekta spænskur bær á Costa Blanca svæðinu, í góðu umhverfi með sjarmerandi hefðbundnu spænsku bæjarlífi, Fiestum og götumarkaði, verslunum og veitingastöðum. Ca. 20-30 mín. akstur í suður frá Alicante flugvellinum. Ca. 10 mín. akstur á tvo góða golfvelli, La Finca og La Marquesa, og ótal fleiri góðir golfvellir eru í innan við 20 mín akstursleið frá Benijofar. Aðeins 8 km. frá fallegu ströndunum á Costa Blanca og ekki nema 2-3 mín akstur eða góður göngutúr til Ciudad Quesada og Dona Pepa, sem eru vinsælir og líflegir bæir sem iða af mannlífi allt árið.
Þetta er því staðsetningin fyrir þá sem vilja upplifa ekta spænskt umhverfi, en njóta þæginda og þjónustu nútímans.
Eiginleikar: bílastæði, þakverönd, air con, einkasundlaug, ný eign,
Svæði: Costa Blanca, Benijofar,