Upplýsingar
Verðsaga
Byggt 2021
109,2 m²
3 herb.
1 baðherb.
2 svefnh.
Þvottahús
Bílastæði
Lyfta
Lýsing
FJÁRFESTING FASTEIGNASALA ER MEÐ TIL SÖLU STÓRGLÆSILEGA 3JA HERB ÍBÚÐ Á JARÐHÆÐ MEÐ VERÖND OG STÆÐI Í BÍLGEYMSLU Í NÝLEGU FJÖLBÝLI VIÐ SKÓGARVEG 6 Í REYKJAVÍK.
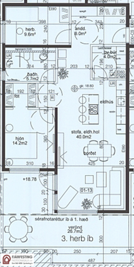
Um er að ræða glæsilega 3ja herbergja íbúð á jarðhæð ásamt stæði í bílageymslu í lyftuhúsi.
Íbúðin sjálf er 95,5 fm. að stærð og sérgeymsla í kjallara er 13,7 fm. Samtals er eignin því skráð 109,2 fm.
Íbúðin er búinn glæsilegum innréttingum, stórum flísum, gólfsíðum gluggum, glæsilegum blöndunartækjum og hita í gólfum.
Stæði í lokaðri bílageymslu fylgir.
Lyfta er í húsinu sem gengur niður í kjallara.
Uppl. hjá Óskari í síma 822-8750 (oskar@fjarfesting.is)
Nánari lýsing:
Komið er inn í anddyri með fataskáp og flísum á gólfi.
Hol með flísum á gólfi.
Hjónaherbergi með flísum á gólfi og góðu fataherbergi.
Svefnherbergi með flísum á gólfi og fataskáp.
Baðherbergi með flísum á gólfi og veggjum, sturtu með glerþili og fallegri innréttingu með glæsilegum vask.
Stofa með flísum á gólfi og útgengi út á stóra timburverönd með skjólgirðingum.
Eldhús með glæsilegri innréttingu, fallegum borðplötum, vínkæli og góðum eldhústækjum.
Þvottahús, með flísum á gólfi og innréttingu, er innaf eldhúsi.
Stæði í lokaðri bílageymslu fylgir sem er innangegnt inn í húsið.
Sérgeymsla er í kjallara
Kostnaður kaupanda vegna kaupa:
1. Stimpilgjald af kaupsamningi er 0,8% af heildarfasteignamati. 1,6% fyrir lögaðila, en 0,4% við fyrstu kaup einstaklinga. 2. Þinglýsingar af hverju skjali er 3800 kr.
3. Lántökugjald skv. verðskrá fjármálastofnunar. 4. Umsýsluþóknun sjá kauptilboð.
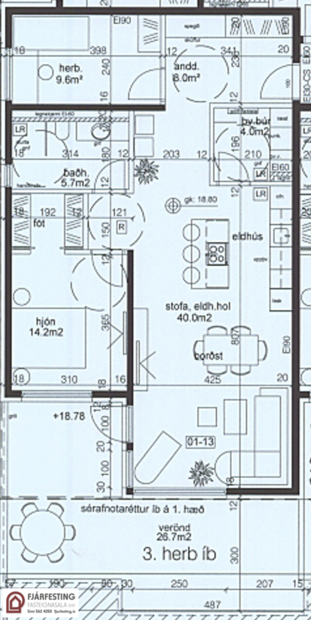
Um er að ræða glæsilega 3ja herbergja íbúð á jarðhæð ásamt stæði í bílageymslu í lyftuhúsi.
Íbúðin sjálf er 95,5 fm. að stærð og sérgeymsla í kjallara er 13,7 fm. Samtals er eignin því skráð 109,2 fm.
Íbúðin er búinn glæsilegum innréttingum, stórum flísum, gólfsíðum gluggum, glæsilegum blöndunartækjum og hita í gólfum.
Stæði í lokaðri bílageymslu fylgir.
Lyfta er í húsinu sem gengur niður í kjallara.
Uppl. hjá Óskari í síma 822-8750 (oskar@fjarfesting.is)
Nánari lýsing:
Komið er inn í anddyri með fataskáp og flísum á gólfi.
Hol með flísum á gólfi.
Hjónaherbergi með flísum á gólfi og góðu fataherbergi.
Svefnherbergi með flísum á gólfi og fataskáp.
Baðherbergi með flísum á gólfi og veggjum, sturtu með glerþili og fallegri innréttingu með glæsilegum vask.
Stofa með flísum á gólfi og útgengi út á stóra timburverönd með skjólgirðingum.
Eldhús með glæsilegri innréttingu, fallegum borðplötum, vínkæli og góðum eldhústækjum.
Þvottahús, með flísum á gólfi og innréttingu, er innaf eldhúsi.
Stæði í lokaðri bílageymslu fylgir sem er innangegnt inn í húsið.
Sérgeymsla er í kjallara
Kostnaður kaupanda vegna kaupa:
1. Stimpilgjald af kaupsamningi er 0,8% af heildarfasteignamati. 1,6% fyrir lögaðila, en 0,4% við fyrstu kaup einstaklinga. 2. Þinglýsingar af hverju skjali er 3800 kr.
3. Lántökugjald skv. verðskrá fjármálastofnunar. 4. Umsýsluþóknun sjá kauptilboð.
Ár
Fasteignamat
Kaupverð
Stærð
Fermetraverð
23. jún. 2023
78.350.000 kr.
91.500.000 kr.
109.2 m²
837.912 kr.
26. feb. 2021
28.300.000 kr.
67.200.000 kr.
108.9 m²
617.080 kr.
Byggt á upplýsingum úr Þjóðskrá Íslands frá 2006-2026