Löggiltir fasteignasalar innan Félags fasteignasala:
Ástþór Reynir Guðmundsson
Vigdís R. S. Helgadóttir
Guðbjörg Helga Jóhannesdóttir
Gylfi Jens Gylfason
Sigrún Matthea Sigvaldadóttir
Sveinn Gíslason
Páll Guðmundsson
Þórarinn Arnar Sævarsson
Berglind Hólm Birgisdóttir
Þorsteinn Gíslason
Guðrún Lilja Tryggvadóttir
Brynjar Ingólfsson
Guðný Þorsteinsdóttir
Bjarni Blöndal
Þorsteinn Ólafs
Þórdís Björk Davíðsdóttir
Jóhann Kristinn Jóhannesson
Bjarný Björg Arnórsdóttir
Salvör Þóra Davíðsdóttir
Magga Sigríður Gísladóttir
Upplýsingar
Verðsaga
Byggt 2006
190,9 m²
5 herb.
2 baðherb.
4 svefnh.
Þvottahús
Bílskúr
Sameiginl. inngangur
Lyfta
Lýsing
Guðmundur Þór Júlíusson og Ástþór Reynir löggiltir fasteignasalar hjá RE/MAX fasteignasölu kynna í einkasölu:
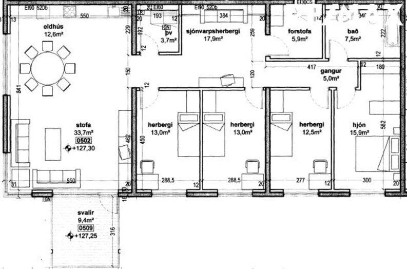
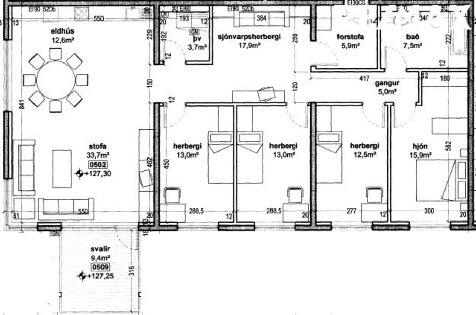
Falleg og björt fimm herbergja íbúð í Ásakór 3, 203 Kópavogi. Eignin er samtals 190,9 fm og þar af 19,6fm bílskúr. Eignin er vel skipulögð og telur fjögur svefnherbergi, stofu og eldhús í opnu rými, tvö[HG1] baðherbergi, þvottaherbergi, geymslu, hjóla- og vagnageymsla. Rúmgóðar svalir til suðurs.
Bókið skoðun hjá Ástþór Reyni í síma 899-6753 eða með tölvupósti á netfangið arg@remax.is eða hjá Gumma Júl í síma 858-7410 eða með tölvupósti á netfangið gj@remax.is
Nánari lýsing:
Forstofa: Snyrtileg forstofa, rúmgóður fataskápur sem nær upp í loft og flísar á gólfi.
Svefnherbergi I: Fataskápur sem nær upp í loft og ljóst viðarparket á gólfi. Fallegt útsýni til suðurs.
Svefnherbergi II: Rúmgott herbergi, fataskápur sem nær upp í loft og ljóst viðarparket á gólfi. Fallegt útsýni til suðurs.
Svefnherbergi III: Rúmgott herbergi, fataskápur sem nær upp í loft og ljóst viðarparket á gólfi. Fallegt útsýni til suðurs.
Eldhús: Vel skipulagt eldhús með eyju, innrétting með efri skápum sem ná upp í loft og borðplata úr svörtu graníti. Flísar á gólfi. Fallegt útsýni til vesturs.
Stofa/borðstofa: Björt og rúmgóð með ljósu viðarparketi á gólfi. Fallegt útsýni til suðurs og vesturs.
Svalir: Útgengt á stórar svalir úr stofu.
Svefnherbergi IV: Rúmgott hjónaherbergi með góðum fataskápum sem ná upp í loft, ljóst viðarparket á gólfi.
Gestasalerni & Þvottaherbergi: Tengi fyrir þvottavél og þurrkara, vinnuvaskur og flísar á gólfi, upphengt WC.
Baðherbergi: Falleg viðar innrétting, upphengt wc, , sturta og baðkar. Flísar í hólf og gólf.
Geymsla: 12,2 fm. geymsla inn af bílskúr.
Sameign: Sameiginleg hjóla- og vagnageymsla. Sameign er öll sú snyrtilegasta og búið að koma fyrir hleðslustöðvum á bílastæði.
Húsfélagið er hjá Eignaumsjón og er í góðum rekstri.
Eignin er óvenju rúmgóð, vönduð, björt og opin með stórum svefnherbergjum og stórkostlegu útsýni.
Stutt er í skóla, sund og íþróttastarf auk vinsælla útivistarsvæða t.d. við Guðmundarlund og Elliðavatn.
Allar nánari upplýsingar um eignina veitir:
Guðmundur Þór Júlíusson löggiltur fasteignasali í síma 858-7410 eða gj@remax.is
Ástþór Reynir löggiltur fasteignasali í síma 899-6753 eða arg@remax.is
Gjöld sem kaupandi þarf að standa straum af vegna kaupanna:
1. Stimpilgjald af kaupsamningi - 0,8%(einstaklingar) 1.6% (lögaðilar) af heildarfasteignamati.
2. Þinglýsingargjald af kaupsamningi, veðskuldabréfi, mögulegu veðleyfi o.fl. - kr. 2.700 af hverju skjali.
3. Lántökugjald lánastofnunar - almennt 45-75 þús.kr. Nánari upplýsingar á heimasíðu lánastofnana.
4. Umsýslugjald til fasteignasölu kr. 69.900 mvsk.
Falleg og björt fimm herbergja íbúð í Ásakór 3, 203 Kópavogi. Eignin er samtals 190,9 fm og þar af 19,6fm bílskúr. Eignin er vel skipulögð og telur fjögur svefnherbergi, stofu og eldhús í opnu rými, tvö[HG1] baðherbergi, þvottaherbergi, geymslu, hjóla- og vagnageymsla. Rúmgóðar svalir til suðurs.
Bókið skoðun hjá Ástþór Reyni í síma 899-6753 eða með tölvupósti á netfangið arg@remax.is eða hjá Gumma Júl í síma 858-7410 eða með tölvupósti á netfangið gj@remax.is
Nánari lýsing:
Forstofa: Snyrtileg forstofa, rúmgóður fataskápur sem nær upp í loft og flísar á gólfi.
Svefnherbergi I: Fataskápur sem nær upp í loft og ljóst viðarparket á gólfi. Fallegt útsýni til suðurs.
Svefnherbergi II: Rúmgott herbergi, fataskápur sem nær upp í loft og ljóst viðarparket á gólfi. Fallegt útsýni til suðurs.
Svefnherbergi III: Rúmgott herbergi, fataskápur sem nær upp í loft og ljóst viðarparket á gólfi. Fallegt útsýni til suðurs.
Eldhús: Vel skipulagt eldhús með eyju, innrétting með efri skápum sem ná upp í loft og borðplata úr svörtu graníti. Flísar á gólfi. Fallegt útsýni til vesturs.
Stofa/borðstofa: Björt og rúmgóð með ljósu viðarparketi á gólfi. Fallegt útsýni til suðurs og vesturs.
Svalir: Útgengt á stórar svalir úr stofu.
Svefnherbergi IV: Rúmgott hjónaherbergi með góðum fataskápum sem ná upp í loft, ljóst viðarparket á gólfi.
Gestasalerni & Þvottaherbergi: Tengi fyrir þvottavél og þurrkara, vinnuvaskur og flísar á gólfi, upphengt WC.
Baðherbergi: Falleg viðar innrétting, upphengt wc, , sturta og baðkar. Flísar í hólf og gólf.
Geymsla: 12,2 fm. geymsla inn af bílskúr.
Sameign: Sameiginleg hjóla- og vagnageymsla. Sameign er öll sú snyrtilegasta og búið að koma fyrir hleðslustöðvum á bílastæði.
Húsfélagið er hjá Eignaumsjón og er í góðum rekstri.
Eignin er óvenju rúmgóð, vönduð, björt og opin með stórum svefnherbergjum og stórkostlegu útsýni.
Stutt er í skóla, sund og íþróttastarf auk vinsælla útivistarsvæða t.d. við Guðmundarlund og Elliðavatn.
Allar nánari upplýsingar um eignina veitir:
Guðmundur Þór Júlíusson löggiltur fasteignasali í síma 858-7410 eða gj@remax.is
Ástþór Reynir löggiltur fasteignasali í síma 899-6753 eða arg@remax.is
Gjöld sem kaupandi þarf að standa straum af vegna kaupanna:
1. Stimpilgjald af kaupsamningi - 0,8%(einstaklingar) 1.6% (lögaðilar) af heildarfasteignamati.
2. Þinglýsingargjald af kaupsamningi, veðskuldabréfi, mögulegu veðleyfi o.fl. - kr. 2.700 af hverju skjali.
3. Lántökugjald lánastofnunar - almennt 45-75 þús.kr. Nánari upplýsingar á heimasíðu lánastofnana.
4. Umsýslugjald til fasteignasölu kr. 69.900 mvsk.
Ár
Fasteignamat
Kaupverð
Stærð
Fermetraverð
11. maí. 2022
72.900.000 kr.
99.900.000 kr.
190.9 m²
523.311 kr.
18. maí. 2012
31.000.000 kr.
41.700.000 kr.
190.9 m²
218.439 kr.
6. sep. 2007
32.420.000 kr.
38.700.000 kr.
190.9 m²
202.724 kr.
Byggt á upplýsingum úr Þjóðskrá Íslands frá 2006-2026