Upplýsingar
Byggt 1972
93,9 m²
4 herb.
1 baðherb.
3 svefnh.
Sameiginl. inngangur
Lýsing
Betri Stofan og Jason Kristinn fasteignasali í síma 7751515, jason@betristofan.is kynna: Efstihjalli 7 efsta hæð í húsi sem hefur verið skipt um glugga, dren og fleira. Snyrtileg 4ra herbergja íbúð á frábærum stað í grónu hverfi í Kópavogi. Suðursvalir. Eignin er skráð 93,9 fm og er vel skipulögð. Eignin skiptist í anddyri, hol, eldhús, baðherbergi, 3 svefnherbergi, borðstofu, stofu og sér geymslu. Að utan hefur húseignin fengið mikla endurnýjun. Rennur og þakjárn, glugga hafa verið endurnýjaðir, vatnslangir og dren, einnig var húsið múrgert og málað. Aðeins 5 mínútna gangur í leikskóla.
Lýsing:
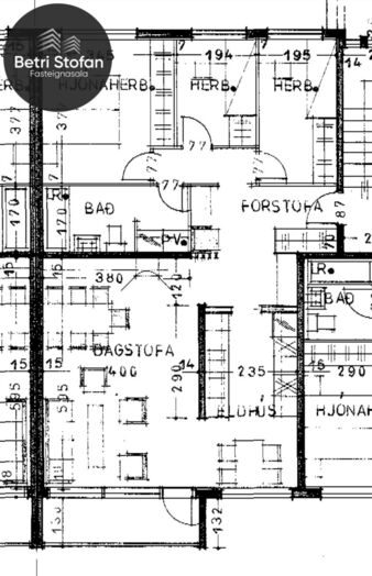
Gengið er inn í rúmgott flísalagt anddyri/hol sem tengir saman eignina. Á vinstri hönd er eldhús og stofa og hægra megin svefnherbergi og baðherbergi. Útsýni til Esju.
Stofa er rúmgóð með nýpússuðu parket á gólfi og útgengt út á rúmgóðar suðursvalir.
Eldhús er með hvítri innréttingu og góðu skápaplássi. Við enda þess er borðkrókur. Pláss fyrir uppþvottavél eða þvottavél.
Baðherbergi er flísalagt í hólf og gólf með eldri flísum. Baðkar. Þvottaaðstaða er inná baðherbergi og einnig í kjallara.
Hjónaherbergi 1 er með rúmgóðum fataskápum. Parketdúkur á gólfum herbergja.
Svefnherbergi 2 er með fataskáp.
Svefnherbergi 3 er minnsta herbergið á milli hinna tveggja.
Geymsla er í kjallara sem er skráð 6,8 fm.
Í kjallara er einnig þvottahús, hjólageymsla og vagnageymsla.
Staðsetning eignarinnar er góð og stutt er í skóla, verslanir og þjónustu.
Sunnan megin við húsið er sameiginlegur garður og fjöldi bílastæða fyrir framan hús.
Nánari upplýsingar: Jason Kristinn Ólafsson s. 775 1515 löggiltur fasteignasali, jason@betristofan.is og
Guðbjörg Guðmundsdóttir s.899 5533 löggiltur fasteignasali, gudbjorg@betristofan.is
Lýsing:
Gengið er inn í rúmgott flísalagt anddyri/hol sem tengir saman eignina. Á vinstri hönd er eldhús og stofa og hægra megin svefnherbergi og baðherbergi. Útsýni til Esju.
Stofa er rúmgóð með nýpússuðu parket á gólfi og útgengt út á rúmgóðar suðursvalir.
Eldhús er með hvítri innréttingu og góðu skápaplássi. Við enda þess er borðkrókur. Pláss fyrir uppþvottavél eða þvottavél.
Baðherbergi er flísalagt í hólf og gólf með eldri flísum. Baðkar. Þvottaaðstaða er inná baðherbergi og einnig í kjallara.
Hjónaherbergi 1 er með rúmgóðum fataskápum. Parketdúkur á gólfum herbergja.
Svefnherbergi 2 er með fataskáp.
Svefnherbergi 3 er minnsta herbergið á milli hinna tveggja.
Geymsla er í kjallara sem er skráð 6,8 fm.
Í kjallara er einnig þvottahús, hjólageymsla og vagnageymsla.
Staðsetning eignarinnar er góð og stutt er í skóla, verslanir og þjónustu.
Sunnan megin við húsið er sameiginlegur garður og fjöldi bílastæða fyrir framan hús.
Nánari upplýsingar: Jason Kristinn Ólafsson s. 775 1515 löggiltur fasteignasali, jason@betristofan.is og
Guðbjörg Guðmundsdóttir s.899 5533 löggiltur fasteignasali, gudbjorg@betristofan.is
Gjöld sem kaupandi þarf að standa straum af ef að kaupum verður:
1. Stimpilgjald af fasteignamati fasteignar er 0.8%, en 0,4% fyrir fyrstu kaup og 1,6% fyrir lögaðila.
2. Þinglýsingargjald: kaupsamningi, skuldabréfi, veðleyfi, afsali o.s.frv. er kr. 3.800 af hverju skjali.
3. Lántökukostnaður samkvæmt verðskrá viðkomandi lánastofnunar.
4. Umsýslugjald til fasteignasölu skv. gjaldskrá.
Skoðunarskylda kaupanda:
Í lögum um fasteignakaup nr. 40/2002 er kveðið á um ríka skoðunarskyldu kaupenda á fasteignum. Betri Stofan fasteignasala bendir væntanlegum kaupendum á að kynna sér vel ástand fasteigna við skoðun og fyrir tilboðsgerð og ef þurfa þykir að leita til sérfræðinga um nánari ástandsskoðun.