Upplýsingar
Verðsaga
Byggt 2019
64,4 m²
2 herb.
1 baðherb.
1 svefnh.
Sérinngangur
Opið hús: 1. mars 2026
kl. 12:30
til 13:00
OPIÐ HÚS: Skyggnisholt 6, 2ja herbergja íbúð í 6 íbúða fjölbýli. Eignin verður sýnd sunnudaginn 1. mars 2026 milli kl. 12:30 og kl. 13:00.
Lýsing
VALBORG fasteignasla kynnir í einkasölu Skyggnisholt 6, 190 Vogum, nánar tiltekið eign merkt 0102, fastanúmer 250-4654 ásamt öllu því sem eigninni fylgir, þar með talið tilheyrandi lóðar og sameignarréttindi.
Frábær fyrstu kaup.
** Fasteignamat eignarinnar er kr. 45.750.000. **
Nánari upplýsingar veita:
Þyrí Guðjónsdóttir, viðskfr. og lögg. fasteignasali, í síma 891 9867, tölvupóstur thyri@valborgfs.is.
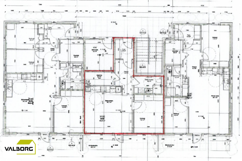
Eignin er á jarðhæð í sex íbúða húsi, allar með sérinngangi.
Íbúðin telur forstofu, eldhús, stofu/borðstofu, svefnherbergi, baðherbergi og geymslu.
Geymsla er innan íbúðar. Einnig er sameiginleg hjóla- og vagnageymsla.
Sérinngangur er í eignina og gæludýr eru leyfð.
Hleðslustaur fyrir rafmagnsbíl er við bílastæðið.
Sjá staðsetningu hér:
Lýsing eignar:
Forstofa: Er flísalögð, þar er tvöfaldur fataskápur.
Eldhús: Efri og neðri skápar, bakarofn í vinnuhæð og pláss fyrir uppþvottavél og ísskáp.
Stofa/borðstofa: Frá stofu er útgengt út á hellulagða verönd sem snýr til suðurs. Lítið mál að girða sérafnotaflötinn af en búið er að setja upp girðingar beggja vegna við hann.
Svefnherbergi: Rúmgott með stórum fataskáp, parket á gólfi,
Baðherbergi: Flísalagt baðherbergi með "walk-in" sturtu, innrétting með handlaug og skúffum, upphengt wc, handklæðaofn og innrétting fyrir þvottavél og þurrkara.
Geymsla: Er gluggalaus, staðsett innan íbúðar.
Góðar innréttingar og parket frá Parka.
Hjóla- og vagnageymsla er sameiginleg en inngangur í hana er við hlið inngangs íbúðarinnar.
Húsið er staðsteypt, klætt að utan með liggjandi báru og gluggar eru ál/tré.
Fjarðarmót ehf. er byggingaraðili eignarinnar.
Eignin Skyggnisholt 6 er skráð sem hér segir hjá HMS: Eign 250-4654, birt stærð 64,40 m².
Sveitafélagið Vogar er ört stækkandi sveitafélag, miðsvæðis á Reykjanesinu.
Þar er grunn-og leikskóli, sundlaug, líkamsrækt og útivistarmöguleikarnir eru óteljandi.
Gjaldfrjálst er í sundlaugina fyrir íbúa sveitafélagsins.
Til Reykjanesbæjar er 12 mín. akstur.
Til Hafnarfjarðar er 17 mín. akstur.
Aðrar eignir sem við seljum má sjá hér.
Forsendur söluyfirlits:
Söluyfirlit er samið af fasteignasala í samræmi við ákvæði laga nr. 70/2015. Þær upplýsingar sem fram koma í söluyfirliti þessu eru sóttar í opinberar skrár, til seljanda sjálfs og eftir atvikum til húsfélags. Seljandi veitir upplýsingar um eign í samræmi við upplýsingaskyldu laga um fasteignakaup nr. 40/2002. Fasteignasali sannreynir að þær upplýsingar séu réttar með sjónskoðun á eigninni. Fasteignasali getur ekki fullyrt um ástand og eiginleika þeirra hluta fasteigna sem ekki eru aðgengilegir og sjást ekki berum augum, t.d. lagnir, dren, skólp og þak.
Um skoðunar- og aðgæsluskyldu:
Í lögum um fasteignakaup nr. 40/2002 er kveðið á um ríka skoðunarskyldu kaupenda á fasteignum. Valborg ehf. fasteignasala bendir væntanlegum kaupendum á að kynna sér vel ástand fasteigna við skoðun og fyrir tilboðsgerð og ef þurfa þykir að leita til sérfræðinga um nánari ástandsskoðun.
Gjöld sem kaupandi þarf að standa straum af vegna kaupanna:
1. Stimpilgjald af kaupsamningi sem er hlutfall af fasteignamati. Stimpilgjald er 0,8% fyrir einstaklinga (0,4% við fyrstu kaup) og 1,6% fyrir lögaðila.
2. Þinglýsingargjald af kaupsamningi, veðskuldabréfum, veðleyfum o.fl. Þinglýsingargjald er kr. 3.800,- fyrir hvert skjal.
3. Lántökugjald lánastofnunar. Um lántökugjald vísast í gjaldskrá viðkomandi lánveitanda.
4. Umsýsluþóknun fasteignasölu skv. gjaldskrá.
5. Ef um nýbyggingu er að ræða greiðir kaupandi skipulagsgjald, 0,3% af brunabótamáti, þegar það er lagt á.
Frábær fyrstu kaup.
** Fasteignamat eignarinnar er kr. 45.750.000. **
Nánari upplýsingar veita:
Þyrí Guðjónsdóttir, viðskfr. og lögg. fasteignasali, í síma 891 9867, tölvupóstur thyri@valborgfs.is.
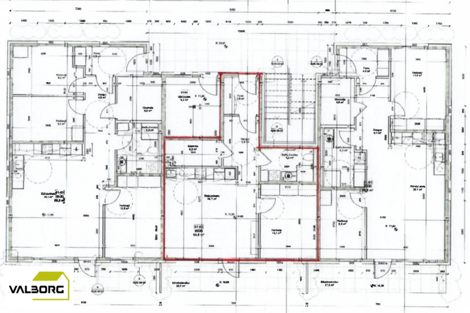
Eignin er á jarðhæð í sex íbúða húsi, allar með sérinngangi.
Íbúðin telur forstofu, eldhús, stofu/borðstofu, svefnherbergi, baðherbergi og geymslu.
Geymsla er innan íbúðar. Einnig er sameiginleg hjóla- og vagnageymsla.
Sérinngangur er í eignina og gæludýr eru leyfð.
Hleðslustaur fyrir rafmagnsbíl er við bílastæðið.
Sjá staðsetningu hér:
Lýsing eignar:
Forstofa: Er flísalögð, þar er tvöfaldur fataskápur.
Eldhús: Efri og neðri skápar, bakarofn í vinnuhæð og pláss fyrir uppþvottavél og ísskáp.
Stofa/borðstofa: Frá stofu er útgengt út á hellulagða verönd sem snýr til suðurs. Lítið mál að girða sérafnotaflötinn af en búið er að setja upp girðingar beggja vegna við hann.
Svefnherbergi: Rúmgott með stórum fataskáp, parket á gólfi,
Baðherbergi: Flísalagt baðherbergi með "walk-in" sturtu, innrétting með handlaug og skúffum, upphengt wc, handklæðaofn og innrétting fyrir þvottavél og þurrkara.
Geymsla: Er gluggalaus, staðsett innan íbúðar.
Góðar innréttingar og parket frá Parka.
Hjóla- og vagnageymsla er sameiginleg en inngangur í hana er við hlið inngangs íbúðarinnar.
Húsið er staðsteypt, klætt að utan með liggjandi báru og gluggar eru ál/tré.
Fjarðarmót ehf. er byggingaraðili eignarinnar.
Eignin Skyggnisholt 6 er skráð sem hér segir hjá HMS: Eign 250-4654, birt stærð 64,40 m².
Sveitafélagið Vogar er ört stækkandi sveitafélag, miðsvæðis á Reykjanesinu.
Þar er grunn-og leikskóli, sundlaug, líkamsrækt og útivistarmöguleikarnir eru óteljandi.
Gjaldfrjálst er í sundlaugina fyrir íbúa sveitafélagsins.
Til Reykjanesbæjar er 12 mín. akstur.
Til Hafnarfjarðar er 17 mín. akstur.
Aðrar eignir sem við seljum má sjá hér.
Forsendur söluyfirlits:
Söluyfirlit er samið af fasteignasala í samræmi við ákvæði laga nr. 70/2015. Þær upplýsingar sem fram koma í söluyfirliti þessu eru sóttar í opinberar skrár, til seljanda sjálfs og eftir atvikum til húsfélags. Seljandi veitir upplýsingar um eign í samræmi við upplýsingaskyldu laga um fasteignakaup nr. 40/2002. Fasteignasali sannreynir að þær upplýsingar séu réttar með sjónskoðun á eigninni. Fasteignasali getur ekki fullyrt um ástand og eiginleika þeirra hluta fasteigna sem ekki eru aðgengilegir og sjást ekki berum augum, t.d. lagnir, dren, skólp og þak.
Um skoðunar- og aðgæsluskyldu:
Í lögum um fasteignakaup nr. 40/2002 er kveðið á um ríka skoðunarskyldu kaupenda á fasteignum. Valborg ehf. fasteignasala bendir væntanlegum kaupendum á að kynna sér vel ástand fasteigna við skoðun og fyrir tilboðsgerð og ef þurfa þykir að leita til sérfræðinga um nánari ástandsskoðun.
Gjöld sem kaupandi þarf að standa straum af vegna kaupanna:
1. Stimpilgjald af kaupsamningi sem er hlutfall af fasteignamati. Stimpilgjald er 0,8% fyrir einstaklinga (0,4% við fyrstu kaup) og 1,6% fyrir lögaðila.
2. Þinglýsingargjald af kaupsamningi, veðskuldabréfum, veðleyfum o.fl. Þinglýsingargjald er kr. 3.800,- fyrir hvert skjal.
3. Lántökugjald lánastofnunar. Um lántökugjald vísast í gjaldskrá viðkomandi lánveitanda.
4. Umsýsluþóknun fasteignasölu skv. gjaldskrá.
5. Ef um nýbyggingu er að ræða greiðir kaupandi skipulagsgjald, 0,3% af brunabótamáti, þegar það er lagt á.
Ár
Fasteignamat
Kaupverð
Stærð
Fermetraverð
13. okt. 2020
24.700.000 kr.
29.500.000 kr.
64.4 m²
458.075 kr.
Byggt á upplýsingum úr Þjóðskrá Íslands frá 2006-2026