Löggiltir fasteignasalar innan Félags fasteignasala:
Sigurður Fannar Guðmundsson
Jens Magnús Jakobsson
Sveinbjörn Rosen Guðlaugsson
Vista
fjölbýlishús

Marteinslaug 7

113 Reykjavík

94.900.000 kr.

733.952 þ.kr./m2
Fasteignanúmer

F2269918

Fasteignamat

88.800.000 kr.

Brunabótamat

78.390.000 kr.

Áhvílandi

0 kr.

Arion banki – Reikna lán
Upplýsingar
Verðsaga
svg
Byggt 2006
svg
129,3 m²
svg
4 herb.
svg
1 baðherb.
svg
3 svefnh.
svg
Þvottahús
svg
Sameiginl. inngangur
svg
Bílastæði
svg
Lyfta

Lýsing

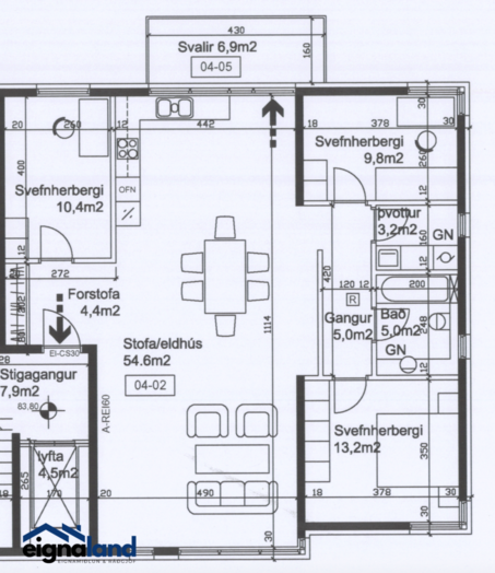
Sigurður Fannar og Eignaland kynna í einkasölu: Fallega og vel skipulagða 4. herbergja endaíbúð á 4.hæð (efstu hæð) með glæsilegu útsýni. Íbúðinni fylgir stæði í lokaðri bílageymslu. Stærð íbúðar er 129,3 fm þar af 8,4 fm. Einungis eru 6 íbúðir í húsinu (stigagangi) Tvær á hverri hæð.

ATH - Eignin er laus við kaupsamning.


Áhugasamir geta bókað skoðun hjá Sigurði Fannari í síma 897-5930 eða siggifannar@eignaland.is 

✅ Efsta hæð
✅ Glæsilegt útsýni
✅ Stæði í bílakjallara
✅ 3 svefnherbergi

Nánari lýsing:
Anddyri: Flísar á gólfi, fataskápur
Herbergi: (10,4) Parket á gólfi, fataskápur. 
Eldhús: Flísar á gólfi. Góð eikarinnrétting með fínu skápaplássi. Úr eldhúsi er útgengt á suðursvalir.
Stofa: Parket á gólfi, opin og björt með stórum gluggum og glæsilegu útsýni.
Borðstofa: Borðstofan er í alrými með stofu og eldhúsi. 
Herbergi: (9,8) Parket á gólfi, fataskápur.
Þvottahús: Innan íbúðar, flísar á gólfi, borðpláss, skolvaskur, hillur, tengi fyrir þvottavél og þurrkara, gluggi. 
Baðherbergi: Snyrtilegt baðherbergi, flíslegt á gólfi og veggjum. Eikarinnrétting, upphengt wc. Baðkar með sturtuaðstöðu.
Hjónaherbergi: (13,2) Parket á gólfi, gott skápapláss. 
Sér geymsla og sameiginleg vagna- og hjólageymsla er á jarðhæð hússins.
Bílastæði er í lokuðu bílastæðahúsi.  

Staðsetning eignarinnar er góð og hverfið er vinsælt.
Stutt er í góðar gönguleiðir, íþróttasvæði Fram í Úlfarsárdal, golfvelli, skóla og leikskóla.


Áhugasamir geta bókað skoðun hjá Sigurði Fannari í síma 897-5930 eða siggifannar@eignaland.is 


 



Um skoðunar- og aðgæsluskyldu:
Í lögum um fasteignakaup nr. 40/2002 er kveðið á um ríka skoðunarskyldu kaupenda á fasteignum. Eignaland fasteignasla bendir væntanlegum kaupendum á að kynna sér vel ástand fasteigna við skoðun og fyrir tilboðsgerð og ef þurfa þykir að leita til sérfræðinga um nánari ástandsskoðun.

Forsendur söluyfirlits:
Söluyfirlit er samið af fasteignasala í samræmi við ákvæði laga nr. 70/2015. Þær upplýsingar sem fram koma í söluyfirliti þessu eru sóttar í opinberar skrár, til seljanda sjálfs og eftir atvikum til húsfélags. Seljandi veitir upplýsingar um eign í samræmi við upplýsingaskyldu laga um fasteignakaup nr. 40/2002. Fasteignasali sannreynir að þær upplýsingar séu réttar með sjónskoðun á eigninni.
Fasteignasali getur ekki fullyrt um ástand og eiginleika þeirra hluta fasteigna sem ekki eru aðgengilegir og sjást ekki berum augum, t.d. lagnir, dren, skólp og þak.

Gjöld sem kaupandi þarf að standa straum af vegna kaupanna:
1.Stimpilgjald af kaupsamningi sem er hlutfall af fasteignamati. Stimpilgjald er 0,8% fyrir einstaklinga (0,4% við fyrstu kaup) og 1,6% fyrir lögaðila.
2. Þinglýsingargjald af kaupsamningi, veðskuldabréfum, veðleyfum o.fl. Þinglýsingargjald er kr. 2.700,- fyrir hvert skjal.
3. Lántökugjald lánastofnunar. Um lántökugjald vísast í gjaldskrá viðkomandi lánveitanda.
4. Umsýslugjald kaupanda samkvæmt gjaldskrá.
5. Þegar um nýbyggingu er að ræða greiðir kaupandi skipulagsgjald, 0,3% af endanlegu brunabótamáti, þegar það er lagt á.

img
Sigurður Fannar Guðmundsson
Lögg.fasteignasali innan félags fasteignasala
Eignaland
Hlíðasmári 2, 201 Kópavogi - Eyrarvegur 37, 800 Selfossi
Eignaland

Eignaland

Hlíðasmári 2, 201 Kópavogi - Eyrarvegur 37, 800 Selfossi
phone
img

Sigurður Fannar Guðmundsson

Hlíðasmári 2, 201 Kópavogi - Eyrarvegur 37, 800 Selfossi
Ár
Fasteignamat
Kaupverð
Stærð
Fermetraverð
9. okt. 2014
29.350.000 kr.
37.700.000 kr.
129.3 m²
291.570 kr.
6. sep. 2007
28.985.000 kr.
33.900.000 kr.
129.3 m²
262.181 kr.
Byggt á upplýsingum úr Þjóðskrá Íslands frá 2006-2026
Eignaland

Eignaland

Hlíðasmári 2, 201 Kópavogi - Eyrarvegur 37, 800 Selfossi
phone

Sigurður Fannar Guðmundsson

Hlíðasmári 2, 201 Kópavogi - Eyrarvegur 37, 800 Selfossi