Löggiltir fasteignasalar innan Félags fasteignasala:
Óskar Rúnar Harðarson
Jason Guðmundsson
Þröstur Þórhallsson
Ólafur Finnbogason
Kjartan Ísak Guðmundsson
Gústaf Adolf Björnsson
Viðar Böðvarsson
Rakel Viðarsdóttir
Ragnheiður Pétursdóttir
Böðvar Þ. Eggertsson
Vista
fjölbýlishús

Núpalind 8

201 Kópavogur

99.900.000 kr.

674.544 þ.kr./m2
Fasteignanúmer

F2234972

Fasteignamat

95.650.000 kr.

Brunabótamat

73.030.000 kr.

Áhvílandi

0 kr.

Arion banki – Reikna lán
Upplýsingar
svg
Byggt 1999
svg
148,1 m²
svg
3 herb.
svg
1 baðherb.
svg
2 svefnh.
svg
Bílskúr
svg
Sameiginl. inngangur
svg
Bílastæði
svg
Lyfta

Lýsing

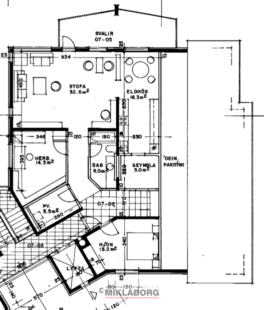
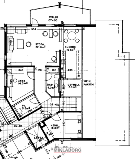
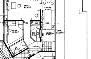
Miklaborg kynnir: Falleg og vel skipulögð þriggja herbergja 120 fm útsýnisíbúð á 7. hæð (efstu) í viðhaldslitlu fjölbýli í Núpalind í Kópavogi. Íbúðin er skráð 120 fm en auk þess fylgja íbúðinni tvö stæði í bílageymslu sem eru samtals 28 fm. Alls er eignin skráð 148,1 fm. Á hæðinni eru aðeins tvær íbúðir. Eignin skptist í forstofu, tvö svefnherbergi, eldhús, þvottahús, baðherbergi, stofu,borðstofu, yfirbyggðar svalir, búr og tvö stæði í bílastæðahúsi. Eignin getur verið laus fljótlega eftir kaupsamning.


Nánari upplýsingar veitir Óskar Sæmann í síma 6912312 eða osa@miklaborg.is

Núpalind 8 er staðsteypt steinhús byggt árið 1999 með einum stigagangi með lyftu, einangrað að utan og klætt með plötuklæðningu. Gluggar eru álklæddir timburgluggar með þreföldu einangrunargleri. Örstutt er í Lindaskóla, leikskóla, verslanir og göngu- og hjólaleiðir.

Íbúð 702 Nánari lýsing

Forstofa er rúmgóð með góðum skápum. Svefnherbergin eru tvö, bæði björt, með parketi á gólfum og góðum skápum. Stofa er björt og rúmgóð með stórum gluggum og miklu útsýni til suð-vesturs, útgengi út á stórar yfirbyggðar svalir sem snúa í suð-vestur. Borðstofa og stofa eru í opnu alrými. Eldhús er snyrtilegt og rúmgott með góðri innréttingu með ofni í vinnuhæð, helluborði, háf og plássi fyrir ísskáp og uppþvottavél. Búr er inn af eldhúsi. Sér þvottahús er innan íbúðar með skáp og skolvask og plássi fyrir þvottavél og þurrkara. Baðherbergi með flísum á gólfi og veggjum, sturtuklefa, salerni og innréttingu. Parket er á öllum gólfum nema á baðherbergi, þvottahúsi og forstofu, en þau rými eru öll flísalögð. Innréttingar og skápar eru upprunaleg en í góðu ástandi. Íbúðinni fylgja tvö bílastæði í lokuðu bílastæðahúsi.

Stigagangur og önnur sameign er sérlega snyrtileg. Á jarðhæð er sameiginleg hjóla- og vagnageymsla.



Nánari upplýsingar veitir

Óskar Sæmann Axelsson Löggiltur fasteignasali í síma 691-2312 eða osa@miklaborg.is

Miklaborg fasteignasala

Miklaborg fasteignasala

Lágmúli 4, 108 Reykjavík
Miklaborg fasteignasala

Miklaborg fasteignasala

Lágmúli 4, 108 Reykjavík