Upplýsingar
Verðsaga
Byggt 2020
110 m²
4 herb.
1 baðherb.
3 svefnh.
Þvottahús
Sameiginl. inngangur
Hjólastólaaðgengi
Bílastæði
Lyfta
Lýsing
Betri Stofan Fasteignasala Hreiðar Levý og Guðbjörg lögg. fasteignasalar kynna fallega, vel skipulagða og bjarta 4ja herbergja, 110fm endaíbúð á jarðhæð með tveimur sérafnotareitum ásamt sérmerktu bílastæði í lokuðum upphituðum bílakjallara í nýlegu lyftuhúsi að Lágaleiti 11, 103 Reykjavík. Húsið er byggt árið 2020 og er teiknað af Arkþing Nordic arkitektastofu. Burðarvirki húsanna er staðsteypt og eru útveggir einangraðir með steinull að utan. Húsið klætt með sléttri álklæðningu. Fallegur og snyrtilegur inngarður með leiksvæði, göngustígum ásamt opinni hjóla og vagnageymslu. Gangstígar eru með snjóbræðslu ásamt svæðum við innganga.
Íbúðin er afar björt og rúmgóð með stórum fallegum gólfsíðum gluggum, gólfhita og aukinni lofthæð. Skipulag er mjög gott á íbúðinni með góðu flæði milli eldhúss og stofu, 3 rúmgóðum svefnherbergi, góðu anddyri með skápum, baðherbergi ásamt sér þvottaherbergi með opnanlegum glugga. Gengið er út á sérafnotafleti eignar annarsvegar úr stofu og hinsvegar úr hjónaherbergi. Sérgeymsla er í kjallara ásamt sameiginlegri hjóla og vagnageymslu. Sérmerkt bílastæði í bílakjallara er mjög vel staðsett. Búið að leggja fyrir rafmagni til að setja upp rafmagnshleðslustöð. Möguleiki er að stækka stofu á kostnað svefnherbergis innaf stofu, léttur hlaðin veggur.
Bókið skoðun hjá Hreiðari Levý, lögg. fasteignasala í síma 661-6021, hreidar@betristofan.is
Fasteignamat eignar verður 93.350.000kr árið 2026 skv. HMS.
Staðsetning:
Efstaleitið er í sannkölluðu miðborgarhverfi í göngufæri við helstu verslunar- og þjónustukjarna borgarinnar og falleg útivistarsvæði. Garðurinn er gróðursæll og skjólsæll með reiðhjólaskýlum, leiksvæði og hreyfistöð. Veitingastaðurinn Yndisauki er staðsettur á jarðhæð við Efstaleiti 25 með skemmtilegu útisvæði í inngarðinum. Efstaleitið er nútímalegt íbúðahverfi á einum besta stað í borginni með alla helstu verslun og þjónustu í næsta nágrenni, s.s Kringluna, Borgarleikhúsið, Borgarbókasafnið, Heislugæslu, Yndisauka, verslunarmiðstöðina Austurver þar sem má ma. finna Krónuna, Bakarameistarann og Læknavaktina. Svona mætti lengi áfram telja. Þá er leik- grunn- & menntaskóli í nokkra mínútna göngufjarlægð.
- Rut Káradóttur innanhússarkitekt sá um litaval og samsetningu innréttinga sem eru hannaðar af GKS og smíðaðar af Nobilia í Þýskalandi.
- Vandaðar flísar á baðherbergi og þvottahúsi frá MARAZZI.
- Gólfhiti í stofu rými. Ofnar í herbergjum.
- Aukin lofthæð
- 2 sérafnotafletir
- Ljósleiðari er kominn inn í íbúðina.
- Búið að leggja fyrir uppsetningu á hleðslukerfi fyrir rafbíla. Notkun og þjónustugjald er innheimt með húsgjöldum beint til notenda. Ísorka rekur kerfið.
- Virkt húsfélag í umsjón Eignaumsjón. Hússjóður stendur vel.
Nánari lýsing:
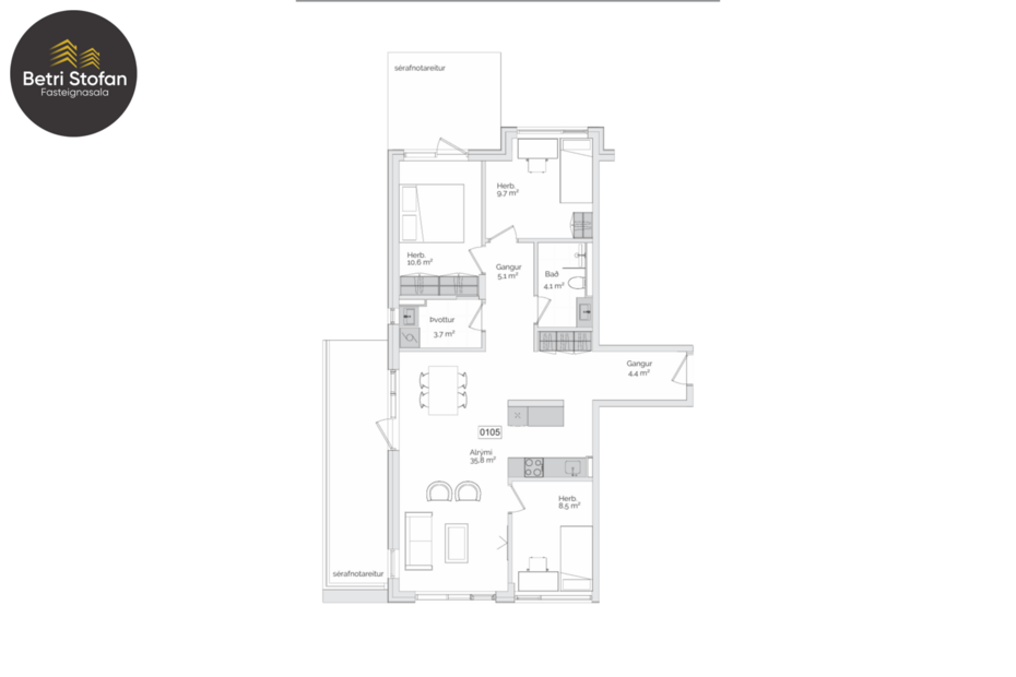
Anddyri: Rúmgott með innbyggðum þreföldum skáp. Gólfhiti
Stofa: Rúmgóð og björt með gólfsíðum gluggum til suðurs og vesturs. Góð tenging við eldhús. Útgengt út á hellulagðan sérafnotaflöt til vesturs, nær sól frá suðri, vestri og norðri. Gólfhiti.
Sérafnotaflötur I: Útgengt úr stofu. Hellulögð. Möguleiki á að setja sílender með lyklaaðgengi að utanverðu og nota þá sem "sérinngang" beint frá bílaplani / garði.
Eldhús: Ljós innrétting með efri skápum og neðri skúffum. Innbyggður ofn í innréttingu, vaskur, span helluborð ásamt innbyggðum gufugleypi fyrir ofan helluborð. Innbyggður ísskápur og uppþvottavél. Góð tenging við stofu. Gólfhiti.
Herbergjagangur: Tengir saman stofu, anddyri, 2 svefnherbergi, baðherbergi og þvottahús. Gólfhiti.
Svefnherbergi I: Innaf stofu í suðurenda íbúðar. Gott barnaherbergi. Einnig möguleiki á að opna og stækka þannig stofu. Léttur veggur (Hlaðin)
Svefnherbergi II: Rúmgott með góðu skápaplássi. Útgengt út á viðarverönd.
Sérafnotaflötur II: Viðarverönd inn í garð, rásað lerki.
Svefnherbergi III: Gott barnaherbergi með fataskáp.
Baðherbergi: Flísalagt í hólf og gólf með opinni sturtu með gólfhalla og Glervegg. Upphengt klósett, handklæðaofn, baðinnrétting með skúffum, vask og speglaskáp fyrir ofan vask.
Þvottaherbergi: Innrétting með aðstöðu fyrir þvottavél og þurrkara og skáp fyrir ofan. Neðri skápur með innfeldum vask. Útdraganlegt þvottahengi. Opnanlegur gluggi.
Gólfefni: Vandað gegnheilt eikarparket frá Ebson á öllum gólfum að undanskyldu baðherbergi og þvottahúsi. Gólfhiti í stofu, eldhúsi, anddyri og herbergjagangi.
Geymsla: Í sameign í kjallara, rúmgóð.
Bílastæði: Sérmerkt bílastæði í upphituðum bílakjallara. Búið að leggja fyrir rafmagni fyrir uppsetningu á rafmagnshleðslustöð. Mjög vel staðsett.
Sameign: Öll hin snyrtilegasta.
Lóð: Á lóðunum við Efstaleiti, Lágaleiti og Vörðuleiti er byggðinni skipt upp í tvo meginreiti. Þar mynda misháar íbúðabyggingar hring um skjólsæla garða, útivistar- og leiksvæði. Við hönnun íbúðahverfisins var unnið markvisst með stöllun húsa í hæð, formi og mótun lands svo úr yrði ásýnd stakstæðra húsa. Sameiginleg bílastæði eru á milli reitanna og í kringum húsin. Fallegur og snyrtilegur inngarður með leiksvæði, göngustígum ásamt opinni hjóla og vagnageymslu. Gangstígar eru með snjóbræðslu ásamt svæðum við innganga.
Nánari upplýsingar veitir Hreiðar Levý, lögg. fasteignasala í síma 661-6021, hreidar@betristofan.is
Íbúðin er afar björt og rúmgóð með stórum fallegum gólfsíðum gluggum, gólfhita og aukinni lofthæð. Skipulag er mjög gott á íbúðinni með góðu flæði milli eldhúss og stofu, 3 rúmgóðum svefnherbergi, góðu anddyri með skápum, baðherbergi ásamt sér þvottaherbergi með opnanlegum glugga. Gengið er út á sérafnotafleti eignar annarsvegar úr stofu og hinsvegar úr hjónaherbergi. Sérgeymsla er í kjallara ásamt sameiginlegri hjóla og vagnageymslu. Sérmerkt bílastæði í bílakjallara er mjög vel staðsett. Búið að leggja fyrir rafmagni til að setja upp rafmagnshleðslustöð. Möguleiki er að stækka stofu á kostnað svefnherbergis innaf stofu, léttur hlaðin veggur.
Bókið skoðun hjá Hreiðari Levý, lögg. fasteignasala í síma 661-6021, hreidar@betristofan.is
Fasteignamat eignar verður 93.350.000kr árið 2026 skv. HMS.
Staðsetning:
Efstaleitið er í sannkölluðu miðborgarhverfi í göngufæri við helstu verslunar- og þjónustukjarna borgarinnar og falleg útivistarsvæði. Garðurinn er gróðursæll og skjólsæll með reiðhjólaskýlum, leiksvæði og hreyfistöð. Veitingastaðurinn Yndisauki er staðsettur á jarðhæð við Efstaleiti 25 með skemmtilegu útisvæði í inngarðinum. Efstaleitið er nútímalegt íbúðahverfi á einum besta stað í borginni með alla helstu verslun og þjónustu í næsta nágrenni, s.s Kringluna, Borgarleikhúsið, Borgarbókasafnið, Heislugæslu, Yndisauka, verslunarmiðstöðina Austurver þar sem má ma. finna Krónuna, Bakarameistarann og Læknavaktina. Svona mætti lengi áfram telja. Þá er leik- grunn- & menntaskóli í nokkra mínútna göngufjarlægð.
- Rut Káradóttur innanhússarkitekt sá um litaval og samsetningu innréttinga sem eru hannaðar af GKS og smíðaðar af Nobilia í Þýskalandi.
- Vandaðar flísar á baðherbergi og þvottahúsi frá MARAZZI.
- Gólfhiti í stofu rými. Ofnar í herbergjum.
- Aukin lofthæð
- 2 sérafnotafletir
- Ljósleiðari er kominn inn í íbúðina.
- Búið að leggja fyrir uppsetningu á hleðslukerfi fyrir rafbíla. Notkun og þjónustugjald er innheimt með húsgjöldum beint til notenda. Ísorka rekur kerfið.
- Virkt húsfélag í umsjón Eignaumsjón. Hússjóður stendur vel.
Nánari lýsing:
Anddyri: Rúmgott með innbyggðum þreföldum skáp. Gólfhiti
Stofa: Rúmgóð og björt með gólfsíðum gluggum til suðurs og vesturs. Góð tenging við eldhús. Útgengt út á hellulagðan sérafnotaflöt til vesturs, nær sól frá suðri, vestri og norðri. Gólfhiti.
Sérafnotaflötur I: Útgengt úr stofu. Hellulögð. Möguleiki á að setja sílender með lyklaaðgengi að utanverðu og nota þá sem "sérinngang" beint frá bílaplani / garði.
Eldhús: Ljós innrétting með efri skápum og neðri skúffum. Innbyggður ofn í innréttingu, vaskur, span helluborð ásamt innbyggðum gufugleypi fyrir ofan helluborð. Innbyggður ísskápur og uppþvottavél. Góð tenging við stofu. Gólfhiti.
Herbergjagangur: Tengir saman stofu, anddyri, 2 svefnherbergi, baðherbergi og þvottahús. Gólfhiti.
Svefnherbergi I: Innaf stofu í suðurenda íbúðar. Gott barnaherbergi. Einnig möguleiki á að opna og stækka þannig stofu. Léttur veggur (Hlaðin)
Svefnherbergi II: Rúmgott með góðu skápaplássi. Útgengt út á viðarverönd.
Sérafnotaflötur II: Viðarverönd inn í garð, rásað lerki.
Svefnherbergi III: Gott barnaherbergi með fataskáp.
Baðherbergi: Flísalagt í hólf og gólf með opinni sturtu með gólfhalla og Glervegg. Upphengt klósett, handklæðaofn, baðinnrétting með skúffum, vask og speglaskáp fyrir ofan vask.
Þvottaherbergi: Innrétting með aðstöðu fyrir þvottavél og þurrkara og skáp fyrir ofan. Neðri skápur með innfeldum vask. Útdraganlegt þvottahengi. Opnanlegur gluggi.
Gólfefni: Vandað gegnheilt eikarparket frá Ebson á öllum gólfum að undanskyldu baðherbergi og þvottahúsi. Gólfhiti í stofu, eldhúsi, anddyri og herbergjagangi.
Geymsla: Í sameign í kjallara, rúmgóð.
Bílastæði: Sérmerkt bílastæði í upphituðum bílakjallara. Búið að leggja fyrir rafmagni fyrir uppsetningu á rafmagnshleðslustöð. Mjög vel staðsett.
Sameign: Öll hin snyrtilegasta.
Lóð: Á lóðunum við Efstaleiti, Lágaleiti og Vörðuleiti er byggðinni skipt upp í tvo meginreiti. Þar mynda misháar íbúðabyggingar hring um skjólsæla garða, útivistar- og leiksvæði. Við hönnun íbúðahverfisins var unnið markvisst með stöllun húsa í hæð, formi og mótun lands svo úr yrði ásýnd stakstæðra húsa. Sameiginleg bílastæði eru á milli reitanna og í kringum húsin. Fallegur og snyrtilegur inngarður með leiksvæði, göngustígum ásamt opinni hjóla og vagnageymslu. Gangstígar eru með snjóbræðslu ásamt svæðum við innganga.
Nánari upplýsingar veitir Hreiðar Levý, lögg. fasteignasala í síma 661-6021, hreidar@betristofan.is
Gjöld sem kaupandi þarf að standa straum af ef að kaupum verður:
1. Stimpilgjald af fasteignamati fasteignar er 0.8%, en 0,4% fyrir fyrstu kaup og 1,6% fyrir lögaðila.
2. Þinglýsingargjald: kaupsamningi, skuldabréfi, veðleyfi, afsali o.s.frv. er kr. 3.800 af hverju skjali.
3. Lántökukostnaður samkvæmt verðskrá viðkomandi lánastofnunar.
4. Umsýslugjald til fasteignasölu skv. gjaldskrá.
Skoðunarskylda kaupanda:
Í lögum um fasteignakaup nr. 40/2002 er kveðið á um ríka skoðunarskyldu kaupenda á fasteignum. Betri Stofan fasteignasala bendir væntanlegum kaupendum á að kynna sér vel ástand fasteigna við skoðun og fyrir tilboðsgerð og ef þurfa þykir að leita til sérfræðinga um nánari ástandsskoðun.
Ár
Fasteignamat
Kaupverð
Stærð
Fermetraverð
10. nóv. 2020
53.200.000 kr.
66.900.000 kr.
110 m²
608.182 kr.
Byggt á upplýsingum úr Þjóðskrá Íslands frá 2006-2026