Upplýsingar
Verðsaga
Byggt 2020
94,1 m²
3 herb.
2 svefnh.
Þvottahús
Sameiginl. inngangur
Lyfta
Laus strax
Lýsing
Hraunhamar kynnir fallega þriggja herbergja íbúð á fyrstu hæð á litlu nýlegu fjölbýlishúsi byggt 2020 vel staðsett í Skarðshlíðarhverfinu í Hafnarfirði. Íbúðin getur verið laus við kaupsamning.
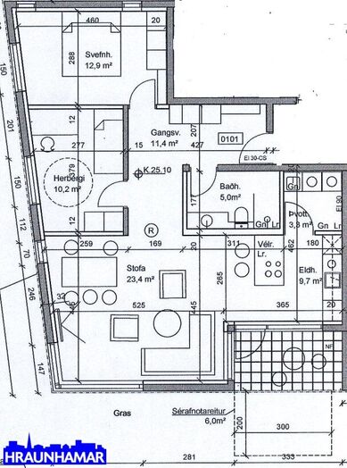
Íbúðin er 94,1 fermetrar með geymslu.
Skipting eignarinnar: Forstofa, hol, stofa, eldhús, baðherbergi. tvö svefnherbergi, þvottahús og geymlsa. Auk þess er hellulögð verönd og sérafnotaréttur.
Nánari lýsing eignarinnar:
Forstofa með fataskápum.
Gott hol
Rúmgott hjónaherbergi með fataskápum,
Flísalagt baðherbergi með innréttingu, góð sturta og handklæðaofn.
Barnaherbergið rúmgott með fatasápum.
Falleg stofa og borðstofa.
Eldhús með smekklegri innréttingu og þaðan er utangengt út á hellulagða verönd og einnig fylgir eigninni sérafnotaréttur.
Þvottahúsið er innaf eldhúsinu og þar er innrétting og vélar er í vinnuhæð.
Gólfefni er harðparket og flísar.
Þetta er sérlega rúmgóð þriggja herbergja íbúð, gott skipulag og þetta er eina íbúðin á fyrstu hæð. Fordæmi er fyrir dýrahaldi í húsinu.
Falleg eign í nýlegu hverfi, stutt í skóla og leikskóla og margar skemmtilegar gönguleiðir allt um kring.
Nánari upplýsingar veita:
Glódís Helgadóttir, löggiltur fasteignasali, s. 659-0510, glodis@hraunhamar.is
Hlynur Halldórsson, löggiltur fasteignasali, s. 698-2603, hlynur@hraunhamar.is
Skoðunarskylda:
Í lögum um fasteignakaup nr. 40/2002 er kveðið á um ríka skoðunarskyldu kaupenda á fasteignum. Hraunhamar fasteignasala vill benda væntanlegum kaupendum á að kynna sér vel ástand fasteigna fyrir kauptilboðsgerð og ef þurfa þykir að leita til sérfræðinga fyrir nánari ástandsskoðun.
Gjöld sem kaupandi þarf að standa straum af vegna kaupanna:
1. Stimpilgjald af kaupsamningi, fyrstu kaup (0,4%), almenn kaup (0,8%), lögaðilar (1,6%) af heildarfasteignamati.
2. Þinglýsingargjald af kaupsamningi, veðskuldabréfi, mögulegu veðleyfi o.fl. – kr. 2.700 kr. af hverju skjali.
3. Lántökugjald lánastofnunar er skv. verðskrá viðkomandi lánastofnunar.
4. Umsýslugjald til fasteignasölu skv. þjónustusamningi
Hraunhamar er elsta fasteignasala Hafnarfjarðar, stofnuð 1983.
Hraunhamar, í fararbroddi í rúm 40 ár. – Hraunhamar.is
Smelltu hér til að fá söluyfirlit.
Íbúðin er 94,1 fermetrar með geymslu.
Skipting eignarinnar: Forstofa, hol, stofa, eldhús, baðherbergi. tvö svefnherbergi, þvottahús og geymlsa. Auk þess er hellulögð verönd og sérafnotaréttur.
Nánari lýsing eignarinnar:
Forstofa með fataskápum.
Gott hol
Rúmgott hjónaherbergi með fataskápum,
Flísalagt baðherbergi með innréttingu, góð sturta og handklæðaofn.
Barnaherbergið rúmgott með fatasápum.
Falleg stofa og borðstofa.
Eldhús með smekklegri innréttingu og þaðan er utangengt út á hellulagða verönd og einnig fylgir eigninni sérafnotaréttur.
Þvottahúsið er innaf eldhúsinu og þar er innrétting og vélar er í vinnuhæð.
Gólfefni er harðparket og flísar.
Þetta er sérlega rúmgóð þriggja herbergja íbúð, gott skipulag og þetta er eina íbúðin á fyrstu hæð. Fordæmi er fyrir dýrahaldi í húsinu.
Falleg eign í nýlegu hverfi, stutt í skóla og leikskóla og margar skemmtilegar gönguleiðir allt um kring.
Nánari upplýsingar veita:
Glódís Helgadóttir, löggiltur fasteignasali, s. 659-0510, glodis@hraunhamar.is
Hlynur Halldórsson, löggiltur fasteignasali, s. 698-2603, hlynur@hraunhamar.is
Skoðunarskylda:
Í lögum um fasteignakaup nr. 40/2002 er kveðið á um ríka skoðunarskyldu kaupenda á fasteignum. Hraunhamar fasteignasala vill benda væntanlegum kaupendum á að kynna sér vel ástand fasteigna fyrir kauptilboðsgerð og ef þurfa þykir að leita til sérfræðinga fyrir nánari ástandsskoðun.
Gjöld sem kaupandi þarf að standa straum af vegna kaupanna:
1. Stimpilgjald af kaupsamningi, fyrstu kaup (0,4%), almenn kaup (0,8%), lögaðilar (1,6%) af heildarfasteignamati.
2. Þinglýsingargjald af kaupsamningi, veðskuldabréfi, mögulegu veðleyfi o.fl. – kr. 2.700 kr. af hverju skjali.
3. Lántökugjald lánastofnunar er skv. verðskrá viðkomandi lánastofnunar.
4. Umsýslugjald til fasteignasölu skv. þjónustusamningi
Hraunhamar er elsta fasteignasala Hafnarfjarðar, stofnuð 1983.
Hraunhamar, í fararbroddi í rúm 40 ár. – Hraunhamar.is
Smelltu hér til að fá söluyfirlit.
Ár
Fasteignamat
Kaupverð
Stærð
Fermetraverð
26. ágú. 2021
42.400.000 kr.
53.200.000 kr.
94.1 m²
565.356 kr.
Byggt á upplýsingum úr Þjóðskrá Íslands frá 2006-2026