Upplýsingar
Verðsaga
Byggt 1979
180,1 m²
6 herb.
1 baðherb.
4 svefnh.
Þvottahús
Bílskúr
Lýsing
Fasteignasala Sauðárkróks býður til sölu fasteignina við Drekahlíð 9, Sauðárkróki ásamt tilheyrandi lóðarleiguréttindum.
Vel skipulagt fimm herbergja einbýlishús ásamt bílskúr á góðum stað.
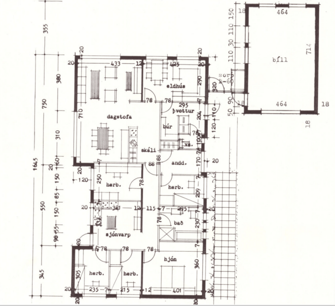
Skráð stærð eignarinnar er 180,1 fm., þar af 37,5 fm. bílskúr. Fasteignin er steypt. Húsið byggt 1979 og bílskúr 1995.
Leigulóð hússins er 705 fm.
Fasteignin er vel staðsett innarlega í Drekahlíð og stutt er í góðar gönguleiðir og náttúru.
Snyrtileg eign.
Íbúðarhúsið skiptist í 4 svefnherbergi (voru áður fimm), eldhús, stofu, baðherbergi, forstofu og þvottahús.
Komið er í flísalagða forstofu með fatahengi.
Við forstofu er parketlagt herbergi.
Stofa er rúmgóð, parketlögð og með gluggum til austur og suðurs.
Í eldhúsi eru flísar á gólfi og viðarinnrétting með ljósri borðplötu. Helluborð, bakaraofn frá Electrolux.
Inn af eldhúsi er þvottahús. Frá þvottahúsi er hurð út að vestan. Þvottahús er flísalagt að hluta og með góðri innréttingu, vask og stórum skáp.
Herbergisgangur er parketlagður og við enda gangs er hurð út í garð og skápar þar við.
Við ganginn eru þrjú rúmgóð herbergi sem öll eru parketlögð.
Baðherbergi var endurnýjað árið 2020. Flísar eru á gólfi veggjum, walk in sturta, handklæðaofn og hvít innréttingu við vask.
Bílskúr er rúmgóður og fullfrágenginn. Í honum er geymsla þar sem er fyrstikista. Gólf er steypt.
Garður er gróinn og sunnan við húsið er pallur með heitum potti.
Plan er malarborðið.
Nánari upplýsingar er að fá hjá Fasteignasölu Sauðárkróks í síma 453 5900 eða á netfangið fasteignir@krokurinn.is
Sunna Björk Atladóttir lögmaður og löggiltur fasteignasali
Eva Dögg Bergþórsdóttir löggiltur fasteignasali
Ella Magga, aðstoðarmaður fasteignasala
Vel skipulagt fimm herbergja einbýlishús ásamt bílskúr á góðum stað.
Skráð stærð eignarinnar er 180,1 fm., þar af 37,5 fm. bílskúr. Fasteignin er steypt. Húsið byggt 1979 og bílskúr 1995.
Leigulóð hússins er 705 fm.
Fasteignin er vel staðsett innarlega í Drekahlíð og stutt er í góðar gönguleiðir og náttúru.
Snyrtileg eign.
Íbúðarhúsið skiptist í 4 svefnherbergi (voru áður fimm), eldhús, stofu, baðherbergi, forstofu og þvottahús.
Komið er í flísalagða forstofu með fatahengi.
Við forstofu er parketlagt herbergi.
Stofa er rúmgóð, parketlögð og með gluggum til austur og suðurs.
Í eldhúsi eru flísar á gólfi og viðarinnrétting með ljósri borðplötu. Helluborð, bakaraofn frá Electrolux.
Inn af eldhúsi er þvottahús. Frá þvottahúsi er hurð út að vestan. Þvottahús er flísalagt að hluta og með góðri innréttingu, vask og stórum skáp.
Herbergisgangur er parketlagður og við enda gangs er hurð út í garð og skápar þar við.
Við ganginn eru þrjú rúmgóð herbergi sem öll eru parketlögð.
Baðherbergi var endurnýjað árið 2020. Flísar eru á gólfi veggjum, walk in sturta, handklæðaofn og hvít innréttingu við vask.
Bílskúr er rúmgóður og fullfrágenginn. Í honum er geymsla þar sem er fyrstikista. Gólf er steypt.
Garður er gróinn og sunnan við húsið er pallur með heitum potti.
Plan er malarborðið.
Nánari upplýsingar er að fá hjá Fasteignasölu Sauðárkróks í síma 453 5900 eða á netfangið fasteignir@krokurinn.is
Sunna Björk Atladóttir lögmaður og löggiltur fasteignasali
Eva Dögg Bergþórsdóttir löggiltur fasteignasali
Ella Magga, aðstoðarmaður fasteignasala
Ár
Fasteignamat
Kaupverð
Stærð
Fermetraverð
4. maí. 2013
24.900.000 kr.
31.000.000 kr.
180.1 m²
172.127 kr.
Byggt á upplýsingum úr Þjóðskrá Íslands frá 2006-2026