Löggiltir fasteignasalar innan Félags fasteignasala:
Björn Guðmundsson
Berglind Jónasardóttir
Greta Huld Mellado
Vista
svg

1486

svg

1393  Skoðendur

svg

Skráð  25. sep. 2024

fjölbýlishús

Austurbrú 14 - 405

600 Akureyri

87.000.000 kr.

905.307 þ.kr./m2
Fasteignanúmer

F2531372

Fasteignamat

47.650.000 kr.

Brunabótamat

7.440.000 kr.

Áhvílandi

0 kr.

Arion banki – Reikna lán
Upplýsingar
svg
Byggt 2024
svg
96,1 m²
svg
2 herb.
svg
1 svefnh.
svg
Útsýni
svg
Sameiginl. inngangur
svg
Bílastæði
svg
Lyfta

Lýsing

    

Fasteignasalan Byggð 464-9955

Einstakar útsýnisíbúðir í hjarta Akureyrar. Staðsetningin býður íbúum við Austurbrú uppá einstök gæði. Íbúðirnar eru í nálægð við Pollinn, miðbæinn og stóran hluta menningarstarfsemi Akureyrar.


Fyrir ítarlegar upplýsingar, m.a. skilalýsingu smellið hér

***Bókaðu einkaskoðun í síma 464 9955 eða á byggd@byggd.is***

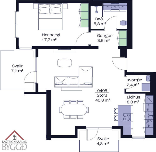
Íbúð 405
Mjög rúmgóð tveggja herbergja útsýnisíbúð með aukinni lofthæð og tvennar svalir í nýbyggingu ásamt stæði í lokaðri bílageymslu við Austurbrú 14.
Íbúðin er samtals 96,1 fm., þar af er geymsla 8,2 fm..


Íbúðin:
Komið er inn í anddyri, gert er ráð fyrir skápum á gangi. Gert er ráð fyrir eldhúsi með eyju og stofu/borðstofu í opnu rými sem er með mikilli lofthæð. Úr stofu er gengið út á svalir bæði til austurs með útsýni yfir Pollinn og skjólsælar svalir til suðurs. Gert er ráð fyrir þvottahúsi við hlið eldhúss.
Baðherbergi og herbergi eru á gangi. 
Stæði í lokaðri bílageymslu fylgir íbúðinni.
Íbúðin afhendist ófullgerð, nánast tilbúin til tréverks.  Gert er ráð fyrir að kaupandi vilji hanna lokafrágang á íbúðinni þar sem miklir og skemmtilegir möguleikar eru við lokafrágang á þessari einstöku eign.


Sameign er með glæsilegra móti.
Komið er inn í rúmgott anddyri.  Stórar ljósakrónur og lýsing frá Lumex gefa fallega birtu.
Hljóðplötur í lofti, þannig að hlóðvist verður með besta móti.
Flísar á gólfi frá kjallara og upp á pall fyrstu hæðar.  Frá fyrstu hæð eru stigagangarnir teppalagðir.
Innangengt úr hverjum stigagangi niður í lokaða bílageymslu.

Við Austurbrún 10-14 verða 35 íbúðir og eru þær allar með verönd eða svalir. Gluggarnir nema við gólf fyrir óhefta dagsbirtu og útsýni. Flestum íbúðunum fylgir einkastæði í bílakjallara og þar eru einnig hjólageymsla og geymslur. Lyftur eru í öllum stigahúsum og gott aðgengi fyrir hjólastóla og barnavagna.
Í kjallara eru geymslur íbúðanna auk 62 bílastæða í bílageymslu. Ísorka ehf. og Austurbrú 10-18 húsfélag hafa gert með sér samning með rekstur hleðslukerfis fyrir rafbíla á sameiginlegu bílastæði með hugbúnað Ísorku ehf. 
Í heild er um að ræða 64 íbúðir að meðtöldum íbúðum úr húsum 16 og 18. Byggingarnar sem rísa Hafnarstrætis megin á reitnum munu hýsa glæsilegt hótel búið veitingastað og kokteilbar.

Allar frekari upplýsingar, verðlista og tegundir íbúða má sjá með því að smella hér

Áætluð afhending: Sumar 2024
Framkvæmdaraðili: Pollurinn ehf. 


Gjöld sem kaupandi þarf að standa straum af vegna kaupanna:  
1. Stimpilgjald af kaupsamningi - 0.8% af heildarfasteignamati / 1.6% fyrir lögaðila.    (0.4% við fyrstu kaup einstaklinga m.v. að lágmarki 50% eignarhlut). Kaupandi greiðir skipulagsgjald 0,3% af brunabótamati þegar það leggst á eignina.
2. Þinglýsingagjald af kaupsamningi, veðskuldabréfi, veðleyfi o.fl.- kr. 2.700 af hverju skjali.
3. Lántökugjald lánastofnunar -almennt 0,5-1,0% af höfuðstól skuldabréfs (nánari upplýsingar m.a. á heimasíðum lánastofnanna).
4. Umsýsluþóknun til fasteignasölu, sbr.kauptilboð. 

Frekari upplýsingar:
bjorn@byggd.is
greta@byggd.is
olafur@byggd.is

Skipagötu 16 á 2. hæð.
S:464 9955 


 

Byggð fasteignasala

Byggð fasteignasala

Skipagata 16, 600 Akureyri
phone
Byggð fasteignasala

Byggð fasteignasala

Skipagata 16, 600 Akureyri
phone