Upplýsingar
Byggt 2000
97,7 m²
3 herb.
1 baðherb.
2 svefnh.
Útsýni
Sameiginl. inngangur
Bílastæði
Lyfta
Lýsing
Fasteignasalan Hvammur 466 1600
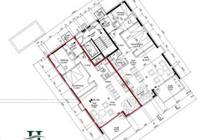
Strandgata 3 íbúð 302 - Skemmtileg 3ja herbergja íbúð á 3.hæð í fjölbýlishúsi með lyftu í miðbæ Akureyrar - stærð 97,7 m²
Íbúðinni fylgir sér stæði í bílageymslu.
Eignin skiptist í forstofu/gang, eldhús og stofu í opnu rými, tvö svefnherbergi og baðherbergi með þvottaaðstöðu.
Í kjallaranum er sér geymsla og sér bílastæði.
Forstofa og gangur eru með flísum á gólfi og þreföldum skáp. Við endann á ganginum eru litlar austur svalir.
Eldhús, spónlögð innrétting og eldunareyja með kirsuberjavið. Ljósar flísa á milli skápa. AEG helluborð og ofn. Gott bekkjar- og skápapláss. Rúmgóður borðkrókur með útsýnisgluggar út á Ráðhústorg.
Stofa og eldhús eru í opnu rými þar sem flísar eru á gólfum og gluggar til þriggja átta. Úr stofu er gengið út á steyptar svalir sem eru skv. teikningum 9,6 m² að stærð.
Svefnherbergin eru tvö, bæði með flísum á gólfi og fataskápum. Stærð herbergja er skv. teikningum 10,0 og 13,2 m².
Baðherbergi er flísalagt bæði gólf og veggir, hvít innrétting, upphengt wc og walk-in sturta. Tengi eru fyrir þvottavél inn á baðherberginu.
Annað
- Sér geymsla er í kjallaranum skráð 8 m² að stærð og er hún staðsett við endann á bílastæðinu.
- Sér stæði í bílageymslu.
- Gólfhiti er í allri íbúðinni.
- Tvennar svalir.
- Snyrtileg sameign.
- Möguleiki er að fá innbú með.
- Eignin er í einkasölu
Um skoðunar- og aðgæsluskyldu:
Í lögum um fasteignakaup nr. 40/2002 er kveðið á um ríka skoðunarskyldu kaupenda á fasteignum. Fasteignasalan Hvammur skorar því á væntanlega kaupendur að kynna sér vel ástand fasteigna fyrir kauptilboðsgerð og leita til þar til bærra sérfræðinga um nánari skoðun ef með þarf.
Forsendur söluyfirlits:
Söluyfirlit er samið af fasteignasala í samræmi við ákvæði laga nr. 70/2015. Þær upplýsingar sem fram koma í söluyfirliti þessu eru sóttar í opinberar skrár, til seljanda sjálfs og eftir atvikum til húsfélags. Seljandi veitir upplýsingar um eign í samræmi við upplýsingaskyldu laga um fasteignakaup nr. 40/2002. Fasteignasali sannreynir að þær upplýsingar séu réttar með sjónskoðun á eigninni. Fasteignasali getur ekki fullyrt um ástand og eiginleika þeirra hluta fasteigna sem ekki eru aðgengilegir og sjást ekki berum augum, t.d. lagnir, dren, skólp og þak.
Strandgata 3 íbúð 302 - Skemmtileg 3ja herbergja íbúð á 3.hæð í fjölbýlishúsi með lyftu í miðbæ Akureyrar - stærð 97,7 m²
Íbúðinni fylgir sér stæði í bílageymslu.
Eignin skiptist í forstofu/gang, eldhús og stofu í opnu rými, tvö svefnherbergi og baðherbergi með þvottaaðstöðu.
Í kjallaranum er sér geymsla og sér bílastæði.
Forstofa og gangur eru með flísum á gólfi og þreföldum skáp. Við endann á ganginum eru litlar austur svalir.
Eldhús, spónlögð innrétting og eldunareyja með kirsuberjavið. Ljósar flísa á milli skápa. AEG helluborð og ofn. Gott bekkjar- og skápapláss. Rúmgóður borðkrókur með útsýnisgluggar út á Ráðhústorg.
Stofa og eldhús eru í opnu rými þar sem flísar eru á gólfum og gluggar til þriggja átta. Úr stofu er gengið út á steyptar svalir sem eru skv. teikningum 9,6 m² að stærð.
Svefnherbergin eru tvö, bæði með flísum á gólfi og fataskápum. Stærð herbergja er skv. teikningum 10,0 og 13,2 m².
Baðherbergi er flísalagt bæði gólf og veggir, hvít innrétting, upphengt wc og walk-in sturta. Tengi eru fyrir þvottavél inn á baðherberginu.
Annað
- Sér geymsla er í kjallaranum skráð 8 m² að stærð og er hún staðsett við endann á bílastæðinu.
- Sér stæði í bílageymslu.
- Gólfhiti er í allri íbúðinni.
- Tvennar svalir.
- Snyrtileg sameign.
- Möguleiki er að fá innbú með.
- Eignin er í einkasölu
Um skoðunar- og aðgæsluskyldu:
Í lögum um fasteignakaup nr. 40/2002 er kveðið á um ríka skoðunarskyldu kaupenda á fasteignum. Fasteignasalan Hvammur skorar því á væntanlega kaupendur að kynna sér vel ástand fasteigna fyrir kauptilboðsgerð og leita til þar til bærra sérfræðinga um nánari skoðun ef með þarf.
Forsendur söluyfirlits:
Söluyfirlit er samið af fasteignasala í samræmi við ákvæði laga nr. 70/2015. Þær upplýsingar sem fram koma í söluyfirliti þessu eru sóttar í opinberar skrár, til seljanda sjálfs og eftir atvikum til húsfélags. Seljandi veitir upplýsingar um eign í samræmi við upplýsingaskyldu laga um fasteignakaup nr. 40/2002. Fasteignasali sannreynir að þær upplýsingar séu réttar með sjónskoðun á eigninni. Fasteignasali getur ekki fullyrt um ástand og eiginleika þeirra hluta fasteigna sem ekki eru aðgengilegir og sjást ekki berum augum, t.d. lagnir, dren, skólp og þak.