Upplýsingar
Verðsaga
Byggt 2022
99 m²
4 herb.
1 baðherb.
3 svefnh.
Sérinngangur
Lýsing
ALLT fasteignasala kynnir í einkasölu eignina Leirdalur 22 A,
Fjagra herbergja viðhaldslitið og vel skipulagt raðhús í fjögurra íbúða viðhaldslitlu raðhúsi. Eignin er öll vönduð og var tekin í notkun 2024, möguleiki er að setja svalalokun og við það stækkar íverurými til muna.
Fyrirhugað fasteignamat ársins 2026 er 72.800.000 kr.
Nánari upplýsingar veita
Páll Þorbjörnsson Löggiltur fasteignasali, í síma 560-5501, tölvupóstur pall@allt.is.
*** Gott skipulag
*** Hægt að setja svalalokun og stækka með því íverurými
*** Innréttingar eru sérsmíðaðar frá Voké
*** Lofthæð er 2,8m og innihurðir eru 2,3m
*** Aflokuð lóð
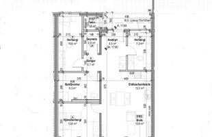
Forstofa er með flísar á gólfi og fataskáp spónlögðum með hnotupón.
Eldhús er opið við stofu. Sérsmíðuð L-laga innrétting, hvítlakkaðir efri skápar og og neðri skápar eru spónlögð hnota. Borðplata er spónlögð grá, vaskur er innfelldur í borðplötu. Heimilistæki eru frá Electrolux. Helluborð og gufugleypir með kolasíu. Innbyggðum amerískum kæliskáp og uppþvottavél.
Stofa er með parketi á gólfum og útgengt út á yfirbyggða verönd gegnum rennihurð.
Hjónaherbergi er með parketi á gólfi og fataskáp spónlögðum með hnotupón.
Tvö barnaherbergi eru með parketi á gólfum og fataskápum.
Baðherbergi er með ljósbrúnar flísar á gólfum og veggjum. Hillur fyrir ílát er innbyggt í sturtuklefa. Upphengt salerni. Hnotuklædd baðinnrétting og spegilskápur fyrir ofan innréttingu er innfelldur í vegg.
Hvítlakkaður skápur fyrir þvottavél og þurrkara með skúffum undir og hillum fyrir ofan. Skápurinn er með fellihurð þannig að tækin eru aðeins sýnileg við notkun.
Geymsla er innaf svefnherbergisgangi. Gólfefni harðparket.
Inntaksrými er að utanverðu frá anddyri og er sérinngangur í það.
Innfelld lýsing á verönd og við aðalinngang.
Gert er ráð fyrir heitum potti á verönd með ídráttarrörum undir verönd bakatil.
Hleðslustöð að framan við húsið.
Vertu tilbúin(n) þegar rétta eignin birtist – skráðu eignina þín í dag og tryggðu þér forskotið.
ALLT fasteignasala er staðsett á eftirfarandi stöðum:
Hafnargötu 91, 230 Reykjanesbæ - Þverholti 2, 270 Mosfellsbæ
Kostnaður kaupanda:
1. Af gjaldskyldum skjölum skal greiða 0,8% af fasteignamati ef kaupandi er einstaklingur, fyrstukaupendur 0,4% og 1,6% af fasteignamati ef kaupandi er lögaðili.
2. Þinglýsingargjald á hvert skjal er kr. 2.700.
3. Lántökugjald fer eftir verðskrá lánastofnunar hverju sinni.
4. Umsýslugjald til ALLT fasteignasölu er kr. 69.440 m/vsk.
5. Sé um nýbyggingu um að ræða greiðir kaupandi skipulagsgjald, 0,3% af brunabótamati, þegar það er lagt á.
Skoðunar- og aðgæsluskylda kaupanda:
Í lögum um fasteignakaup nr. 40/2002 er kveðið á um ríka skoðunarskyldu kaupenda á fasteignum. ALLT fasteignasala vill beina því til væntanlegs kaupanda að kynna sér ástand fasteignar vel við skoðun og fyrir tilboðsgerð. Ef þurfa þykir er ráðlagt að leita til sérfræðifróðra aðila. Forsendur söluyfirlits: Söluyfirlit þetta er samið af fasteignasala til samræmis við lög um sölu fasteigna og skipa nr. 70/2015. Upplýsingar þær sem koma fram í söluyfirliti þessu eru sóttar í opinberar skrár, frá seljanda og eftir atvikum til húsfélags. Seljandi veitir upplýsingar um eignina til samræmis við upplýsingaskyldu sína sbr. lög um fasteignakaup nr. 40/2002. Fasteignasali sannreynir að upplýsingar séu réttar með sjónskoðun á eigninni. Fasteignasali getur ekki fullyrt um ástand og eiginleika þeirra hluta fasteignar sem ekki eru aðgengilegir og sjást ekki með berum augum, eins og t.d. lagnir, dren, skólp og þak.
Fjagra herbergja viðhaldslitið og vel skipulagt raðhús í fjögurra íbúða viðhaldslitlu raðhúsi. Eignin er öll vönduð og var tekin í notkun 2024, möguleiki er að setja svalalokun og við það stækkar íverurými til muna.
Fyrirhugað fasteignamat ársins 2026 er 72.800.000 kr.
Nánari upplýsingar veita
Páll Þorbjörnsson Löggiltur fasteignasali, í síma 560-5501, tölvupóstur pall@allt.is.
*** Gott skipulag
*** Hægt að setja svalalokun og stækka með því íverurými
*** Innréttingar eru sérsmíðaðar frá Voké
*** Lofthæð er 2,8m og innihurðir eru 2,3m
*** Aflokuð lóð
Forstofa er með flísar á gólfi og fataskáp spónlögðum með hnotupón.
Eldhús er opið við stofu. Sérsmíðuð L-laga innrétting, hvítlakkaðir efri skápar og og neðri skápar eru spónlögð hnota. Borðplata er spónlögð grá, vaskur er innfelldur í borðplötu. Heimilistæki eru frá Electrolux. Helluborð og gufugleypir með kolasíu. Innbyggðum amerískum kæliskáp og uppþvottavél.
Stofa er með parketi á gólfum og útgengt út á yfirbyggða verönd gegnum rennihurð.
Hjónaherbergi er með parketi á gólfi og fataskáp spónlögðum með hnotupón.
Tvö barnaherbergi eru með parketi á gólfum og fataskápum.
Baðherbergi er með ljósbrúnar flísar á gólfum og veggjum. Hillur fyrir ílát er innbyggt í sturtuklefa. Upphengt salerni. Hnotuklædd baðinnrétting og spegilskápur fyrir ofan innréttingu er innfelldur í vegg.
Hvítlakkaður skápur fyrir þvottavél og þurrkara með skúffum undir og hillum fyrir ofan. Skápurinn er með fellihurð þannig að tækin eru aðeins sýnileg við notkun.
Geymsla er innaf svefnherbergisgangi. Gólfefni harðparket.
Inntaksrými er að utanverðu frá anddyri og er sérinngangur í það.
Innfelld lýsing á verönd og við aðalinngang.
Gert er ráð fyrir heitum potti á verönd með ídráttarrörum undir verönd bakatil.
Hleðslustöð að framan við húsið.
Vertu tilbúin(n) þegar rétta eignin birtist – skráðu eignina þín í dag og tryggðu þér forskotið.
ALLT fasteignasala er staðsett á eftirfarandi stöðum:
Hafnargötu 91, 230 Reykjanesbæ - Þverholti 2, 270 Mosfellsbæ
Kostnaður kaupanda:
1. Af gjaldskyldum skjölum skal greiða 0,8% af fasteignamati ef kaupandi er einstaklingur, fyrstukaupendur 0,4% og 1,6% af fasteignamati ef kaupandi er lögaðili.
2. Þinglýsingargjald á hvert skjal er kr. 2.700.
3. Lántökugjald fer eftir verðskrá lánastofnunar hverju sinni.
4. Umsýslugjald til ALLT fasteignasölu er kr. 69.440 m/vsk.
5. Sé um nýbyggingu um að ræða greiðir kaupandi skipulagsgjald, 0,3% af brunabótamati, þegar það er lagt á.
Skoðunar- og aðgæsluskylda kaupanda:
Í lögum um fasteignakaup nr. 40/2002 er kveðið á um ríka skoðunarskyldu kaupenda á fasteignum. ALLT fasteignasala vill beina því til væntanlegs kaupanda að kynna sér ástand fasteignar vel við skoðun og fyrir tilboðsgerð. Ef þurfa þykir er ráðlagt að leita til sérfræðifróðra aðila. Forsendur söluyfirlits: Söluyfirlit þetta er samið af fasteignasala til samræmis við lög um sölu fasteigna og skipa nr. 70/2015. Upplýsingar þær sem koma fram í söluyfirliti þessu eru sóttar í opinberar skrár, frá seljanda og eftir atvikum til húsfélags. Seljandi veitir upplýsingar um eignina til samræmis við upplýsingaskyldu sína sbr. lög um fasteignakaup nr. 40/2002. Fasteignasali sannreynir að upplýsingar séu réttar með sjónskoðun á eigninni. Fasteignasali getur ekki fullyrt um ástand og eiginleika þeirra hluta fasteignar sem ekki eru aðgengilegir og sjást ekki með berum augum, eins og t.d. lagnir, dren, skólp og þak.
Ár
Fasteignamat
Kaupverð
Stærð
Fermetraverð
6. mar. 2024
50.650.000 kr.
66.500.000 kr.
99 m²
671.717 kr.
Byggt á upplýsingum úr Þjóðskrá Íslands frá 2006-2026