Upplýsingar
Verðsaga
Byggt 1984
94,1 m²
4 herb.
1 baðherb.
3 svefnh.
Þvottahús
Útsýni
Sameiginl. inngangur
Lýsing
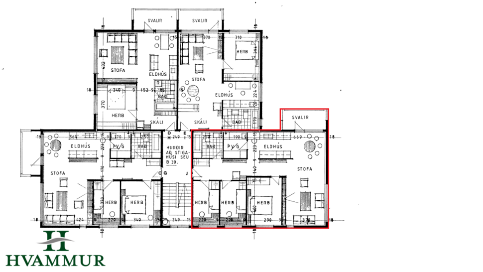
Melasíða 2f - Björt og vel skipulögð 4ra herbergja íbúð á 2. hæð í fjölbýli í Síðuhverfi - stærð 94,1 m²
Eignin skiptist í forstofu, gang, eldhús, stofu, þrjú svefnherbergi, baðherbergi og þvottahús. Sér geymsla er á jarðhæð.
Forstofa er með flísum á gólfi og tvöföldum fataskáp.
Eldhús: Flísar á gólfi og hvít innrétting sem hefur verið filmuð að hluta. Ljósar málaðar flísar á milli skápa. Ný eldavél með spanhellum og gott skápa- og bekkjarpláss. Rúmgóður borðkrókur með hvíttuðu harðparketi á gólfi og hurð til vestur út á steyptar svalir.
Stofa er með hvíttuðu harðparketi á gólfi og gluggum til tveggja átta.
Svefnherberginu eru þrjú, öll með hvíttuðu harðparketi á gólfi. Hvítir fataskápar í hjónaherbergi.
Baðherbergi var tekið í gegn 2021 á snyrtilegan hátt. Walk-in sturta með svörtum sturtutækjum, upphengt wc og ný hvít innrétting. Þiljur á öllum veggjum.
Þvottahús er með flísum á gólfi, bekkplötu og hillum.
Sér geymsla er á jarðhæð.
Annað:
- Búið er að setja upp hleðslustöðvar fyrir rafmangsbíla.
- Búið er að taka inn ljósleiðara
- Góðar sameiginlegar geymslur eru á jarðhæð fyrir hjól og kerrur o.fl.
- Snyrtileg sameign.
- Húsið er nýlega málað og múrviðgert.
- Þak hússins er nýlega málað.
- Eignin er í einkasölu
Um skoðunar- og aðgæsluskyldu:
Í lögum um fasteignakaup nr. 40/2002 er kveðið á um ríka skoðunarskyldu kaupenda á fasteignum. Fasteignasalan Hvammur skorar því á væntanlega kaupendur að kynna sér vel ástand fasteigna fyrir kauptilboðsgerð og leita til þar til bærra sérfræðinga um nánari skoðun ef með þarf.
Forsendur söluyfirlits:
Söluyfirlit er samið af fasteignasala í samræmi við ákvæði laga nr. 70/2015. Þær upplýsingar sem fram koma í söluyfirliti þessu eru sóttar í opinberar skrár, til seljanda sjálfs og eftir atvikum til húsfélags. Seljandi veitir upplýsingar um eign í samræmi við upplýsingaskyldu laga um fasteignakaup nr. 40/2002. Fasteignasali sannreynir að þær upplýsingar séu réttar með sjónskoðun á eigninni. Fasteignasali getur ekki fullyrt um ástand og eiginleika þeirra hluta fasteigna sem ekki eru aðgengilegir og sjást ekki berum augum, t.d. lagnir, dren, skólp og þak.
Eignin skiptist í forstofu, gang, eldhús, stofu, þrjú svefnherbergi, baðherbergi og þvottahús. Sér geymsla er á jarðhæð.
Forstofa er með flísum á gólfi og tvöföldum fataskáp.
Eldhús: Flísar á gólfi og hvít innrétting sem hefur verið filmuð að hluta. Ljósar málaðar flísar á milli skápa. Ný eldavél með spanhellum og gott skápa- og bekkjarpláss. Rúmgóður borðkrókur með hvíttuðu harðparketi á gólfi og hurð til vestur út á steyptar svalir.
Stofa er með hvíttuðu harðparketi á gólfi og gluggum til tveggja átta.
Svefnherberginu eru þrjú, öll með hvíttuðu harðparketi á gólfi. Hvítir fataskápar í hjónaherbergi.
Baðherbergi var tekið í gegn 2021 á snyrtilegan hátt. Walk-in sturta með svörtum sturtutækjum, upphengt wc og ný hvít innrétting. Þiljur á öllum veggjum.
Þvottahús er með flísum á gólfi, bekkplötu og hillum.
Sér geymsla er á jarðhæð.
Annað:
- Búið er að setja upp hleðslustöðvar fyrir rafmangsbíla.
- Búið er að taka inn ljósleiðara
- Góðar sameiginlegar geymslur eru á jarðhæð fyrir hjól og kerrur o.fl.
- Snyrtileg sameign.
- Húsið er nýlega málað og múrviðgert.
- Þak hússins er nýlega málað.
- Eignin er í einkasölu
Um skoðunar- og aðgæsluskyldu:
Í lögum um fasteignakaup nr. 40/2002 er kveðið á um ríka skoðunarskyldu kaupenda á fasteignum. Fasteignasalan Hvammur skorar því á væntanlega kaupendur að kynna sér vel ástand fasteigna fyrir kauptilboðsgerð og leita til þar til bærra sérfræðinga um nánari skoðun ef með þarf.
Forsendur söluyfirlits:
Söluyfirlit er samið af fasteignasala í samræmi við ákvæði laga nr. 70/2015. Þær upplýsingar sem fram koma í söluyfirliti þessu eru sóttar í opinberar skrár, til seljanda sjálfs og eftir atvikum til húsfélags. Seljandi veitir upplýsingar um eign í samræmi við upplýsingaskyldu laga um fasteignakaup nr. 40/2002. Fasteignasali sannreynir að þær upplýsingar séu réttar með sjónskoðun á eigninni. Fasteignasali getur ekki fullyrt um ástand og eiginleika þeirra hluta fasteigna sem ekki eru aðgengilegir og sjást ekki berum augum, t.d. lagnir, dren, skólp og þak.
Ár
Fasteignamat
Kaupverð
Stærð
Fermetraverð
16. apr. 2019
26.200.000 kr.
31.000.000 kr.
94.1 m²
329.437 kr.
14. feb. 2014
16.500.000 kr.
17.500.000 kr.
94.1 m²
185.972 kr.
21. maí. 2010
13.900.000 kr.
13.196.000 kr.
94.1 m²
140.234 kr.
Byggt á upplýsingum úr Þjóðskrá Íslands frá 2006-2025