Upplýsingar
Byggt 1999
89,1 m²
3 herb.
1 baðherb.
2 svefnh.
Sérinngangur
Lýsing
Fasteignasalan Hvammur - 466-1600
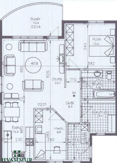
Eiðsvallagata 36 íbúð 201 - Björt þriggja herbergja íbúð á efri hæð í fjórbýli á eyrinni - stærð 89,1 m²
Eignin skiptist í forstofu, eldhús, baðherbergi, stofu, tvö svefnherbergi og þvottahúss auk geymslulofts.
Forstofan er með dökkum flísum á gólfi, fataskáp og fataslá.
Eldhúsið er með snyrtilegri innréttingu og parket á gólfi. Ljósar flísar eru á milli skápa og dökk borðplata. Góður borðkrókur með glugga til suðurs.
Baðherbergið er með snyrtilegri innréttingu, dökkum flísum á gólfi og ljósum flísum á veggjum. Þar er rúmgóð sturta með gleri, auk handklæðaofns. Hiti er í gólfi.
Stofan er með parketi á gólfi og þaðan er hægt að ganga út á steyptar rúmgóðar svalir til vesturs.
Svefnherbergin eru tvö á báðum er parket á gólfi og fataskápar. Í hjónaherberginu er fjórfaldur fataskápur.
Í þvottahúsinu eru flísar á gólfi og hvít sprautulökkuð innrétting með efri og neðri skápum, stæði fyrir þvottavél og þurrkara, dökk borðplöta með vaski.
Geymsluloft er yfir allri íbúðinni og uppá það í farið um fellistiga í þvottahúsi.
Sameiginleg geymsla/tæknirými er undir stigapalli.
Sameiginleg stór lóð er vestan við húsið.
Annað:
- Innréttingar í eldhúsi og á baðherbergi, skápar og innihurðar eru úr spónlögðum kirsuberjavið.
- Spónlagt eikarparket er á gólfi fyrir utan baðherbergi og geymslu en þar eru flísar.
- Ljósleiðari er íbúðinni
- Snjóbræðsla er á stigapalli og í tröppum
- Stutt er í leik- og grunnskóla, verslanir og miðbæ Akureyrar
- Íbúðin getur verið laus til afhendingar fljótlega.
Um skoðunar- og aðgæsluskyldu:
Í lögum um fasteignakaup nr. 40/2002 er kveðið á um ríka skoðunarskyldu kaupenda á fasteignum. Fasteignasalan Hvammur skorar því á væntanlega kaupendur að kynna sér vel ástand fasteigna fyrir kauptilboðsgerð og leita til þar til bærra sérfræðinga um nánari skoðun ef með þarf.
Forsendur söluyfirlits:
Söluyfirlit er samið af fasteignasala í samræmi við ákvæði laga nr. 70/2015. Þær upplýsingar sem fram koma í söluyfirliti þessu eru sóttar í opinberar skrár, til seljanda sjálfs og eftir atvikum til húsfélags. Seljandi veitir upplýsingar um eign í samræmi við upplýsingaskyldu laga um fasteignakaup nr. 40/2002. Fasteignasali sannreynir að þær upplýsingar séu réttar með sjónskoðun á eigninni.
Fasteignasali getur ekki fullyrt um ástand og eiginleika þeirra hluta fasteigna sem ekki eru aðgengilegir og sjást ekki berum augum, t.d. lagnir, dren, skólp og þak.
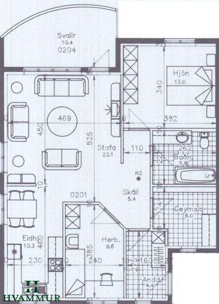
Eiðsvallagata 36 íbúð 201 - Björt þriggja herbergja íbúð á efri hæð í fjórbýli á eyrinni - stærð 89,1 m²
Eignin skiptist í forstofu, eldhús, baðherbergi, stofu, tvö svefnherbergi og þvottahúss auk geymslulofts.
Forstofan er með dökkum flísum á gólfi, fataskáp og fataslá.
Eldhúsið er með snyrtilegri innréttingu og parket á gólfi. Ljósar flísar eru á milli skápa og dökk borðplata. Góður borðkrókur með glugga til suðurs.
Baðherbergið er með snyrtilegri innréttingu, dökkum flísum á gólfi og ljósum flísum á veggjum. Þar er rúmgóð sturta með gleri, auk handklæðaofns. Hiti er í gólfi.
Stofan er með parketi á gólfi og þaðan er hægt að ganga út á steyptar rúmgóðar svalir til vesturs.
Svefnherbergin eru tvö á báðum er parket á gólfi og fataskápar. Í hjónaherberginu er fjórfaldur fataskápur.
Í þvottahúsinu eru flísar á gólfi og hvít sprautulökkuð innrétting með efri og neðri skápum, stæði fyrir þvottavél og þurrkara, dökk borðplöta með vaski.
Geymsluloft er yfir allri íbúðinni og uppá það í farið um fellistiga í þvottahúsi.
Sameiginleg geymsla/tæknirými er undir stigapalli.
Sameiginleg stór lóð er vestan við húsið.
Annað:
- Innréttingar í eldhúsi og á baðherbergi, skápar og innihurðar eru úr spónlögðum kirsuberjavið.
- Spónlagt eikarparket er á gólfi fyrir utan baðherbergi og geymslu en þar eru flísar.
- Ljósleiðari er íbúðinni
- Snjóbræðsla er á stigapalli og í tröppum
- Stutt er í leik- og grunnskóla, verslanir og miðbæ Akureyrar
- Íbúðin getur verið laus til afhendingar fljótlega.
Um skoðunar- og aðgæsluskyldu:
Í lögum um fasteignakaup nr. 40/2002 er kveðið á um ríka skoðunarskyldu kaupenda á fasteignum. Fasteignasalan Hvammur skorar því á væntanlega kaupendur að kynna sér vel ástand fasteigna fyrir kauptilboðsgerð og leita til þar til bærra sérfræðinga um nánari skoðun ef með þarf.
Forsendur söluyfirlits:
Söluyfirlit er samið af fasteignasala í samræmi við ákvæði laga nr. 70/2015. Þær upplýsingar sem fram koma í söluyfirliti þessu eru sóttar í opinberar skrár, til seljanda sjálfs og eftir atvikum til húsfélags. Seljandi veitir upplýsingar um eign í samræmi við upplýsingaskyldu laga um fasteignakaup nr. 40/2002. Fasteignasali sannreynir að þær upplýsingar séu réttar með sjónskoðun á eigninni.
Fasteignasali getur ekki fullyrt um ástand og eiginleika þeirra hluta fasteigna sem ekki eru aðgengilegir og sjást ekki berum augum, t.d. lagnir, dren, skólp og þak.