Upplýsingar
Verðsaga
Byggt 1989
75,3 m²
3 herb.
1 baðherb.
2 svefnh.
Sameiginl. inngangur
Lýsing
EIGNAVER 460 6060
Hjallalundur 22 - 201
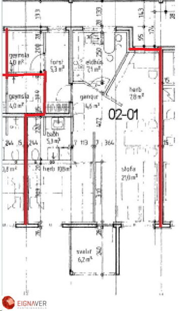
Þriggja herbergja, 75,3 fm. íbúð á 2. hæð ásamt stæði í bílageymslu í góðu fjölbýli í Lundahverfi á Akureyri.
Eignin skiptist í forstofu, geymslu, baðherbergi, tvö svefnherbergi, eldhús og stofu ásamt lítilli sólstofu.
Stæði í bílakjallara hússins fylgir með og er á sér fastanúmeri, F225-2808.
Lýsing eignar:
Forstofa, parket á gólfi, fataskápur.
Geymsla, til vinstri við forstofu er geymsla með dúk á gólfi, góðar hillur.
Eldhús er með ljósri innréttingu, parket á gólfi. Gluggi til norðurs. Nýleg bekkjarplata, hurðir innréttingar hafa verið málaðar.
Stofa er með parketi á gólfi og úr stofu er gengið út í sólstofu sem snýr til suðurs. Sólstofa er með viðarklæðningu á gólfi.
Svefnherbergi eru tvö, parket á gólfi minna herbergisins en dúkur og góður skápur er í hjónaherbergi.
Baðherbergi flísar á gólfi og á veggjum í sturtu. Ljós innrétting með nýlegri bekkjarplötu. Tengi fyrir þvottavél og þurrkara.
Annað:
- Vel skipulögð íbúð á góðum stað.
- Eigninni fylgir gott stæði í bílakjallara.
- Í kjallara er sameiginleg geymsla fyrir dekk, hjólageymsla og aðstaða til að þvo bíla.
Eignin er í einkasölu hjá Eignaveri fasteignasölu ehf.
Nánari upplýsingar veita:
Begga s: 845-0671 / begga@eignaver.is
Tryggvi s: 862-7919 / tryggvi@eignaver.is
Arnar s: 898-7011 / arnar@eignaver.is
Hjallalundur 22 - 201
Þriggja herbergja, 75,3 fm. íbúð á 2. hæð ásamt stæði í bílageymslu í góðu fjölbýli í Lundahverfi á Akureyri.
Eignin skiptist í forstofu, geymslu, baðherbergi, tvö svefnherbergi, eldhús og stofu ásamt lítilli sólstofu.
Stæði í bílakjallara hússins fylgir með og er á sér fastanúmeri, F225-2808.
Lýsing eignar:
Forstofa, parket á gólfi, fataskápur.
Geymsla, til vinstri við forstofu er geymsla með dúk á gólfi, góðar hillur.
Eldhús er með ljósri innréttingu, parket á gólfi. Gluggi til norðurs. Nýleg bekkjarplata, hurðir innréttingar hafa verið málaðar.
Stofa er með parketi á gólfi og úr stofu er gengið út í sólstofu sem snýr til suðurs. Sólstofa er með viðarklæðningu á gólfi.
Svefnherbergi eru tvö, parket á gólfi minna herbergisins en dúkur og góður skápur er í hjónaherbergi.
Baðherbergi flísar á gólfi og á veggjum í sturtu. Ljós innrétting með nýlegri bekkjarplötu. Tengi fyrir þvottavél og þurrkara.
Annað:
- Vel skipulögð íbúð á góðum stað.
- Eigninni fylgir gott stæði í bílakjallara.
- Í kjallara er sameiginleg geymsla fyrir dekk, hjólageymsla og aðstaða til að þvo bíla.
Eignin er í einkasölu hjá Eignaveri fasteignasölu ehf.
Nánari upplýsingar veita:
Begga s: 845-0671 / begga@eignaver.is
Tryggvi s: 862-7919 / tryggvi@eignaver.is
Arnar s: 898-7011 / arnar@eignaver.is
Ár
Fasteignamat
Kaupverð
Stærð
Fermetraverð
4. jan. 2011
11.400.000 kr.
13.250.000 kr.
75.3 m²
175.963 kr.
Byggt á upplýsingum úr Þjóðskrá Íslands frá 2006-2025