Upplýsingar
Verðsaga
Byggt 1988
67,4 m²
2 herb.
1 baðherb.
1 svefnh.
Sameiginl. inngangur
Lýsing
EIGNAVER 460 6060
Víðilundur 24-105
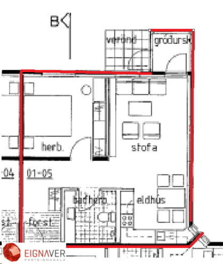
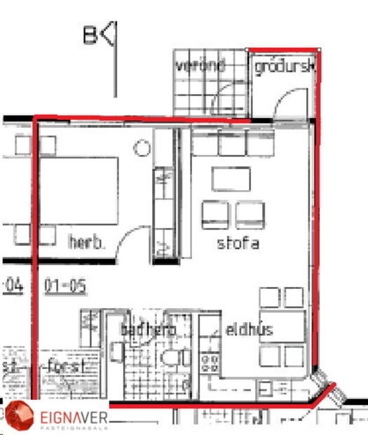
Góð 67,4 fm 2ja herbergja íbúð á fyrstu hæð með lítilli sólstofu sem snýr til vesturs. Sérgeymsla á gangi framan við íbúð og einnig í sameign.
Nánari lýsing:
Forstofa er rúmgóð með góðum fataskáp og parket á gólfi.
Gangur, parket á gólfi
Svefnherbergið er mjög rúmgott, stór og góður fataskápur og gluggi til suðurs. Parket á gólfi.
Eldhús er með hvítri/beyki innréttingu, beykiparket á gólfi og flísar á milli skápa. Ísskápur getur fylgt.
Baðherbergið er með flísum á gólfi og hluta veggja, sturtuklefa, ágætis innréttingu og tengi fyrir þvottavél.
Stofan er með parketi á gólfi, úr stofu er gengið í sólstofu til vesturs og þaðan er farið á litla hellulagða verönd sem snýr mót vestri.
Lyfta er í húsinu og sérgeymsla í sameign í kjallara hússins.
Annað:
- Íbúðirnar eru sérstaklega ætlaðar fólki 60 ára og eldri.
- Aðgengi fyrir íbúa að þjónustumiðstöð á neðstu hæð Víðilundar 22. Innangengt er í þjónustumiðstöð.
- Laus fljótlega.
Íbúðin er í einkasölu hjá Eignaveri fasteignasölu.
Nánari upplýsingar veita:
Begga s: 845-0671 / begga@eignaver.is
Arnar s: 898-7011 / arnar@eignaver.is
Tryggvi s: 862-7919 / tryggvi@eignaver.is
Víðilundur 24-105
Góð 67,4 fm 2ja herbergja íbúð á fyrstu hæð með lítilli sólstofu sem snýr til vesturs. Sérgeymsla á gangi framan við íbúð og einnig í sameign.
Nánari lýsing:
Forstofa er rúmgóð með góðum fataskáp og parket á gólfi.
Gangur, parket á gólfi
Svefnherbergið er mjög rúmgott, stór og góður fataskápur og gluggi til suðurs. Parket á gólfi.
Eldhús er með hvítri/beyki innréttingu, beykiparket á gólfi og flísar á milli skápa. Ísskápur getur fylgt.
Baðherbergið er með flísum á gólfi og hluta veggja, sturtuklefa, ágætis innréttingu og tengi fyrir þvottavél.
Stofan er með parketi á gólfi, úr stofu er gengið í sólstofu til vesturs og þaðan er farið á litla hellulagða verönd sem snýr mót vestri.
Lyfta er í húsinu og sérgeymsla í sameign í kjallara hússins.
Annað:
- Íbúðirnar eru sérstaklega ætlaðar fólki 60 ára og eldri.
- Aðgengi fyrir íbúa að þjónustumiðstöð á neðstu hæð Víðilundar 22. Innangengt er í þjónustumiðstöð.
- Laus fljótlega.
Íbúðin er í einkasölu hjá Eignaveri fasteignasölu.
Nánari upplýsingar veita:
Begga s: 845-0671 / begga@eignaver.is
Arnar s: 898-7011 / arnar@eignaver.is
Tryggvi s: 862-7919 / tryggvi@eignaver.is
Ár
Fasteignamat
Kaupverð
Stærð
Fermetraverð
22. jún. 2016
15.550.000 kr.
20.000.000 kr.
67.4 m²
296.736 kr.
28. ágú. 2012
10.550.000 kr.
16.900.000 kr.
67.4 m²
250.742 kr.
Byggt á upplýsingum úr Þjóðskrá Íslands frá 2006-2025