Löggiltir fasteignasalar innan Félags fasteignasala:
Ástþór Reynir Guðmundsson
Vigdís R. S. Helgadóttir
Guðbjörg Helga Jóhannesdóttir
Gylfi Jens Gylfason
Sigrún Matthea Sigvaldadóttir
Sveinn Gíslason
Páll Guðmundsson
Þórarinn Arnar Sævarsson
Berglind Hólm Birgisdóttir
Þorsteinn Gíslason
Guðrún Lilja Tryggvadóttir
Brynjar Ingólfsson
Guðný Þorsteinsdóttir
Bjarni Blöndal
Þorsteinn Ólafs
Þórdís Björk Davíðsdóttir
Jóhann Kristinn Jóhannesson
Bjarný Björg Arnórsdóttir
Salvör Þóra Davíðsdóttir
Magga Sigríður Gísladóttir
Upplýsingar
Verðsaga
Byggt 2006
132,6 m²
4 herb.
1 baðherb.
3 svefnh.
Þvottahús
Sameiginl. inngangur
Lyfta
Lýsing
Dagbjartur Willardsson löggiltur fasteignasali og RE/MAX kynna, Ásakór 3, Kópavogi , Íbúð merkt: 0101. Björt og falleg 4ja herbergja íbúð á 1. hæð. Eignin er skráð samkv. Þjóðskrá 132,6 fm og þar af er geymsla 6,8 fm
FÁÐU SENT SÖLUYIRLIT YFIR EIGNINA HÉR.
Nánari lýsing:
Aðkoma: Malbikuð stæði fyrir framan húsið og eru rafhleðslustöðvar við nokkur stæði.
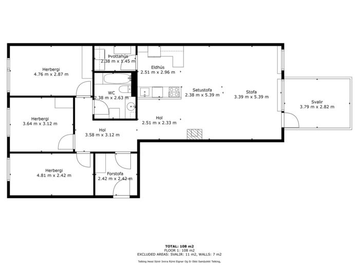
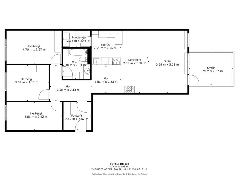
Forstofa: Stór forstofa með flísum á gólfi og fataskáp.
Stofa/borðstofa: Flísar á gólfi. Útengt á svalir sem eru 9,4 fermetrar og snúa til suðurs.
Eldhús: Flísar á gólfi. Eikarinnréttting. Bakstursofn og helluborð með háfi yfir.
Þvottahús: Er inn af eldhúsi. Flísar á gólfi. Innrétting þar sem þvottavél og þurrkari eru í vinnuhæð. Góður búrskápur er einnig í rýminu.
Svefnherbergi: Eru þrjú og eru þau öll rúmgóð. Fataskápar eru í öllum herbergjanna og parket á gólfi.
Baðherbergi: Flísalagt í hólf og gólf. Hvít innrétting með handlaug. Upphengt salerni.
Svalir: Útgengt úr stofu á svalir sem eru 9,4 fm og snúa í suður.
Geymsla: Læst geymsla á jarðhæð sem er skráð 6,8 fm. Sameiginleg hjóla og vagnageymsla er á jarðhæð.
Lóð: Lóðin er sameiginleg með Ásakór 1 og er 4.326 fm og er frágengin og ræktuð.
Hverfið: Fjölskylduvænt umhverfi sem býður uppá fjölbreytta möguleika, skólar, leikskólar, íþróttamannvirki íþróttafélags, sundlaug og þjónusta í göngu færi.
Ásakór 3 er einstaklega rúmgóð og björt íbúð með þremur stórum svefnherbergjum. Rúmgóðar svalir sem snúa til suðurs. Mjög flott fjölskylduíbúð.
Allar nánari upplýsingar veitir:
Dagbjartur Willardsson lgf hjá RE/MAX í s: 861-7507 eða á daddi@remax.is
- Ég býð upp á frítt söluverðmat á þinni eign og veiti góða og lipra þjónustu. -
Gjöld sem kaupandi þarf að greiða vegna kaupanna:
1. Stimpilgjald af kaupsamningi - 0,8% af heildarfasteignamati hjá einstaklingum. Sé um fyrstu kaup að ræða er stimpilgjald af kaupsamningi 0,4% af heildarfasteignamati.
2. Stimpilgjald af kaupsamningi - 1,6% af heildarfasteignamati hjá lögaðilum.
3. Þinglýsingargjald af kaupsamningi, veðskuldabréfi, veðleyfi og fl. 2.700 kr. af hverju skjali.
4. Lántökugjald lánastofnunar - breytilegt, sjá gjaldskrá á heimasíðum lánastofnana.
5. Umsýslugjald til fasteignasölu 69.900 kr. m.vsk.
Í lögum um fasteignakaup nr. 40/2002 er kveðið á um ríka skoðunarskyldu kaupenda á fasteignum. Vill RE/MAX því skora á væntanlega kaupendur að kynna sér vel ástand fasteigna fyrir kauptilboðsgerð og leita til þar til bærra sérfræðinga um nánari skoðun.
FÁÐU SENT SÖLUYIRLIT YFIR EIGNINA HÉR.
Nánari lýsing:
Aðkoma: Malbikuð stæði fyrir framan húsið og eru rafhleðslustöðvar við nokkur stæði.
Forstofa: Stór forstofa með flísum á gólfi og fataskáp.
Stofa/borðstofa: Flísar á gólfi. Útengt á svalir sem eru 9,4 fermetrar og snúa til suðurs.
Eldhús: Flísar á gólfi. Eikarinnréttting. Bakstursofn og helluborð með háfi yfir.
Þvottahús: Er inn af eldhúsi. Flísar á gólfi. Innrétting þar sem þvottavél og þurrkari eru í vinnuhæð. Góður búrskápur er einnig í rýminu.
Svefnherbergi: Eru þrjú og eru þau öll rúmgóð. Fataskápar eru í öllum herbergjanna og parket á gólfi.
Baðherbergi: Flísalagt í hólf og gólf. Hvít innrétting með handlaug. Upphengt salerni.
Svalir: Útgengt úr stofu á svalir sem eru 9,4 fm og snúa í suður.
Geymsla: Læst geymsla á jarðhæð sem er skráð 6,8 fm. Sameiginleg hjóla og vagnageymsla er á jarðhæð.
Lóð: Lóðin er sameiginleg með Ásakór 1 og er 4.326 fm og er frágengin og ræktuð.
Hverfið: Fjölskylduvænt umhverfi sem býður uppá fjölbreytta möguleika, skólar, leikskólar, íþróttamannvirki íþróttafélags, sundlaug og þjónusta í göngu færi.
Ásakór 3 er einstaklega rúmgóð og björt íbúð með þremur stórum svefnherbergjum. Rúmgóðar svalir sem snúa til suðurs. Mjög flott fjölskylduíbúð.
Allar nánari upplýsingar veitir:
Dagbjartur Willardsson lgf hjá RE/MAX í s: 861-7507 eða á daddi@remax.is
- Ég býð upp á frítt söluverðmat á þinni eign og veiti góða og lipra þjónustu. -
Gjöld sem kaupandi þarf að greiða vegna kaupanna:
1. Stimpilgjald af kaupsamningi - 0,8% af heildarfasteignamati hjá einstaklingum. Sé um fyrstu kaup að ræða er stimpilgjald af kaupsamningi 0,4% af heildarfasteignamati.
2. Stimpilgjald af kaupsamningi - 1,6% af heildarfasteignamati hjá lögaðilum.
3. Þinglýsingargjald af kaupsamningi, veðskuldabréfi, veðleyfi og fl. 2.700 kr. af hverju skjali.
4. Lántökugjald lánastofnunar - breytilegt, sjá gjaldskrá á heimasíðum lánastofnana.
5. Umsýslugjald til fasteignasölu 69.900 kr. m.vsk.
Í lögum um fasteignakaup nr. 40/2002 er kveðið á um ríka skoðunarskyldu kaupenda á fasteignum. Vill RE/MAX því skora á væntanlega kaupendur að kynna sér vel ástand fasteigna fyrir kauptilboðsgerð og leita til þar til bærra sérfræðinga um nánari skoðun.
Ár
Fasteignamat
Kaupverð
Stærð
Fermetraverð
8. jún. 2018
41.700.000 kr.
50.900.000 kr.
132.6 m²
383.861 kr.
16. des. 2015
32.750.000 kr.
16.250.000 kr.
132.6 m²
122.549 kr.
22. des. 2009
28.980.000 kr.
22.500.000 kr.
132.6 m²
169.683 kr.
28. jún. 2006
14.160.000 kr.
104.656.000 kr.
536.7 m²
194.999 kr.
Byggt á upplýsingum úr Þjóðskrá Íslands frá 2006-2025