Upplýsingar
Verðsaga
Byggt 2022
65,9 m²
2 herb.
1 baðherb.
1 svefnh.
Sameiginl. inngangur
Lýsing
Þórhallur Biering og Betri Stofan kynna : Sérlega fallega og bjarta tveggja herbergja íbúð með suður-verönd, á annari hæð í lyftuhúsii á vinsælum stað í Kópavogi (byggt 2022). Útgegnt í sameiginlegan suður-garð.
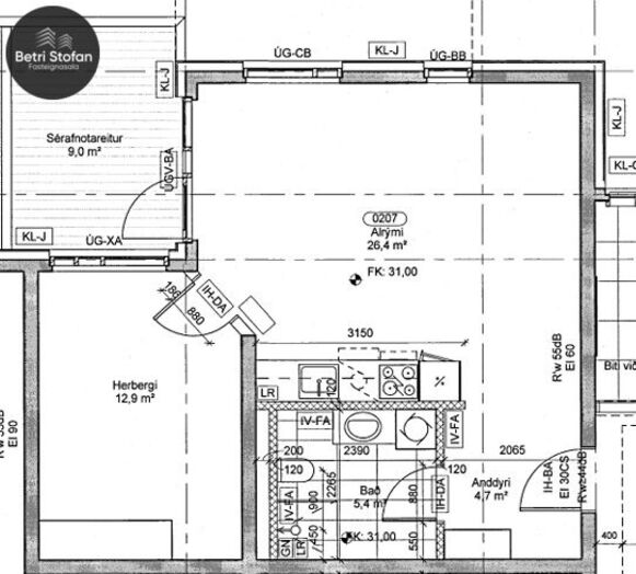
Komið er inn í rúmgóða forstofu með fataskáp.
Baðherbergið er með flísum á gólfi og hluta veggja. Þar er falleg innrétting, upphengt salerni og sturta. Tengi er fyrir þvottavél á baðherberginu.
Stofan er góð og björt, með útgengi á góða verönd með skjólveggjum.
Svefnherbergið er rúmgott með stórum fastaskaáp.
Eldhúsið er með fallegri innréttingu, skápapláss er ágætt og vinnuaðstaða fín. Gott pláss er fyrir borðstofuborð á milli eldhúss og stofu.
Gólfefni eru parket og flísar.
Í sameign er sér geymsla. Tvær hjólageymslur eru í sameigninni.
Falleg eign í nýlegu húsi á einum eftirsóttasta stað borgarinnar.
Verslanir, veitingastaðir og þjónusta í göngufæri. Stutt í sklóla og íþróttir.
Allar nánari upplýsingar gefur:
Þórhallur Biering löggiltur fasteignasali í síma 896-8232 eða thorhallur@betristofan.is
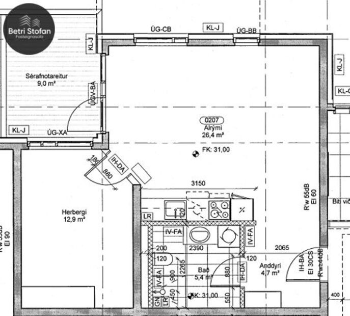
Komið er inn í rúmgóða forstofu með fataskáp.
Baðherbergið er með flísum á gólfi og hluta veggja. Þar er falleg innrétting, upphengt salerni og sturta. Tengi er fyrir þvottavél á baðherberginu.
Stofan er góð og björt, með útgengi á góða verönd með skjólveggjum.
Svefnherbergið er rúmgott með stórum fastaskaáp.
Eldhúsið er með fallegri innréttingu, skápapláss er ágætt og vinnuaðstaða fín. Gott pláss er fyrir borðstofuborð á milli eldhúss og stofu.
Gólfefni eru parket og flísar.
Í sameign er sér geymsla. Tvær hjólageymslur eru í sameigninni.
Falleg eign í nýlegu húsi á einum eftirsóttasta stað borgarinnar.
Verslanir, veitingastaðir og þjónusta í göngufæri. Stutt í sklóla og íþróttir.
Allar nánari upplýsingar gefur:
Þórhallur Biering löggiltur fasteignasali í síma 896-8232 eða thorhallur@betristofan.is
Gjöld sem kaupandi þarf að standa straum af ef að kaupum verður:
1. Stimpilgjald af fasteignamati fasteignar er 0.8%, en 0,4% fyrir fyrstu kaup og 1,6% fyrir lögaðila.
2. Þinglýsingargjald: kaupsamningi, skuldabréfi, veðleyfi, afsali o.s.frv. er kr. 2.700 af hverju skjali.
3. Lántökukostnaður samkvæmt verðskrá viðkomandi lánastofnunar.
4. Umsýslugjald til fasteignasölu skv. gjaldskrá.
Ár
Fasteignamat
Kaupverð
Stærð
Fermetraverð
30. nóv. 2022
4.260.000 kr.
60.900.000 kr.
65.9 m²
924.127 kr.
Byggt á upplýsingum úr Þjóðskrá Íslands frá 2006-2025