Upplýsingar
Byggt 2023
60 m²
2 herb.
1 baðherb.
1 svefnh.
Sameiginl. inngangur
Lyfta
Laus strax
Lýsing
Valný fasteignasala og Valgeir Leifur löggiltur fasteignasali kynna:
Beykiskógar 19, íbúð 101, 300 Akranes / Möguleiki á hlutdeildarláni
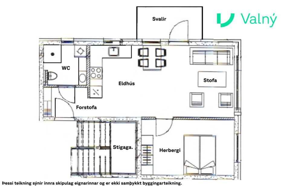
Um er að ræða fjögurra hæða nýbyggingu með 11 íbúðum. Íbúðin er tveggja herbergja og staðsett á fyrstu hæð í lyftuhúsi. Hún afhendist fullbúin án gólfefna, að undanskildum votrýmum sem eru flísalögð. Sérgeymsla, 5,2 m² að stærð, fylgir í sameign á fyrstu hæð. Möguleiki er á að sækja um hlutdeildarlán vegna kaupa á eigninni.
Smelltu hér til að fá söluyfirlit.
Áttu rétt á hlutdeildarláni? Smelltu hér til að athuga stöðuna.
Bókið skoðun hjá:
Valgeir Leifur / Löggiltur fasteignasali / 780-2575 / valgeir@valny.is
Samkvæmt fasteignaskrá HMS er eignin skráð samtals 60.0 m², þar af er íbúðarrými 54,8 m² og sérgeymsla á fyrstu hæð hússins 5,2 m². Eign merkt 01-01, fastanúmer 236-9623 ásamt öllu því sem eigninni fylgir, þar með talið tilheyrandi lóðar og sameignarréttindi.
Lýsing og skipulag eignar:
Forstofa er með fataskáp.
Eldhús er með vandaðri innréttingu með mjúklokun á skúffum og hurðum ásamt innfeldum ísskáp og uppþvottavél. Einnig er ofn, háfur og helluborð.
Stofa er björt og útgengt út á verönd.
Svefnherbergi er rúmgott með fataskáp.
Baðherbergi er flísalagt í hólf og gólf, með innréttingu, upphengdu salerni og sturtu. Innan baðherbergis er aðstaða fyrir bæði þvottavél og þurrkara.
Geymsla er 5,2 m² að stærð og staðsett á fyrstu hæð hússins.
Sameign:
Sameiginleg hjóla- og vagnageymsla er á fyrstu hæð. Póstkassar eru staðsettir við anddyri. Stigagangur er með teppum og lyfta er í húsinu.
Byggingarlýsing:
Húsið er staðsteypt, einangrað með steinull og klætt með báruáli, nema jarðhæð er klædd með sléttu áli. Í íbúðunum er ofnakerfi. Forhitari er á heitu neysluvatni. Gluggar eru ál-trégluggar og hurðar eru ál að utan og tré að innan. Þak er uppstólað valmaþak, klætt með lituðu áli og einangrað ofan á plötu.
Lóð og aðkoma:
Lóð verður fullfrágengin samkvæmt samþykktum teikningum. Hellulögð stéttar verða með snjóbræðslukerfi fyrir framan aðalinngang. Malbikuð bílastæði verða 19 talsins, þar af eru 5 stæði með ídráttarrörum að tengibrunni fyrir mögulega rafbílahleðslu. Að öðru leyti verður lóðin tyrfð eða með náttúrulegum móa.
Nánari upplýsingar veitir Valgeir Leifur / Löggiltur fasteignasali / 780-2575 / valgeir@valny.is
Ertu að leita að nýbyggingum? Skoðaðu úrvalið hjá Valný – smelltu hér.
Ertu að hugsa um að selja? Smelltu hér og fáðu frítt verðmat.
Ekki missa af draumaeigninni – fylgstu með okkur á Instagram og Facebook
Lestu reynslusögur frá ánægðum viðskiptavinum okkar.
- Fasteignasalan sem opnar dyrnar að þinni eign.
Valný Real Estate Agency advises both sellers and potential buyers, who do not have Icelandic as their first language, to get the assistance of a translator when viewing and signing all necessary documents relating to buying and selling properties.
Um skoðunar- og aðgæsluskyldu: Í lögum um fasteignakaup nr. 40/2002 er kveðið á um ríka skoðunarskyldu kaupenda á fasteignum. Valný fasteignasala bendir öllum sem hugsa sér að kaupa, að kynna sér vel ástand fasteignarinnar við skoðun fyrir tilboðsgerð og leita til sérfræðinga um nánari ástandsskoðun ef þörf þykir.
Forsendur söluyfirlits: Söluyfirlit er samið af fasteignasala í samræmi við ákvæði laga nr. 70/2015. Þær upplýsingar sem fram koma í söluyfirliti þessu eru sóttar í opinberar skrár, til seljanda sjálfs og eftir atvikum til húsfélags. Seljandi veitir upplýsingar um eign í samræmi við upplýsingaskyldu laga um fasteignakaup nr. 40/2002. Fasteignasali sannreynir að þær upplýsingar séu réttar með sjónskoðun á eigninni. Fasteignasali getur ekki fullyrt um ástand og eiginleika þeirra hluta fasteigna sem ekki eru aðgengilegir og sjást ekki berum augum, t.d. lagnir, dren, skólp og þak.
Kostnaður sem kaupandi þarf að standa straum af:
1. Stimpilgjald: 0,8% af fasteignamati, 0,4% fyrir fyrstu kaupendur og 1,6% fyrir lögaðila.
2. Þinglýsingagjald: 2.700 kr. á hvert skjal (kaupsamningur, veðleyfi o.fl.)
3. Lántökukostnaður: Samkvæmt verðskrá viðkomandi lánastofnunar.
4. Þjónustu- og umsýslugjald fasteignasölu: Samkvæmt gjaldskrá Valný fasteignasölu.
5. Ef um nýbyggingu er að ræða, ber kaupanda að greiða skipulagsgjald sem nemur 0,3% af brunabótamati þegar það er innheimt.
Valný fasteignasala | www.valny.is | Tjarnargötu 2, 230 Reykjanesbær | Opið alla virka daga frá 9:00-16:00
Beykiskógar 19, íbúð 101, 300 Akranes / Möguleiki á hlutdeildarláni
Um er að ræða fjögurra hæða nýbyggingu með 11 íbúðum. Íbúðin er tveggja herbergja og staðsett á fyrstu hæð í lyftuhúsi. Hún afhendist fullbúin án gólfefna, að undanskildum votrýmum sem eru flísalögð. Sérgeymsla, 5,2 m² að stærð, fylgir í sameign á fyrstu hæð. Möguleiki er á að sækja um hlutdeildarlán vegna kaupa á eigninni.
Smelltu hér til að fá söluyfirlit.
Áttu rétt á hlutdeildarláni? Smelltu hér til að athuga stöðuna.
Bókið skoðun hjá:
Valgeir Leifur / Löggiltur fasteignasali / 780-2575 / valgeir@valny.is
Samkvæmt fasteignaskrá HMS er eignin skráð samtals 60.0 m², þar af er íbúðarrými 54,8 m² og sérgeymsla á fyrstu hæð hússins 5,2 m². Eign merkt 01-01, fastanúmer 236-9623 ásamt öllu því sem eigninni fylgir, þar með talið tilheyrandi lóðar og sameignarréttindi.
Lýsing og skipulag eignar:
Forstofa er með fataskáp.
Eldhús er með vandaðri innréttingu með mjúklokun á skúffum og hurðum ásamt innfeldum ísskáp og uppþvottavél. Einnig er ofn, háfur og helluborð.
Stofa er björt og útgengt út á verönd.
Svefnherbergi er rúmgott með fataskáp.
Baðherbergi er flísalagt í hólf og gólf, með innréttingu, upphengdu salerni og sturtu. Innan baðherbergis er aðstaða fyrir bæði þvottavél og þurrkara.
Geymsla er 5,2 m² að stærð og staðsett á fyrstu hæð hússins.
Sameign:
Sameiginleg hjóla- og vagnageymsla er á fyrstu hæð. Póstkassar eru staðsettir við anddyri. Stigagangur er með teppum og lyfta er í húsinu.
Byggingarlýsing:
Húsið er staðsteypt, einangrað með steinull og klætt með báruáli, nema jarðhæð er klædd með sléttu áli. Í íbúðunum er ofnakerfi. Forhitari er á heitu neysluvatni. Gluggar eru ál-trégluggar og hurðar eru ál að utan og tré að innan. Þak er uppstólað valmaþak, klætt með lituðu áli og einangrað ofan á plötu.
Lóð og aðkoma:
Lóð verður fullfrágengin samkvæmt samþykktum teikningum. Hellulögð stéttar verða með snjóbræðslukerfi fyrir framan aðalinngang. Malbikuð bílastæði verða 19 talsins, þar af eru 5 stæði með ídráttarrörum að tengibrunni fyrir mögulega rafbílahleðslu. Að öðru leyti verður lóðin tyrfð eða með náttúrulegum móa.
Nánari upplýsingar veitir Valgeir Leifur / Löggiltur fasteignasali / 780-2575 / valgeir@valny.is
Ertu að leita að nýbyggingum? Skoðaðu úrvalið hjá Valný – smelltu hér.
Ertu að hugsa um að selja? Smelltu hér og fáðu frítt verðmat.
Ekki missa af draumaeigninni – fylgstu með okkur á Instagram og Facebook
Lestu reynslusögur frá ánægðum viðskiptavinum okkar.
- Fasteignasalan sem opnar dyrnar að þinni eign.
Valný Real Estate Agency advises both sellers and potential buyers, who do not have Icelandic as their first language, to get the assistance of a translator when viewing and signing all necessary documents relating to buying and selling properties.
Um skoðunar- og aðgæsluskyldu: Í lögum um fasteignakaup nr. 40/2002 er kveðið á um ríka skoðunarskyldu kaupenda á fasteignum. Valný fasteignasala bendir öllum sem hugsa sér að kaupa, að kynna sér vel ástand fasteignarinnar við skoðun fyrir tilboðsgerð og leita til sérfræðinga um nánari ástandsskoðun ef þörf þykir.
Forsendur söluyfirlits: Söluyfirlit er samið af fasteignasala í samræmi við ákvæði laga nr. 70/2015. Þær upplýsingar sem fram koma í söluyfirliti þessu eru sóttar í opinberar skrár, til seljanda sjálfs og eftir atvikum til húsfélags. Seljandi veitir upplýsingar um eign í samræmi við upplýsingaskyldu laga um fasteignakaup nr. 40/2002. Fasteignasali sannreynir að þær upplýsingar séu réttar með sjónskoðun á eigninni. Fasteignasali getur ekki fullyrt um ástand og eiginleika þeirra hluta fasteigna sem ekki eru aðgengilegir og sjást ekki berum augum, t.d. lagnir, dren, skólp og þak.
Kostnaður sem kaupandi þarf að standa straum af:
1. Stimpilgjald: 0,8% af fasteignamati, 0,4% fyrir fyrstu kaupendur og 1,6% fyrir lögaðila.
2. Þinglýsingagjald: 2.700 kr. á hvert skjal (kaupsamningur, veðleyfi o.fl.)
3. Lántökukostnaður: Samkvæmt verðskrá viðkomandi lánastofnunar.
4. Þjónustu- og umsýslugjald fasteignasölu: Samkvæmt gjaldskrá Valný fasteignasölu.
5. Ef um nýbyggingu er að ræða, ber kaupanda að greiða skipulagsgjald sem nemur 0,3% af brunabótamati þegar það er innheimt.
Valný fasteignasala | www.valny.is | Tjarnargötu 2, 230 Reykjanesbær | Opið alla virka daga frá 9:00-16:00