Löggiltir fasteignasalar innan Félags fasteignasala:
Hafdís Rafnsdóttir
Dórothea E. Jóhannsdóttir
Sigurður Gunnlaugsson
Jón Gunnar Gíslason
Hafliði Halldórsson
Aðalsteinn Bjarnason
Margrét Rós Einarsdóttir
Guðný Ösp Ragnarsdóttir
Elka Guðmundsdóttir
Vista
fjölbýlishús

Asparskógar 11

300 Akranes

52.900.000 kr.

796.687 þ.kr./m2
Fasteignanúmer

F2514108

Fasteignamat

44.850.000 kr.

Brunabótamat

36.250.000 kr.

Áhvílandi

0 kr.

Arion banki – Reikna lán
Upplýsingar
Verðsaga
svg
Byggt 2022
svg
66,4 m²
svg
2 herb.
svg
1 baðherb.
svg
1 svefnh.

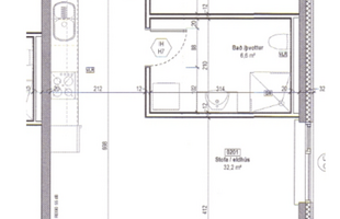
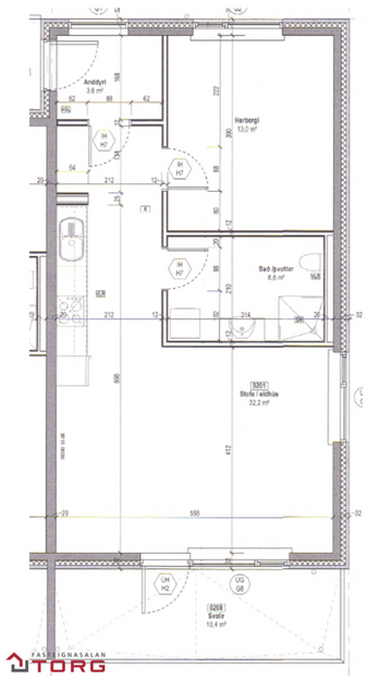
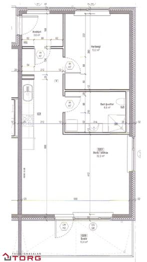
Lýsing


ENDAÍBÚÐ - SÉR INNGANGUR
TORG FASTEIGNASALA KYNNIR: Snyrtileg 66,4 fm, tveggja herbergja endaíbúð á efri hæð, með sér inngangi og rúmgóðum svölum til suðurs. Eignin skiptist í anddyri, gang sem tengir rými eignar, eldhús, stofu, svefnherbergi og baðherbergi. Allt innbú fylgir við afhendingu, nema persónulegir munir. Allar nánari upplýsingar veitir Matthildur Sunna Þorláksdóttir, lögfræðingur og löggiltur fasteignasali, í síma 690-4966 eða matthildur@fstorg.is - SÆKJA SÖLUYFIRLIT HÉR
 
Nánari lýsing:

Anddyri er flísalagt og með góðu skápaplássi.
Eldhús er með fallegri HTH innréttingu, hvítir neðri skápar og dökkir fyrir ofan og dökk borðplata. Ísskápur, háfur og uppþvottavél.
Baðherbergi er með dökkri innéttingu og efri speglaskáp, sturtu, upphengdu salerni, handklæðaofn og tengi fyrir þvottavél og þurrkara.
Svefnherbergi er rúmgott með góðu skápaplássi.
Stofan er rúmgóð með útgengi á svalir til suðurs.
Sameiginleg hjólageymsla er í sameign.
Fyrirhugað fasteignamat 2026 er 48.950.000 kr.

Forsendur söluyfirlits: 
Söluyfirlit er samið af fasteignasala í samræmi við ákvæði laga nr. 70/2015. Þær upplýsingar sem fram koma í söluyfirliti þessu eru sóttar í opinberar skrár, til seljanda sjálfs og eftir atvikum til húsfélags. Seljandi veitir upplýsingar um eign í samræmi við upplýsingaskyldu laga um fasteignakaup nr. 40/2002. Fasteignasali sannreynir að þær upplýsingar séu réttar með sjónskoðun á eigninni. Fasteignasali getur ekki fullyrt um ástand og eiginleika þeirra hluta fasteigna sem ekki eru aðgengilegir og sjást ekki berum augum, t.d. lagnir, dren, skólp og þak. 

Gjöld sem kaupandi þarf að standa straum af vegna kaupanna:
Stimpilgjald af kaupsamningi sem er hlutfall af fasteignamati. Stimpilgjald er 0,8% fyrir einstaklinga (0,4% við fyrstu kaup m.v. að lágmarki 50% eignarhlut) og 1,6% fyrir lögaðila.
Þinglýsingargjald hvers skjals er kr. 2.700,-. Lántökugjald lánastofnunar skv. gjaldskrá viðkomandi lánveitanda. Umsýsluþóknun fasteignasölu skv. gjaldskrá. Ef um nýbyggingu er að ræða greiðir kaupandi skipulagsgjald, 0,3% af brunabótamati, þegar það er lagt á. 
 
TORG fasteignasala bendir fasteignakaupendum á ríka skoðunarskyldu kaupenda sem kveðið er á í lögum um fasteignakaup nr. 40/2002. Skorað er á kaupendur að kynna sér vandlega ástand fasteigna og nýta til þess aðstoð sérfræðinga. Sömuleiðis er bent á upplýsingaskyldu seljanda samanber 26.gr. Laga nr.40/2002 um fasteignakaup og 25.gr. laga nr.26/1994 um fjöleignarhús. Seljanda er bent á að kynna sér tilvitnaðar lagagreinar.

Fasteignasalan TORG

Fasteignasalan TORG

Garðatorgi 5, 210 Garðabæ
phone
Ár
Fasteignamat
Kaupverð
Stærð
Fermetraverð
26. sep. 2023
37.150.000 kr.
43.500.000 kr.
66.4 m²
655.120 kr.
18. maí. 2022
13.350.000 kr.
36.200.000 kr.
66.4 m²
545.181 kr.
Byggt á upplýsingum úr Þjóðskrá Íslands frá 2006-2025
Fasteignasalan TORG

Fasteignasalan TORG

Garðatorgi 5, 210 Garðabæ
phone