Löggiltir fasteignasalar innan Félags fasteignasala:
Freyja Sigurðardóttir
Ágústa Hauksdóttir
Andrea Guðrún Gunnlaugsdóttir
Glódís Helgadóttir
Hlynur Halldórsson
Valgerður Ása Gissurardóttir
Upplýsingar
svg
Byggt 1927
svg
227,8 m²
svg
7 herb.
svg
2 baðherb.
svg
4 svefnh.
svg
Þvottahús
svg
Sérinngangur

Lýsing

SUÐURGATA 27 HAFNARFIRÐI, EIGNIN ER LAUS VIÐ KAUPSAMNING. 

Hraunhamar fasteignasala og Helgi Jón Harðarson sölustjóri. s. 893-2233 helgi@hraunhamar.is kynna: Glæsilegt og virðulegt og mikið endurnýjað 5-6 herbergja 227 fm einbýli á tveimur hæðum með kjallara við Suðurgötu 27 í Hafnarfirði. Þetta er ein af fallegri eldri eignum í gamla bænum og setur þetta virðulega hús mikin svip á hverfið. Húsið er byggt 1920 en hefur verið mikið endurnýjað og fengið mjög gott viðhald síðustu tvo áratugi. Það er stutt ganga í miðbæinn, grunnskóla, Flensborg ofl. Húsið stendur á fallegri afgirtri hornlóð.  Laust 

Fyrirhugað fasteignamat 2026 er 154.200.000 

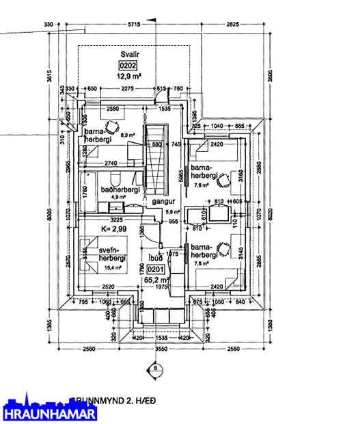
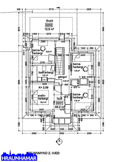
Nánari lýsing á efri hæð:
Hjónaherbergi: Gott og bjart herbergi með skápum, gegnheilt viðargólf.
Barnaherbergi I: Gott herbergi með skápum, gegnheilt viðargólf.
Barnaherbergi II: Gott herbergi með skápum, gegnheilt viðargólf.
Barnaherbergi III: Þetta herbergi er nýtt sem fataherbergi í dag. Gegnheilt viðargólf.
Baðherbergi: Mikið endurnýjað baðherbergi, upphengt salerni, náttúrusteinn í borði og vask, opin sturta, handklæðaofn. Flísar á gólfi og hluta af veggjum.

Nánari lýsing á neðri hæð:
Forstofa:  Opin forstofa með rúmgóðum, háum skápum. Flísar á gólfi.
Eldhús: Staðsett í viðbyggingu byggð árið 2007. Vel skipulagt með góðu skápaplássi, gert ráð fyrir stórum ísskáp, gaseldavél, gufugleypir, flísar á gólfi, innfelld lýsing í lofti, útgengt út á sólpall með heitum potti.
Borðstofa: Opið rými sem tengir saman stofu og eldhús. Gegnheilt viðargólf. Gengið niður í kjallara úr borðstofu úr rennihurð.
Stofa: Hlýleg, opin og björt með innfelldri lýsingu, góðri lofthæð, gegnheilt parket á gólfi.
Sjónvarpshol: Gott pláss fyrir góðan fjölskyldusófa, innfelld lýsing, gegnheilt viðargólf.
Sólpallur: Stór og góður sólpallur með heitum potti.

Framkvæmdir og viðhald eignarinnar síðustu ár samkvæmt upplýsingum seljanda:
2003 - Húsið er tekið í gegn af núverandi eigendum og í raun gert fokhelt. Skipt um allar lagnir, raflagnir, glugga.
2007 - Byggð viðbygging fyrir eldhús, garður tekin upp og skipt um jarðveg, allar lagnir út í götu nýjar, nýtt dren, hiti í gagnstétt og bílastæði og byggður sólpallur.
2022 - Baðherbergi á efri hæð uppfært og breytt, eldhús uppfært og breytt. Skipt um allar þakrennur og einhverjar þakplötur
2024 - Ný svalahurð

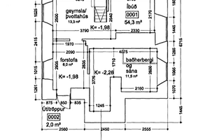
Nánari lýsing á kjallara:
Þvottaherbergi: Gengið niður úr borðstofu í þvottahúsið en þarna er minni lofthæð en innar í rýminu. Steypt gólf.
Forstofa/andyri kjallari: Útgangur úr kjallara, góðir hvítir skápar, flísar á gólfi.
Gufa/baðherbergi: Gengið er eitt þrep niður og þá eykst lofthæðin í þessu rými. Þarna má finna sturtu, upphengt salerni og saunu með setrými fyrir framan. Flísar á gólfi.

Þetta er mjög áhugaverð og mikið endurnýjuð eign á þessum rótgróna stað í gamla bænum, í göngufæri við miðbæinn. 

Nánari uppl. gefur Helgi Jón Harðarson sölustj. s. 893-2233 helgi@hraunhamar.is og 
Freyja M Sigurðardóttir lgf. s. 862-4800 freyja@hraunhamar.is


Skoðunarskylda:
Í lögum um fasteignakaup nr. 40/2002 er kveðið á um ríka skoðunarskyldu kaupenda á fasteignum. Hraunhamar fasteignasala vill benda væntanlegum kaupendum á að kynna sér vel ástand fasteigna fyrir kauptilboðsgerð og ef þurfa þykir að leita til sérfræðinga fyrir nánari ástandsskoðun.
Gjöld sem kaupandi þarf að standa straum af vegna kaupanna:
1.    Stimpilgjald af kaupsamningi, fyrstu kaup (0,4%), almenn kaup (0,8%), lögaðilar (1,6%) af heildarfasteignamati.
2.    Þinglýsingargjald af kaupsamningi, veðskuldabréfi, mögulegu veðleyfi o.fl. – kr. 2.700 kr. af hverju skjali.
3.    Lántökugjald lánastofnunar er skv. verðskrá viðkomandi lánastofnunar.
4.    Umsýslugjald til fasteignasölu skv. þjónustusamningi
 
Hraunhamar er elsta fasteignasala Hafnarfjarðar, stofnuð 1983.
Hraunhamar, í fararbroddi í rúm 40 ár. – Hraunhamar.is
Smelltu hér til að fá frítt söluverðmat.
Smelltu hér til að fá söluyfirlit sent strax.

img
Freyja Sigurðardóttir
Lögg.fasteignasali innan félags fasteignasala
Hraunhamar fasteignasala
Bæjarhraun 10, 220 Hafnarfjörður
Hraunhamar fasteignasala

Hraunhamar fasteignasala

Bæjarhraun 10, 220 Hafnarfjörður
img

Freyja Sigurðardóttir

Bæjarhraun 10, 220 Hafnarfjörður
Hraunhamar fasteignasala

Hraunhamar fasteignasala

Bæjarhraun 10, 220 Hafnarfjörður

Freyja Sigurðardóttir

Bæjarhraun 10, 220 Hafnarfjörður